**Standout Features:**
- Spacious home with 3 good-sized bedrooms
- Modern open-plan layout, ideal for family living
- Recently fitted, sleek kitchen with integrated appliances
- Well-presented throughout, move-in ready
- Private rear garden
- Freehold tenure—great for long-term investment
**Notable Concerns:**
- Located in an area with high crime rates
- Smaller plot size may limit outdoor activities
- Area classified as highly deprived; impacts rental yields
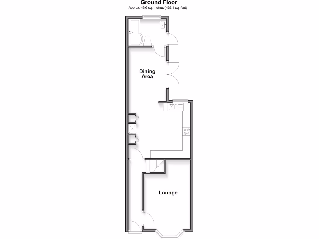
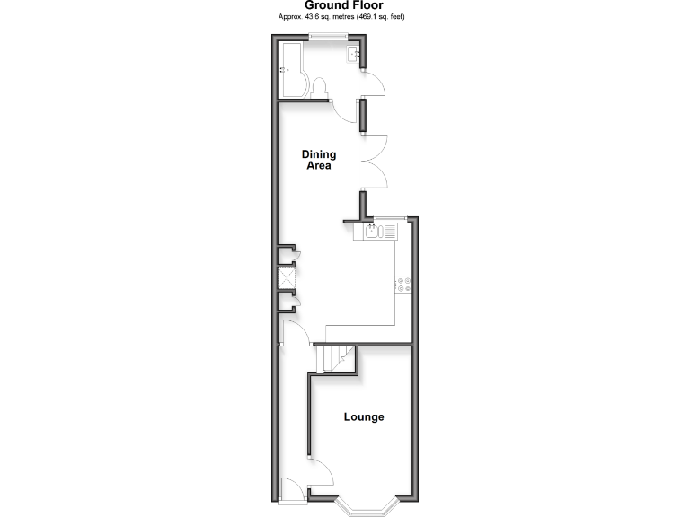
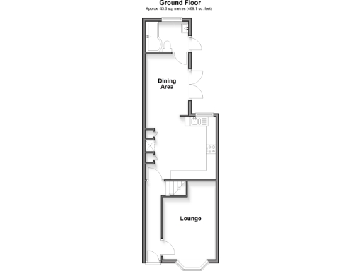
This attractive Victorian terraced house on Earnest Road offers a bright and inviting space suitable for families and investors alike. Spanning 1002 sq. ft., the home features a modern open-plan layout that maximizes comfort and functionality, complemented by a recently fitted kitchen showcasing stylish design and integrated appliances. With spacious bedrooms and a well-maintained interior, moving in is hassle-free, making it a prime opportunity in the sought-after PO1 area.
Conveniently located near local schools, shops, and transport links, this property not only provides an excellent living environment but also stands as a valuable investment. While it does sit in an area with high crime rates, the dependable amenities and potential for rental appeal remain strong. Enjoy the benefits of a freehold home with room for future renovations or extensions, ensuring you can tailor the property to your needs. Don't miss this opportunity to secure a family-friendly space in a vibrant community.
3 bedroom terraced house for sale in Ernest Road, Portsmouth, Hampshire, PO1 — £270,000 • 3 bed • 1 bath • 1052 ft²
3 bedroom terraced house for sale in Ernest Road, Portsmouth, PO1 — £270,000 • 3 bed • 1 bath • 1002 ft²
3 bedroom house for sale in Emsworth Road, Portsmouth, PO2 — £240,000 • 3 bed • 1 bath • 990 ft²
3 bedroom terraced house for sale in Ernest Road, Portsmouth, PO1 — £250,000 • 3 bed • 1 bath • 1016 ft²
3 bedroom terraced house for sale in Agincourt Road, Portsmouth, Hampshire, PO2 — £220,000 • 3 bed • 1 bath • 862 ft²
2 bedroom end of terrace house for sale in Ernest Road, Portsmouth, PO1 — £175,000 • 2 bed • 1 bath • 517 ft²














































