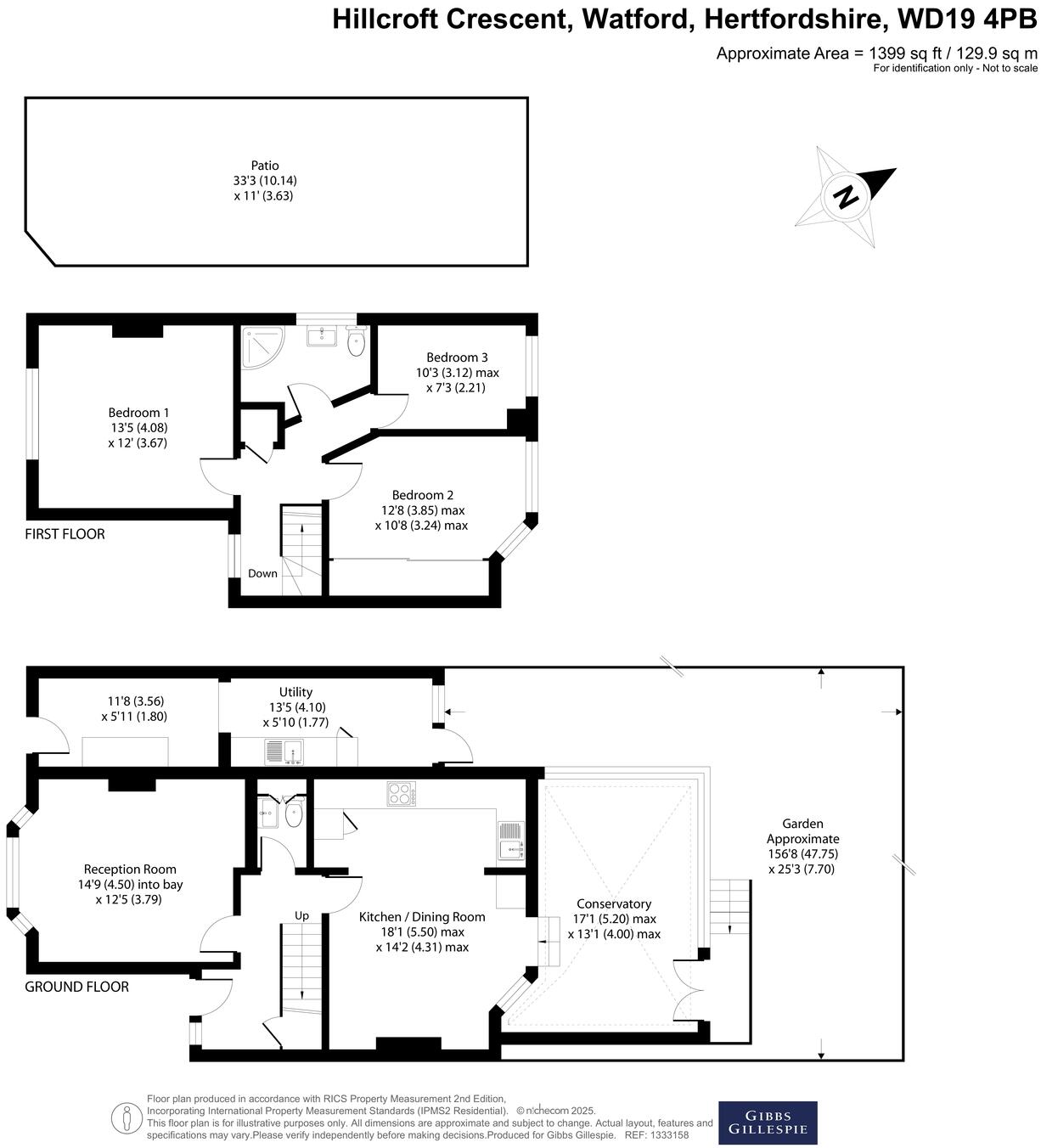
**Standout Features:**
- Spacious semi-detached home with three bedrooms
- Modern fitted kitchen/dining room and a separate reception room
- Bright conservatory providing serene garden views
- Convenient utility room and ground floor WC
- Private rear garden ideal for relaxation and entertainment
- Off-road parking for multiple vehicles
- Approximately 1,399 sq ft of living space
**Summary Description:**
Welcome to this inviting semi-detached home located in the heart of Watford's family-friendly community. Spacious and bathed in natural light, this three-bedroom residence offers a contemporary layout with a well-equipped kitchen/dining area perfect for family gatherings. The charming conservatory opens up to a generous private garden, providing an ideal space for outdoor enjoyment and entertaining guests. The property’s thoughtful design includes a utility room and convenient ground-floor WC, enhancing its practicality.
This home not only promises comfort but also boasts essential features like off-street parking and solid brick construction typical of the 1930s, ensuring reliability and character. While the property is in decent condition, buyers should note the absence of insulation in the walls, which presents an opportunity for future energy-efficient renovations. Additionally, the location benefits from proximity to reputable schools, making it perfect for families or investors looking for rental potential. Don’t let this opportunity slip away—experience the charm and warmth of this delightful property; schedule a viewing today!
3 bedroom semi-detached house for sale in Cobb Green, Watford, WD25 — £568,000 • 3 bed • 1 bath • 1034 ft²
3 bedroom semi-detached house for sale in Meadow Road, Watford, WD25 — £550,000 • 3 bed • 1 bath • 1222 ft²
3 bedroom semi-detached house for sale in Oakdene Road, Watford, Hertfordshire, WD24 — £570,000 • 3 bed • 1 bath • 988 ft²
3 bedroom semi-detached house for sale in Hillcroft Crescent, Watford, Hertfordshire, WD19 — £750,000 • 3 bed • 2 bath • 1384 ft²
3 bedroom end of terrace house for sale in Fulford Grove, Watford, Hertfordshire, WD19 — £500,000 • 3 bed • 1 bath • 1521 ft²
3 bedroom semi-detached house for sale in Leggatts Close, Watford, WD24 — £575,000 • 3 bed • 1 bath • 930 ft²






























































































