Spacious three-bed converted chapel with SW garden and parking for two.
Converted former chapel with period features and high ceilings
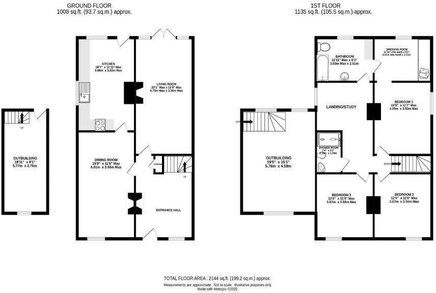
Converted from a former chapel, Chapel House blends period character with generous, flexible living space across two floors. The large entrance hall with cast-iron stove and turned staircase leads to two reception rooms, a fitted kitchen/breakfast room and French doors opening onto the south‑west facing garden — ideal for afternoon sun.
Upstairs offers a bright open landing suitable for a home workspace and three double bedrooms. The principal bedroom includes a walk‑in wardrobe and Jack-and-Jill ensuite; an additional three-piece shower room serves the other bedrooms. The layout suits families seeking character and room to grow, or buyers wanting a comfortable rural retreat.
Practical positives include off-street parking for two cars, a decent plot with established borders, and no onward chain for a quicker sale. There is potential to convert the ground-floor outbuilding into a garage/carport with a bedroom above, subject to planning permission — useful if you need additional parking or accommodation.
Be aware of a few material points: the home is heated by an LPG boiler (not on a mains gas network), council tax is above average, and the hamlet location is relatively remote with average mobile and broadband speeds. Planning for outbuilding conversion is not guaranteed and would require application and consent.
2 bedroom detached house for sale in Garshall Green, Milwich, Stafford, ST18 — £545,000 • 2 bed • 2 bath • 1322 ft²
2 bedroom detached house for sale in Moss Lane, Betton, TF9 — £325,000 • 2 bed • 1 bath • 990 ft²
3 bedroom detached house for sale in Sandon Road, Hilderstone, Stone, ST15 — £595,000 • 3 bed • 2 bath • 1405 ft²
4 bedroom detached house for sale in Willington Road, Tarvin, CH3 — £875,000 • 4 bed • 4 bath • 3085 ft²
4 bedroom semi-detached house for sale in Milk Street, Leek, ST13 6BE., ST13 — £325,000 • 4 bed • 2 bath • 1378 ft²
4 bedroom detached house for sale in Cowall Moor Lane, Leek, ST13 — £625,000 • 4 bed • 3 bath • 2400 ft²


















































































