Chain-free family house near top-rated schools and local shops.
End-of-terrace Edwardian with bay windows and high ceilings
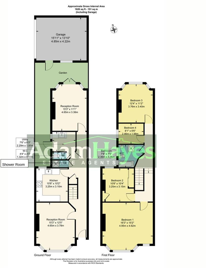
This Edwardian four-bedroom end-of-terrace home blends original character with practical family living across about 1,625 sqft. High ceilings and bay windows give strong reception rooms generous daylight; the fitted kitchen opens directly to a private rear garden and detached garage, useful for parking or storage.
Well located for North Finchley amenities, Tally Ho high street and several highly rated schools, the house suits families and commuters with Woodside Park Underground within easy reach. The layout is traditional and straightforward, offering scope to reconfigure ground-floor space for an open-plan kitchen/living area and potential loft conversion (STPP) to increase living space.
Buyers should note straightforward but important drawbacks: the property sits in a higher-crime area, council tax is described as expensive, and the solid brick walls likely lack cavity insulation. The plot is modest in width with a small forecourt and a rear garden typical of inner-London terraces, so outdoor space is not generous.
Offered chain free on freehold tenure, the house is well suited to a family seeking period features with scope to modernise and add value through targeted refurbishment. Good mobile signal and fast broadband support home working, while mains gas central heating and double glazing provide everyday comfort with further improvement potential.
3 bedroom terraced house for sale in Churchfield Avenue, North Finchley, N12 — £825,000 • 3 bed • 1 bath • 1257 ft²
5 bedroom terraced house for sale in Rosemont Avenue, North Finchley, London, N12 — £900,000 • 5 bed • 2 bath • 1759 ft²
6 bedroom semi-detached house for sale in Christchurch Avenue, North Finchley, N12 — £1,300,000 • 6 bed • 3 bath • 2284 ft²
4 bedroom house for sale in Woodberry Grove, London, N12 — £950,000 • 4 bed • 1 bath • 981 ft²
4 bedroom end of terrace house for sale in Church Lane, London, N2 — £1,000,000 • 4 bed • 2 bath • 1527 ft²
4 bedroom end of terrace house for sale in Woodgrange Avenue, North Finchley, N12 — £700,000 • 4 bed • 1 bath • 1328 ft²


































































