Large plot, versatile outbuildings and clear refurbishment potential for cash buyers.
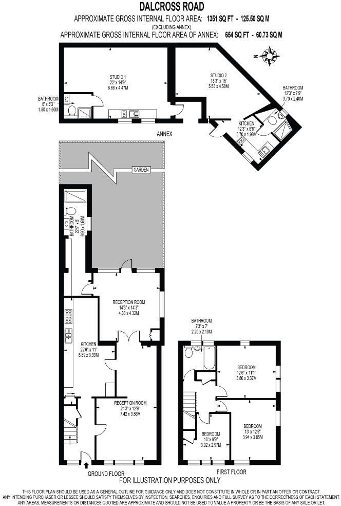
- Large 1,351 sq ft end‑terrace with three bedrooms
- Two reception rooms and two bathrooms for flexible layouts
- Two mains‑connected outbuildings ideal for office or rental
- Double glazing fitted after 2002 and mains gas heating
- Freehold with scope to extend subject to planning
- Cavity walls assumed without insulation — may need upgrading
- Area has above average crime; consider security measures
- Offered to investors or cash buyers only (no mortgage sale)
This large three-bedroom end of terrace on Dalcross Road (1,351 sq ft) is offered as a clear investment proposition for cash buyers. Built in the 1950s and set on a decent plot, the house provides two reception rooms, two bathrooms and a generous kitchen — plus two substantial outbuildings with mains connected, ideal for home office use or rental conversion.
The property benefits from double glazing (installed post-2002), mains gas central heating with a boiler and fast broadband and excellent mobile signal — features that support lettings or short-term rental demand. Transport links are strong and several well-rated primary and secondary schools are nearby, increasing appeal to families and commuters.
There are notable considerations: the building fabric shows post‑war cavity walls with no installed insulation (assumed), and crime in the area is above average. The house is presented with mid‑century finishes and will suit buyers prepared to update interiors or complete targeted refurbishment to maximise resale or rental value. Freehold tenure and scope for extension subject to planning add further upside for experienced investors.
Sold with investor or cash buyers only specified, this property is best for those able to move quickly and manage renovation or conversion work to capture rental income or capital growth.
3 bedroom end of terrace house for sale in Redwood Estate, Hounslow, TW5 — £375,000 • 3 bed • 1 bath • 912 ft²
4 bedroom end of terrace house for sale in Cedar Road, Hounslow, TW4 — £450,000 • 4 bed • 2 bath • 1297 ft²
6 bedroom end of terrace house for sale in Francis Road, Hounslow, TW4 — £799,950 • 6 bed • 3 bath • 2198 ft²
5 bedroom semi-detached house for sale in Great South West Road, Hounslow, TW4 — £770,000 • 5 bed • 3 bath • 2040 ft²
2 bedroom terraced house for sale in Wright Road, Hounslow, TW5 — £555,000 • 2 bed • 2 bath • 1344 ft²
7 bedroom terraced house for sale in Whitton Road, Hounslow, TW3 — £700,000 • 7 bed • 2 bath • 1000 ft²






































































