Commuter-friendly one-bed with garden and extension potential near Elizabeth Line.
Large one-bedroom ground-floor flat, approx. 730 sq ft
Private rear garden with decking and direct access
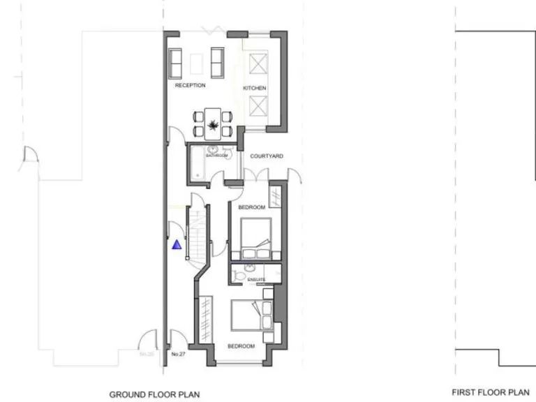
Planning permission granted to extend (extension scope available)
Basement present — currently storage, conversion subject to regs
Off-street parking space for one car
Two minutes' walk to West Ealing Elizabeth Line station
Leasehold with 125 years remaining; vacant possession, no upper chain
EPC C; solid-brick walls may need insulation upgrades
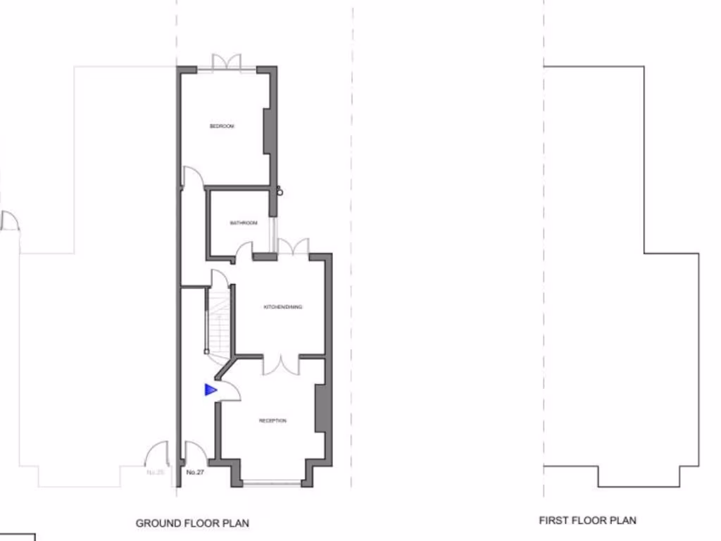
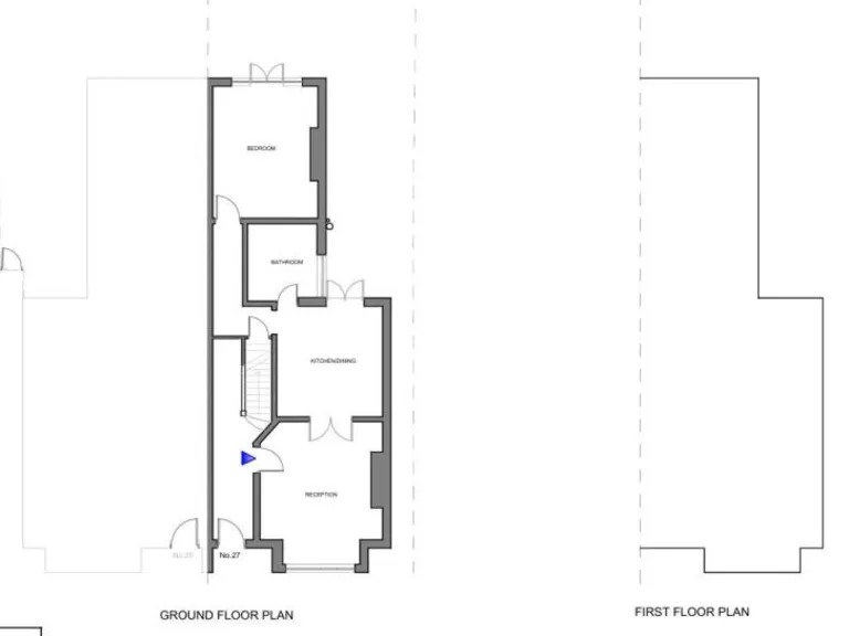
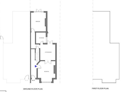
A larger-than-average one-bedroom ground-floor flat on Argyle Road, offered with vacant possession and no upper chain. The property sits just two minutes’ walk from West Ealing (Elizabeth Line), making it a strong choice for commuters seeking quick central access.
The flat benefits from a wide through reception/kitchen with direct access to a substantial private rear garden finished with modern decking—ideal for outdoor entertaining or family relaxation. Off-street parking for one car and a basement area provide useful practical storage. Planning permission to extend has been granted, offering clear scope to increase living space and future value.
Constructed circa 1900–1929, the building retains period character while presenting modern conveniences (double glazing, mains gas central heating). The long lease (125 years) and EPC rating C are positives for longer-term owners, though solid-brick construction suggests external insulation or internal thermal upgrades may be needed if higher efficiency is desired.
This property will suit a commuter or first-time buyer wanting immediate occupation and potential to personalise and extend. Buyers should note it is leasehold, council tax band D, and any basement conversion or garden extension will require adherence to planning and building regulations despite permission already being in place.
2 bedroom flat for sale in Argyle Road, Ealing, W13 — £525,000 • 2 bed • 1 bath • 575 ft²
2 bedroom flat for sale in Argyle Road, West Ealing, London, W13 — £749,000 • 2 bed • 1 bath • 842 ft²
1 bedroom flat for sale in Westfield Road, Northfields , Ealing, W13 — £450,000 • 1 bed • 1 bath • 432 ft²
2 bedroom apartment for sale in Oxford Road, London, W5 — £495,000 • 2 bed • 1 bath • 515 ft²
1 bedroom flat for sale in The Avenue, Ealing, London, W13 — £310,000 • 1 bed • 1 bath • 390 ft²
1 bedroom flat for sale in Leighton Road, West Ealing, W13 — £425,000 • 1 bed • 1 bath • 726 ft²


















































