Well-kept two-bed apartment with garden access and parking, suited to first-time buyers.
Split-level two-bedroom layout with generous living room
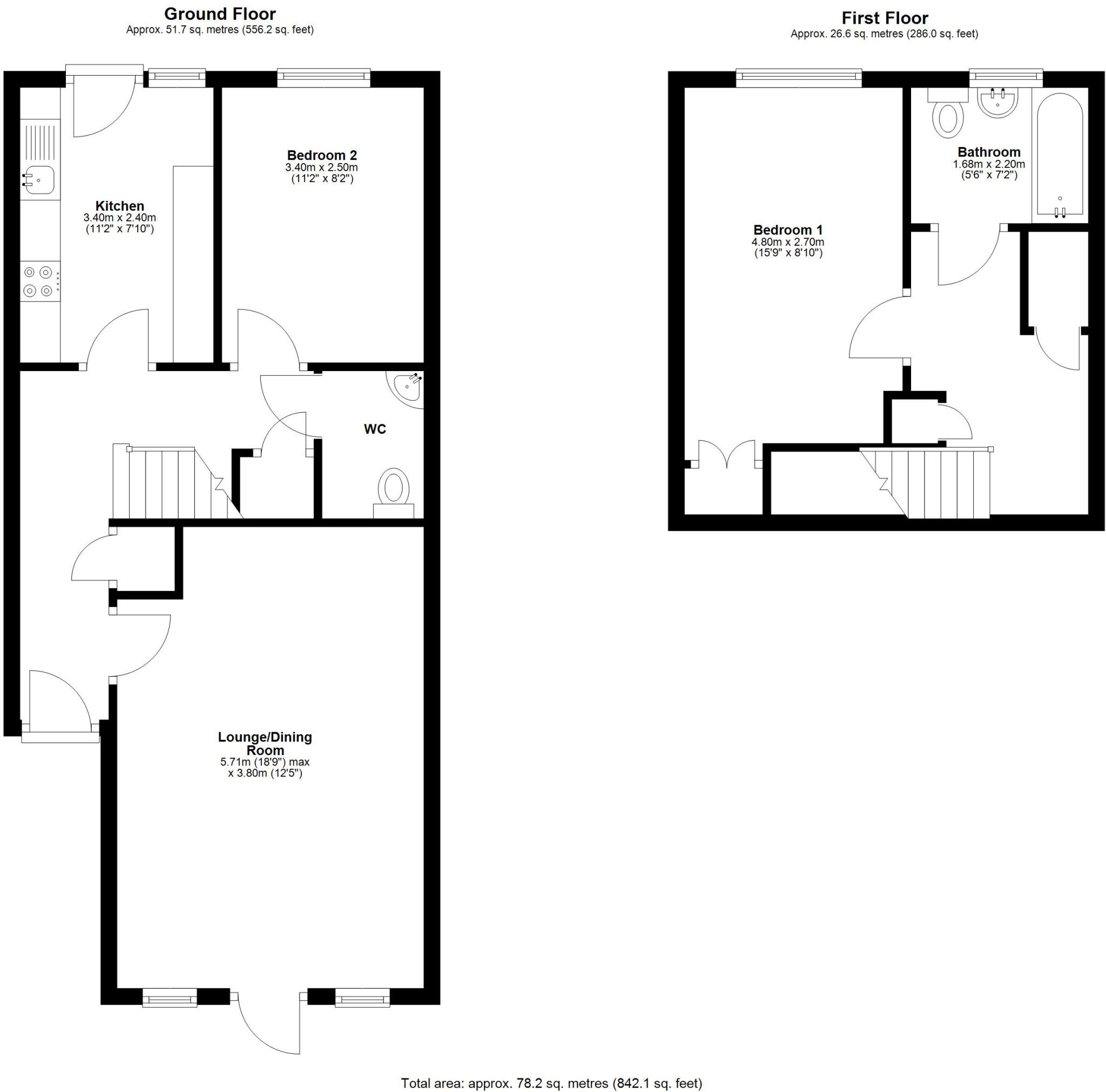
A well-presented split-level two-bedroom apartment arranged over two floors, offering comfortable space for a first home or buy-to-let. The generous living room opens directly to the parking area, while the rear kitchen door gives private access to a small garden — handy for bikes, bins or a potted sitting area.
The kitchen includes integrated appliances and a gas hob; gas central heating and double glazing provide everyday efficiency. Upstairs holds an expansive principal bedroom with built-in storage, plus landing cupboards for additional storage. The downstairs bedroom works well as a guest room or home office, and the family bathroom serves both bedrooms.
Practical points to note: the property is leasehold with about 113 years remaining, and an annual ground rent of £150. The immediate neighbourhood records higher crime levels than average, which may concern some buyers. On the positive side, council tax is described as affordable, transport links and broadband are strong, and several well-regarded schools lie within easy reach.
 2 bedroom apartment for sale in Newport Road, Aldershot, Hampshire, GU12 — £195,000 • 2 bed • 1 bath • 620 ft²
 2 bedroom apartment for sale in Newport Road, Aldershot, Hampshire, GU12 — £195,000 • 2 bed • 1 bath • 620 ft² 2 bedroom apartment for sale in Scholars Walk, Farnborough, Hampshire, GU14 — £260,000 • 2 bed • 2 bath • 760 ft²
 2 bedroom apartment for sale in Scholars Walk, Farnborough, Hampshire, GU14 — £260,000 • 2 bed • 2 bath • 760 ft² 2 bedroom apartment for sale in Rosemary Lane, Blackwater, Camberley, GU17 — £250,000 • 2 bed • 1 bath • 579 ft²
 2 bedroom apartment for sale in Rosemary Lane, Blackwater, Camberley, GU17 — £250,000 • 2 bed • 1 bath • 579 ft² 2 bedroom apartment for sale in Shanklin Court, Newport Road, Aldershot, Hampshire, GU12 — £200,000 • 2 bed • 1 bath • 575 ft²
 2 bedroom apartment for sale in Shanklin Court, Newport Road, Aldershot, Hampshire, GU12 — £200,000 • 2 bed • 1 bath • 575 ft² 2 bedroom end of terrace house for sale in Clive Road, Aldershot, Hampshire, GU12 — £350,000 • 2 bed • 1 bath • 629 ft²
 2 bedroom end of terrace house for sale in Clive Road, Aldershot, Hampshire, GU12 — £350,000 • 2 bed • 1 bath • 629 ft² 2 bedroom apartment for sale in Barn Avenue, Aldershot, Hampshire, GU12 — £240,000 • 2 bed • 1 bath • 666 ft²
 2 bedroom apartment for sale in Barn Avenue, Aldershot, Hampshire, GU12 — £240,000 • 2 bed • 1 bath • 666 ft²






























































