Renovated main-door flat with private garden and strong transport links.
Recently renovated main-door flat, ready to occupy
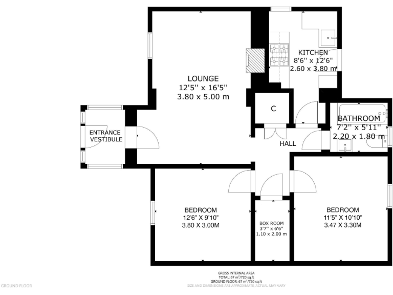
This well-presented main-door flat offers a recently renovated, move-in ready two-bedroom home with surprisingly generous private garden space for an inner-city property. The lounge and fitted kitchen are bright and maintained; gas central heating and double glazing add everyday comfort while fixtures including oven, hob, washing machine and fridge/freezer are included.
The layout works well for first-time buyers or a buy-to-let—two double bedrooms, useful built-in storage and a practical bathroom with shower-over-bath. The front, side and rear exclusive gardens (including a greenhouse and shed) are a genuine bonus and there is scope to create a driveway subject to local consent.
Be clear on the material points: the Energy Performance Certificate sits at band D and the wider neighbourhood scores as a very deprived area, which may affect longer-term resale values and local services. Tenure is not specified here, so buyers should verify ownership type and any common charges before proceeding.
Overall this flat represents good entry-level value for someone seeking a ready-to-live-in home with private outdoor space and straightforward upkeep, close to public transport and local amenities. Early viewing is recommended to fully appreciate the indoor space and garden potential.
2 bedroom ground floor flat for sale in 18 Loganlea Road, Edinburgh, EH7 6NW, EH7 — £175,000 • 2 bed • 1 bath • 642 ft²
2 bedroom flat for sale in 131 Craigmillar Castle Avenue, Craigmillar, EH16 4DN, EH16 — £175,000 • 2 bed • 1 bath • 574 ft²
2 bedroom ground floor flat for sale in 5/2 Loaning Crescent, Craigentinny, Edinburgh, EH7 6JU, EH7 — £155,000 • 2 bed • 1 bath • 624 ft²
2 bedroom ground floor flat for sale in 42/1 Redhall Drive, Redhall, Edinburgh, EH14 2HG, EH14 — £175,000 • 2 bed • 1 bath • 602 ft²
3 bedroom flat for sale in 33/3 Craigentinny Road, Craigentinny, Edinburgh, EH7 6NB, EH7 — £170,000 • 3 bed • 1 bath • 638 ft²
2 bedroom flat for sale in 17 Clearburn Gardens, Prestonfield, Edinburgh, EH16 5ET, EH16 — £185,000 • 2 bed • 1 bath • 507 ft²


























































































