Spacious traditional layout with garage, garden and convenient schooling nearby.
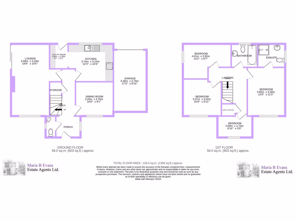
Four bedrooms: three doubles and one single, master with en suite
Two good-sized reception rooms plus dining area and utility room
South-facing side garden with decking, pond, mature borders and workshop
Attached single garage with power and light; off-road parking to the rear
uPVC double glazing and gas central heating throughout; chain-free sale
Average overall size ~1,356 sq ft; traditional layout with storage cupboard
Higher local crime rates and area deprivation — factor into location choice
Council tax level above average for the area
This attractive, detached four-bedroom house on Jubilee Way is arranged over two floors and suits a growing family seeking flexible living space. The property offers two separate reception rooms, a kitchen with adjoining utility, and a master bedroom with an en suite — practical spaces for daily family life and entertaining.
Light fills the main lounge through large windows and sliding doors that open onto a south-facing side garden with decking, lawn, mature borders, a wildlife pond and a substantial timber workshop with attached aviary. Off-road parking to the rear and an attached single garage (power and light) add useful storage and parking convenience.
The home is finished with uPVC double glazing, gas central heating and dark wood flooring to the hallway. It is offered chain-free and at an average overall size of about 1,356 sq ft, giving comfortable family accommodation without extensive running costs of a larger house.
Important considerations: the property is in a small-town location with fast broadband and excellent mobile signal but sits within a higher-crime, relatively deprived area and attracts above-average council tax. Buyers should balance the well-presented family layout and local top-rated primary schools against these neighbourhood-level factors.
4 bedroom detached house for sale in Fourfields, Bamber Bridge, Preston, Lancashire, PR5 — £290,000 • 4 bed • 2 bath • 729 ft²
4 bedroom detached house for sale in Brookwood Way, Buckshaw Village, PR7 7GW, PR7 — £343,000 • 4 bed • 3 bath • 1274 ft²
3 bedroom detached house for sale in Whitley Drive, Buckshaw Village, Chorley, PR7 — £360,000 • 3 bed • 2 bath • 1238 ft²
4 bedroom detached house for sale in Old School Drive, Longton, Preston, PR4 — £550,000 • 4 bed • 2 bath • 1643 ft²
4 bedroom detached house for sale in Kensington Gardens, Lostock Hall, Preston, Lancashire, PR5 — £590,000 • 4 bed • 4 bath • 2311 ft²
4 bedroom detached house for sale in School Lane, Moss Side, PR26 — £576,995 • 4 bed • 3 bath • 2376 ft²


































































































