Large farmhouse on 1.5 acres with development potential and south garden.
- Detached four-bedroom farmhouse, approximately 324 m² (3,488 sq ft)
- Large plot: about 1.5 acres with orchard, patio and south-facing garden
- Open-plan kitchen/dining with feature fireplace and wood-burning stove
- Multiple reception rooms, conservatory and very large utility room
- Old steading/garage on site; development possible subject to planning
- Very slow broadband and only average mobile signal
- Located in remoter agricultural area; local services accessed in Huntly
- Area classified as very deprived — consider service and access implications
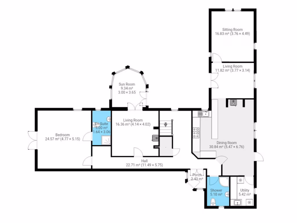
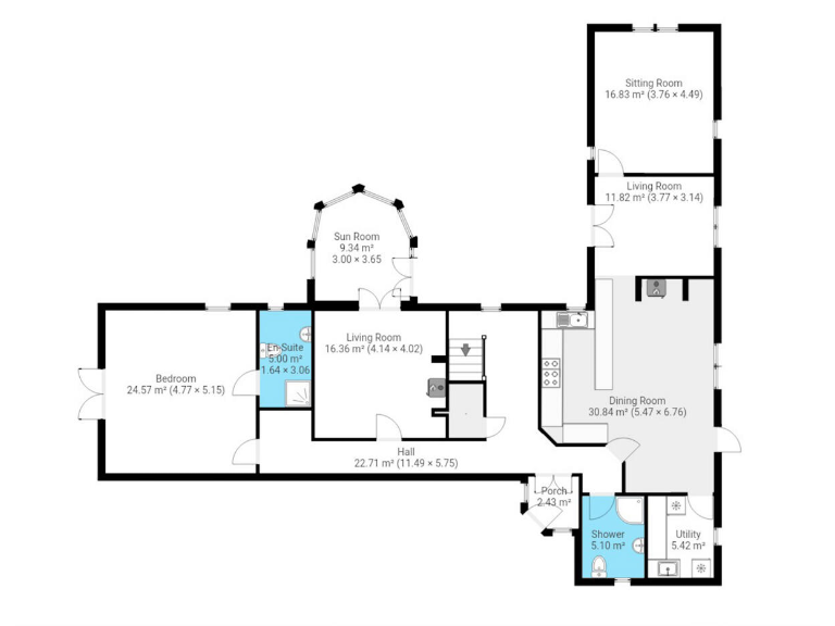
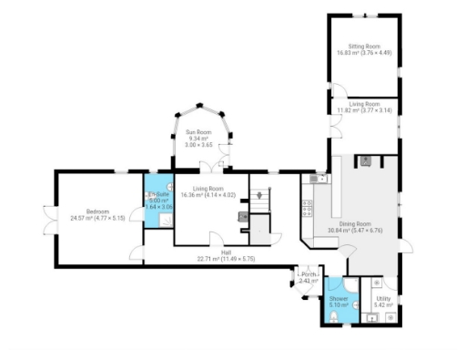
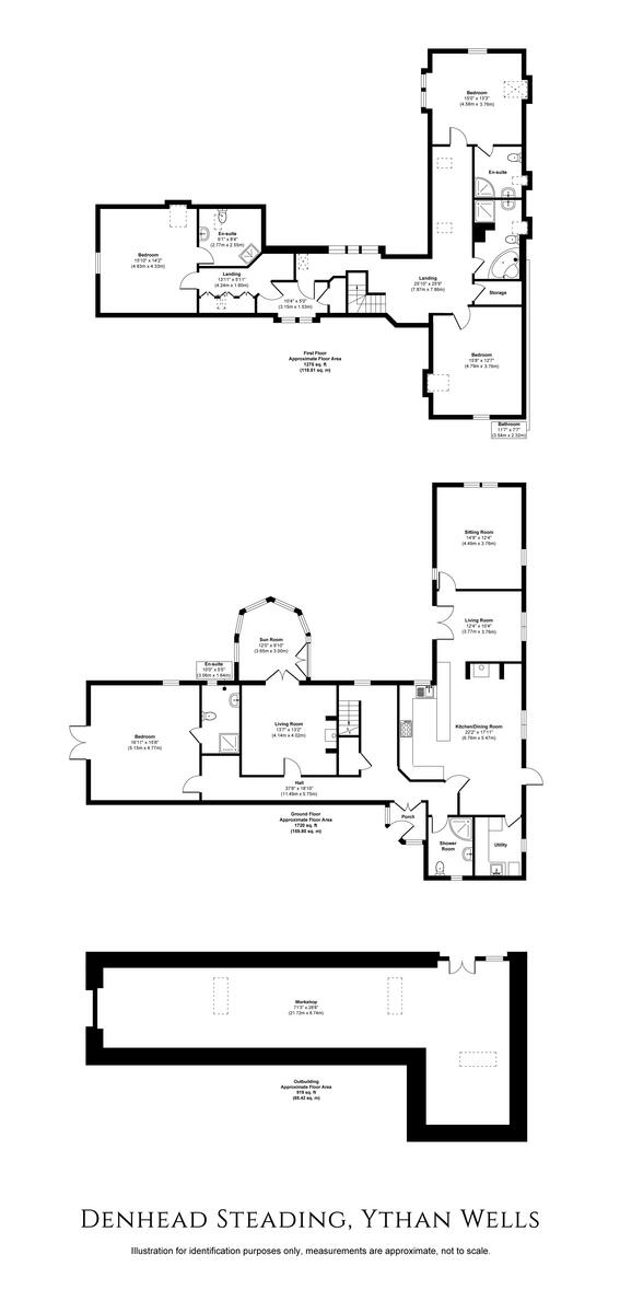
Set on approximately 1.5 acres in a tranquil agricultural setting near Huntly, Denhead Steading is a substantial detached farmhouse offering generous living space and rural character. The house extends to around 324 m² (3,488 sq ft) with four double bedrooms, five bathrooms and a large open-plan kitchen/dining area centred on a feature fireplace and wood-burning stove. Multiple reception rooms, a conservatory and substantial utility provide flexible family living. The south-facing garden, orchard and patio maximise sunlight and outdoor use.
An old steading/garage sits on the plot and could be developed subject to securing planning consent — a clear opportunity for an annexe, workshop or conversion for additional value, but no permissions are currently in place. The property will particularly suit buyers wanting space, privacy and the scope to modernise or adapt rooms to suit their needs.
Buyers should note practical constraints: broadband speeds are very slow and mobile signal is only average, which may affect remote working. The immediate area is classified as remoter and agricultural, and local area deprivation is recorded as very deprived; conveniences are reached via nearby Huntly rather than on-site.
Overall, this is a rare country home for purchasers seeking expansive accommodation, outdoor land and development potential. It presents strong long-term scope for improvement and enhancement, balanced by the need to manage connectivity and any planning process for the steading conversion.
6 bedroom detached house for sale in Millbrex, Turriff, AB53 — £575,000 • 6 bed • 6 bath • 5113 ft²
4 bedroom detached house for sale in Culdrain Lodge, Gartly, Huntly, Aberdeenshire, AB54 — £430,000 • 4 bed • 1 bath • 2133 ft²
Detached house for sale in Drumdelgie Steading, Drumdelgie, Huntly, Aberdeenshire, AB54 — £150,000 • 1 bed • 1 bath • 16145 ft²
2 bedroom detached house for sale in East Headiton Steading, Insch, Aberdeenshire, AB52 — £500,000 • 2 bed • 2 bath • 1582 ft²
4 bedroom detached house for sale in Mill O'barns Steading, Premnay, Insch, Aberdeenshire, AB52 — £450,000 • 4 bed • 2 bath • 3563 ft²
4 bedroom detached house for sale in Donniemaud Farmhouse Cornhill, Banff, Aberdeenshire, AB45 2BD, AB45 — £340,000 • 4 bed • 2 bath • 2476 ft²














































































































































































































