LE4 3JX - 3 bed birstall semi detached in Woodgate Drive, LE4 3JX

View on Property Piper

3 bedroom semi-detached house for sale in Woodgate Drive, Birstall, Leicester, Leicestershire, LE4

Summary - 76 WOODGATE DRIVE BIRSTALL LEICESTER LE4 3JX

3 bed 2 bath Semi-Detached

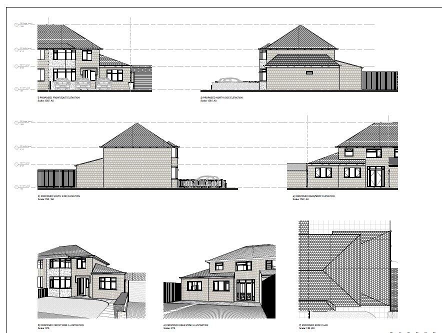
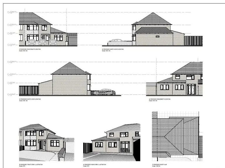
Renovated family home with planning permission to extend and garage parking.
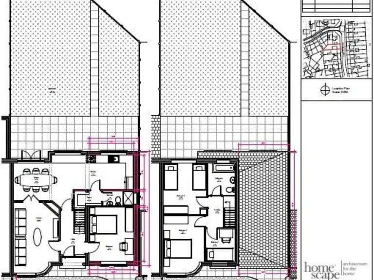
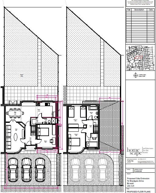
Three bedrooms and family bathroom, newly renovated throughout
A recently renovated three-bedroom semi-detached house in a quiet, desirable part of Birstall. The home is presented with an appealing kitchen-diner and separate lounge, plus modernised gas central heating and new floorcoverings. Double glazing is fitted, though original install dates are unknown.

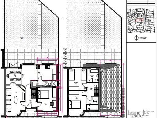
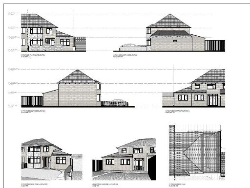
Planning permission has already been granted to extend to the side and rear, offering clear scope to increase living space and value. The property sits on a decent plot with a laid-to-lawn rear garden, paved patio, generous driveway and single garage — practical for family parking and storage.

Local schools are rated Good and everyday amenities, countryside walks and transport links are within easy reach. Considerations: the house dates from the mid-20th century (1950s–1960s), ceiling heights are standard, and council tax banding is not provided here. Overall, a comfortable family home with extension potential in a very low-crime, affluent neighbourhood.

Property Details

Image Descriptions

Floorplan Description

Rooms

Textual Property Features

Target Audience

AI Tags

Detected Visual Features

EPC Details

Nearby Schools

Nearest Bars And Restaurants

,,,,}

Nearest General Shops

,,}

Nearest Grocery shops

,,}

Nearest Supermarkets

,,}

Nearest Religious buildings

,,}

Nearest Medical buildings

,,,}

Nearest Airports

,}

Nearest Leisure Facilities

,,,,}

Nearest Tourist attractions

,,}

Nearest Train stations

,,,,}

Nearest Bus stations and stops

,,,,}

Nearest Hotels

,,}

Tags

Local Market Stats

Similar Properties

Meta

High Res Images

Compatible Images

Low res Images

Thumbnails

Raw Images

High Res Floorplan Images

Compatible Floorplan Images

Low res Floorplan Images

FloorplanImages Thumbnail

Raw Floorplan Images