Energy-efficient new build in a popular Suffolk village with garage and garden.
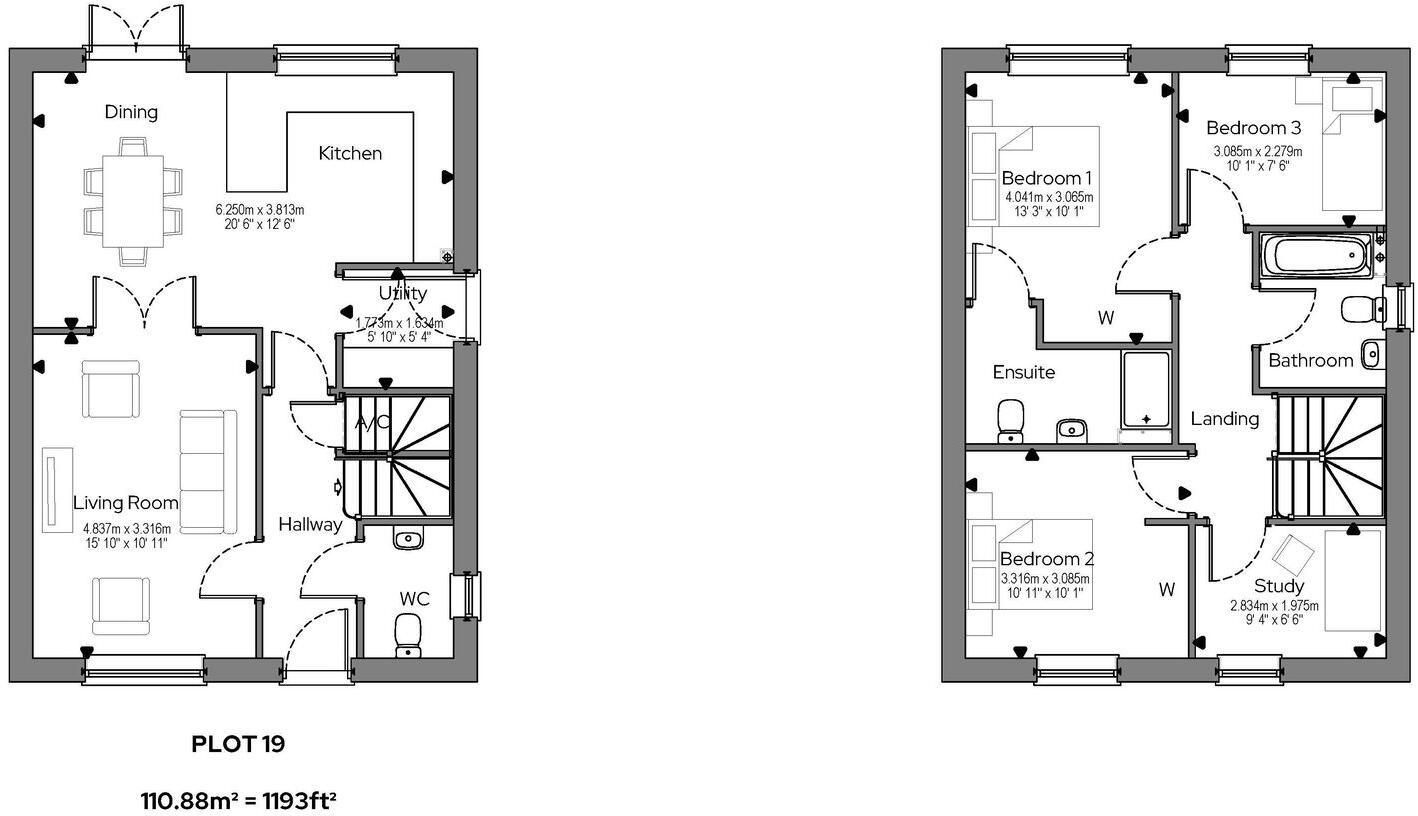
- Four bedrooms including principal with en-suite shower room
- Open-plan kitchen/dining with utility and downstairs cloakroom
- Air-source heat pump with underfloor heating throughout
- Single garage, driveway parking and landscaped garden
- Predicted EPC Band B; low running costs expected
- 1% reservation deposit required; completion dates may change
- Annual service charge for communal areas and attenuation basin
- Some images/specification are illustrative; measurements approximate
This newly built four-bedroom detached home (Plot 19) sits on the final phase of a small development in Laxfield, offering contemporary family living with countryside views. The layout includes an entrance hall, sitting room, open-plan kitchen/diner, utility and cloakroom downstairs, with a principal bedroom and en-suite plus three further bedrooms and a family bathroom upstairs. Finished to a high specification, the house features a Mackintosh-style kitchen with stone/quartz worktops, integrated appliances, Amtico and tiled floors, and quality sanitaryware.
Energy efficiency and low running costs are central to the design: an air-source heat pump with underfloor heating throughout and predicted EPC Band B make the house economical to heat. Outside there is a single garage, driveway parking and a landscaped garden with Indian sandstone terraces. The plot benefits from a semi-rural setting close to village amenities — shops, two pubs, primary schooling and community facilities — with Framlingham and the Heritage Coast within easy reach.
Buyers should note this is a new-build purchase with a target completion and handover schedule that may be subject to change; a 1% reservation deposit is required. An annual service charge will apply for communal road, attenuation basin and landscaping maintenance. Measurements and some specification details are taken from developer plans and are approximate; some images in the brochure are illustrative rather than the exact plot finish.
Overall this house suits families seeking modern, low-maintenance living in a popular Suffolk village, or buyers looking for a energy-efficient new build with quality fittings and a countryside aspect. The property includes a 6-year RICS professional consultant’s certificate for build quality assurance.
4 bedroom detached house for sale in Beauly Place, Laxfield, Woodbridge, IP13 — £400,000 • 4 bed • 2 bath • 1192 ft²
4 bedroom detached house for sale in Laxfield, Nr Framlingham, Suffolk, IP13 — £575,000 • 4 bed • 3 bath • 1080 ft²
3 bedroom detached house for sale in Laxfield, Nr Framlingham, Suffolk, IP13 — £425,000 • 3 bed • 2 bath • 1193 ft²
3 bedroom detached bungalow for sale in Laxfield, Nr Framlingham, Suffolk, IP13 — £540,000 • 3 bed • 2 bath • 1420 ft²
4 bedroom detached house for sale in Beauly Place, Laxfield, IP13 — £575,000 • 4 bed • 3 bath • 1643 ft²
3 bedroom detached bungalow for sale in Beauly Place, Laxfield, Woodbridge, IP13 — £540,000 • 3 bed • 2 bath • 1420 ft²


























































































