BS20 7FL - 2 bed ground floor garden apartment in Moor Gate, BS20 7FL

View on Property Piper

2 bedroom flat for sale in Moor Gate, Portishead, Bristol, Somerset, BS20

Summary - 31 MOOR GATE PORTISHEAD BRISTOL BS20 7FL

2 bed 2 bath Flat

Well-located two-bed with private outdoor space and parking, great for first purchases.
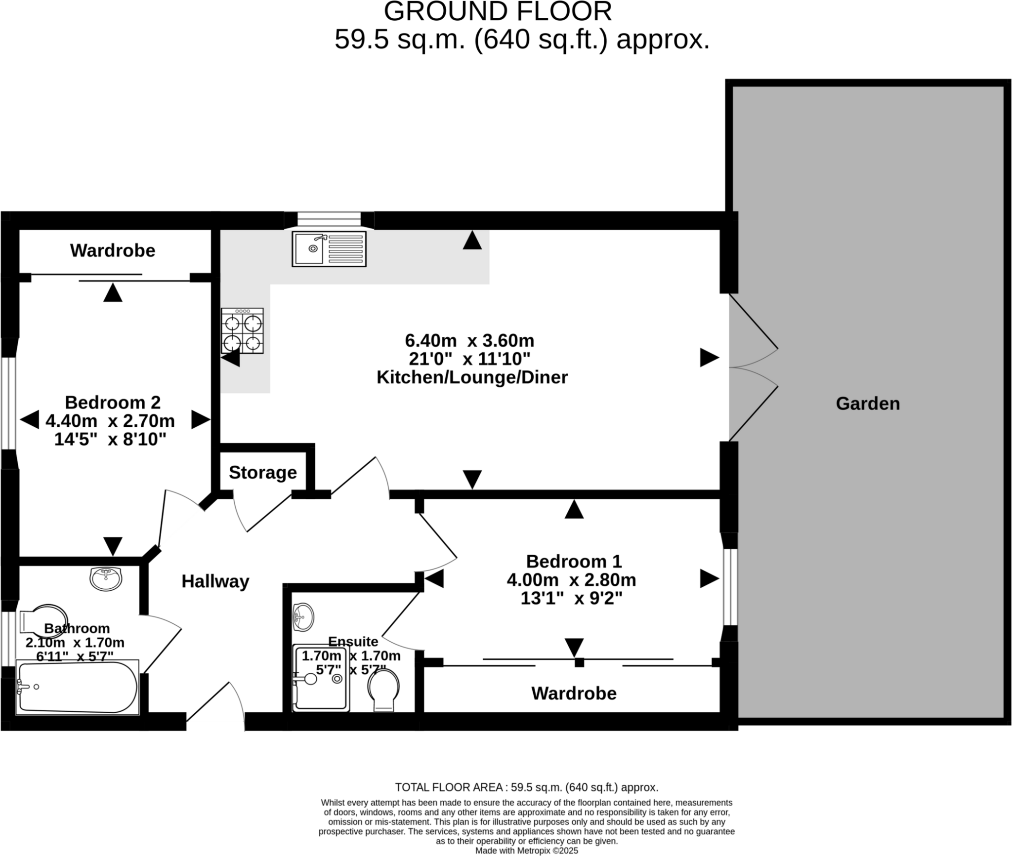
Ground-floor apartment with private rear garden
Open-plan kitchen, lounge and dining area
Two double bedrooms; en-suite to master
Allocated off-street parking space
Leasehold—conflicting lease details; verify remaining term
Service charge/estate charge and ground rent payable
EPC pending; broadband speeds reported as slow
Council Tax Band B; very low local crime
This ground-floor, two-bedroom apartment in Moor Gate offers practical living with a private garden and allocated parking—rare for a flat. The open-plan kitchen/lounge/diner creates a sociable living space, while two double bedrooms, built-in wardrobes and an en-suite to the master suit first-time buyers or couples.

The building is contemporary and set in a quiet cul-de-sac close to the Sheepway, bus routes, the M5 and the Bristol cycle path. Local green space and good primary and secondary schools are within easy reach, and the area is very low crime and very affluent.

Important tenure and costs are straightforward but should be checked: the property is leasehold with service charges and a modest ground rent. Broadband speeds are reported slow and the EPC is to be confirmed. Overall this apartment balances low maintenance modern living with outside space—ideal for someone seeking easy access to Bristol without the upkeep of a house.

Property Details

Image Descriptions

Floorplan Description

Rooms

Textual Property Features

Target Audience

AI Tags

Detected Visual Features

Nearby Schools

Nearest Bars And Restaurants

,,,,}

Nearest General Shops

,,}

Nearest Grocery shops

,,}

Nearest Supermarkets

,,}

Nearest Religious buildings

,,}

Nearest Medical buildings

,,,}

Nearest Airports

}

Nearest Leisure Facilities

,,,,}

Nearest Tourist attractions

,,}

Nearest Train stations

,,,,}

Nearest Bus stations and stops

,,,,}

Nearest Hotels

,,}

Tags

Local Market Stats

AirBnB Data

Similar Properties

Meta

High Res Images

Compatible Images

Low res Images

Thumbnails

Raw Images

High Res Floorplan Images

Compatible Floorplan Images

Low res Floorplan Images

FloorplanImages Thumbnail

Raw Floorplan Images