Compact, low-cost apartment near Luton Airport and M1 connections.
Newly refurbished one-bedroom flat, ready to rent
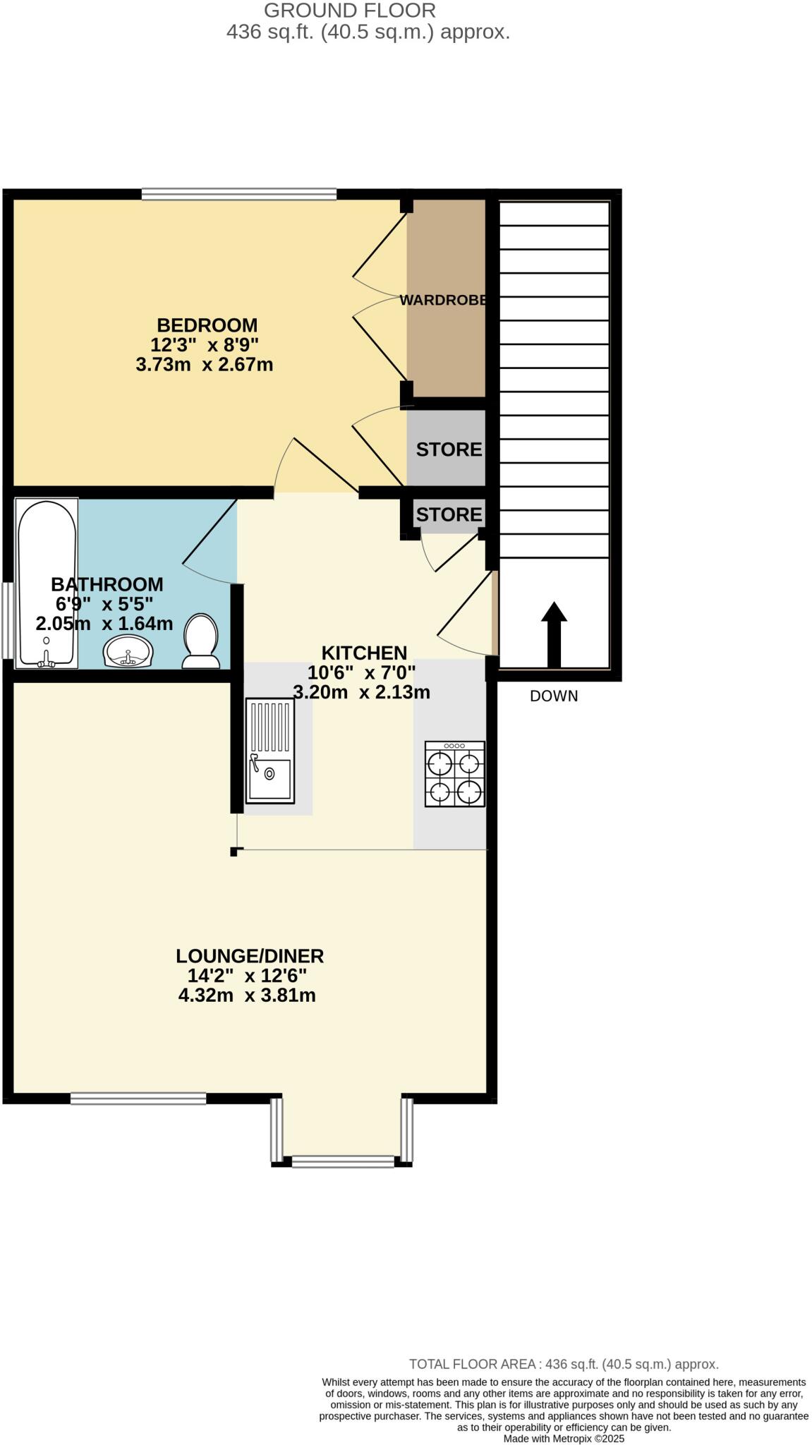
This newly refurbished one-bedroom flat on Mistletoe Hill offers a compact, ready-to-rent home a short distance from Luton Airport and M1 access. The open-plan living space, separate bedroom and modern finishes make it straightforward to let to airport staff or commuters seeking easy transport links.
Practical features include an allocated off-street parking space, a part-boarded loft with drop-down ladder for extra storage and very reasonable running costs: low council tax, modest service charge (£65pcm) and small ground rent (£100pa). The property’s small footprint (about 436 sq ft) and efficient layout suit single occupiers or couples and make management simple for a landlord.
Material considerations are factual: the flat is leasehold with 89 years remaining, and its overall size is limited. Investors should factor remaining lease length into long-term plans and potential mortgage/valuation implications. There are no reported flood risks and local amenities plus good broadband and mobile signal support rental appeal.
Overall this is a low-maintenance, well-presented apartment positioned for short-let or long-term rental to airport-related tenants or local commuters. Buyers seeking larger living space or a long lease term should note the compact layout and current lease length when deciding to view.
1 bedroom flat for sale in Stirling Drive, Luton, Bedfordshire, LU2 — £230,000 • 1 bed • 1 bath • 572 ft²
1 bedroom apartment for sale in BMV Luton Investment, LU2 — £249,950 • 1 bed • 1 bath
1 bedroom apartment for sale in BMV Luton Investment, LU2 — £170,000 • 1 bed • 1 bath
1 bedroom apartment for sale in New Build Luton Apartment, LU2 — £259,950 • 1 bed • 1 bath
1 bedroom apartment for sale in BMV Luton Investment, LU2 — £200,000 • 1 bed • 1 bath
1 bedroom flat for sale in Napier Road, Luton, LU1 — £150,000 • 1 bed • 1 bath






















































