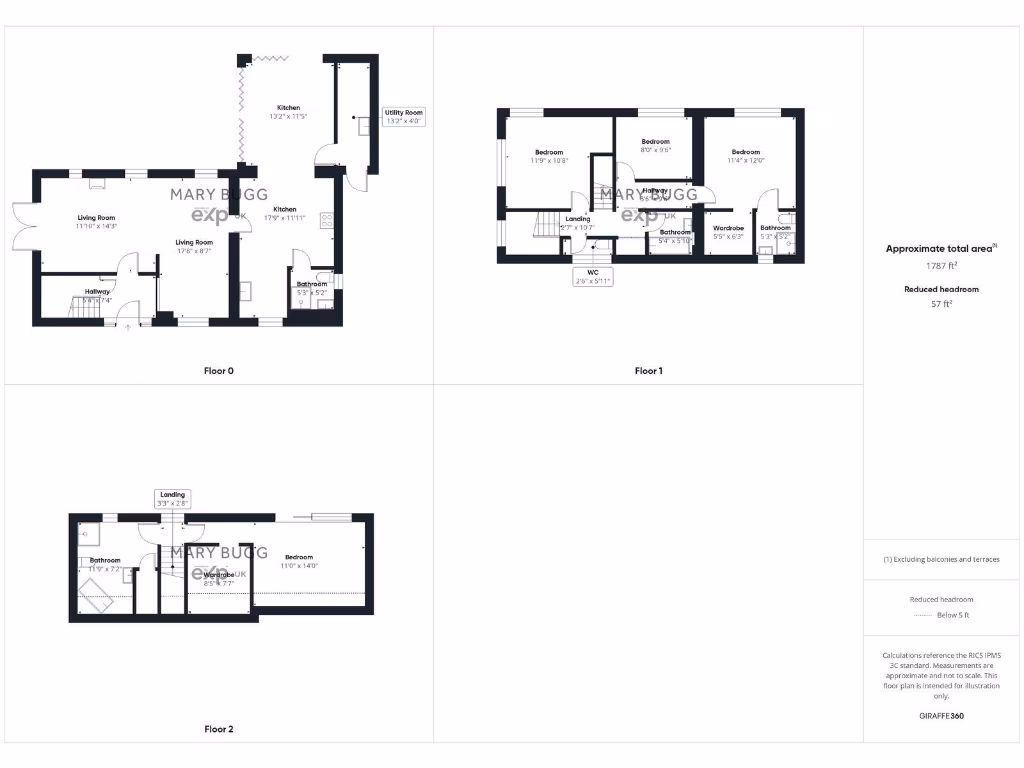
**Standout Features:**
- Four spacious bedrooms and four bathrooms
- Modern kitchen-diner-family space with bi-fold doors
- Expansive wraparound gardens backing onto open fields
- Luxurious main suite with panoramic views, dressing room, and en-suite
- Ample off-street parking
**Notable Concerns:**
- Crime rate: Above average
- Built in the mid-1900s, may require updates or maintenance
Discover the perfect blend of traditional charm and modern luxury in this stunning detached four-bedroom home, nestled in a picturesque hamlet just moments from Great Waltham village. Boasting a breathtaking kitchen-diner-family space adorned with elegant Shaker units and high gloss finishes, two sets of bi-fold doors seamlessly merge indoor and outdoor living. The spacious L-shaped lounge, warmed by a feature fireplace, opens to wraparound gardens that offer a serene backdrop for dining and entertaining.
Your tranquil main suite awaits on the top floor, featuring a Juliette balcony that frames open field vistas, a private dressing room, and a lavish four-piece bathroom. Ideally laid out, the home also provides three additional bedrooms, ensuring ample space for family or guests. With excellent off-street parking and a location just a stroll away from the village green, pub, and primary school, this residence offers both comfort and community.
While positioned in an affluent and vibrant area, be mindful of the higher crime rating. Ideal for families and first-time buyers alike, this home captures the essence of countryside living with modern convenience—opportunities like this don’t last long, so make it yours today!
4 bedroom detached house for sale in Broads Green, Great Waltham, Chelmsford, Essex, CM3 — £525,000 • 4 bed • 2 bath • 1432 ft²
4 bedroom chalet for sale in Blackmore End, Braintree, Essex, CM7 — £700,000 • 4 bed • 1 bath • 2143 ft²
3 bedroom terraced house for sale in Upper Moors, Great Waltham, Chelmsford, Essex, CM3 1RB, CM3 — £330,000 • 3 bed • 1 bath • 663 ft²
3 bedroom semi-detached house for sale in Barrack Lane, Great Waltham, Chelmsford, Essex, CM3 — £550,000 • 3 bed • 2 bath • 1310 ft²
4 bedroom semi-detached house for sale in Blasford Hill, Little Waltham, CM3 — £975,000 • 4 bed • 2 bath • 2066 ft²
2 bedroom house for sale in South Street, Great Waltham, Chelmsford, CM3 — £550,000 • 2 bed • 2 bath • 3109 ft²






















































































