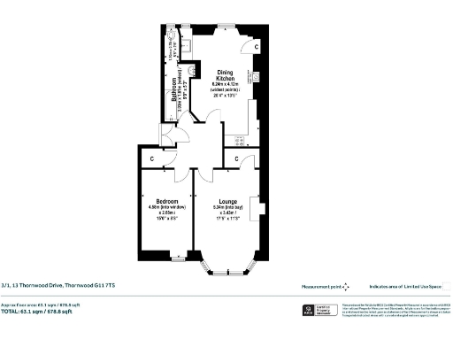
**Standout Features:**
- Spacious 1-bedroom Victorian apartment with high ceilings and period features.
- Excellent natural light with a bay window in the living room.
- Welcoming entry with storage, a feature fireplace, and hardwood flooring.
- Secure entry system and shared communal garden.
- Prime West End location with vibrant local amenities and good transport links.
**Notable Concerns:**
- Area classification indicates high levels of deprivation.
- Maintenance of communal areas may be needed due to age of the building.
**Summary:**
Discover an appealing Victorian one-bedroom apartment in the heart of Glasgow's bustling West End, priced at an attractive £159,000. This charming third-floor flat boasts delightful period features, including high ceilings and a bay window that floods the spacious living area with natural light. The property comprises a welcoming hallway with storage, a convivial dining kitchen, a generous double bedroom, and a well-maintained bathroom.
Nestled just off Dumbarton Road, you're steps away from an array of independent boutiques, cafes, and the vibrant atmosphere of Finnieston. Enjoy leisurely strolls along the Clyde and access to parks and cultural hot spots like the Kelvingrove Art Gallery. With excellent transport links nearby, commuting is a breeze, making this property perfect for first-time buyers or professionals seeking a secure and connected neighborhood.
**Important Note:** There is a closing date for offers, set for Friday, 22nd August at 11 AM. Given the desirable location and features, seize this opportunity to make this residence your own before it’s gone!
1 bedroom apartment for sale in White Street, Partick, Glasgow, G11 — £165,000 • 1 bed • 1 bath • 612 ft²
1 bedroom apartment for sale in Dumbarton Road, Whiteinch, Glasgow, G11 — £105,000 • 1 bed • 1 bath • 450 ft²
1 bedroom flat for sale in Dumbarton Road, Flat 2/1, Thornwood, Glasgow, G11 6RA, G11 — £155,000 • 1 bed • 1 bath • 840 ft²
1 bedroom flat for sale in Exeter Drive, Flat 1/3, Thornwood, Glasgow, G11 7UX, G11 — £159,000 • 1 bed • 1 bath • 667 ft²
1 bedroom apartment for sale in Thornwood Avenue, Thornwood, Glasgow, G11 — £125,000 • 1 bed • 1 bath • 454 ft²
1 bedroom apartment for sale in Fairlie Park Drive, Partick, Glasgow, G11 — £175,000 • 1 bed • 1 bath • 7987 ft²


















































































