Secluded estate with annexe, stables and extension potential close to Sandwich and Canterbury.
Grade II listed 15th-century manor with original beams and inglenook fireplaces
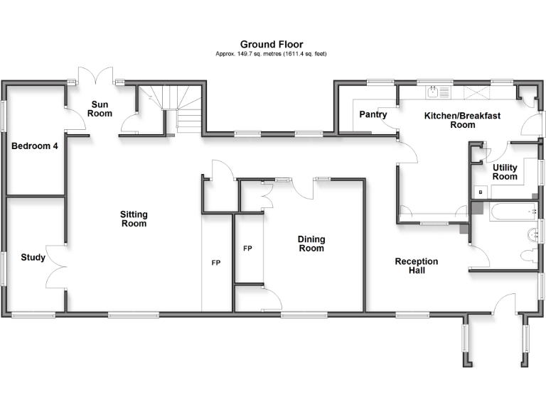
A rare Grade II listed manor dating from the 15th century, Lower Weddington Manor sits within about 1.84 acres of private grounds with a pond, orchard and three stables. The principal house retains abundant period features: exposed beams, inglenook fireplaces, leaded windows and oak floors, creating striking historic character across nearly 3,800 sq ft of accommodation. A refurbished one-bedroom annexe and separate gym/outbuildings add flexibility for guests, home working or rental income.
Practical strengths include a gated circular driveway with extensive parking, fast broadband, no flood risk and early possession available with no onward chain. Previously agreed planning permissions to extend the main house have lapsed; the owner believes they could be reinstated or amended, presenting potential to enlarge accommodation subject to consents. The annexe is largely self-contained and roomy, useful for multi-generational living or supplementation of income.
Clear-headed buyers should note this is a listed building, so alterations will be constrained and may be costly; Listed status will complicate extensions, repairs and service work. Heating is oil-fired to radiators and the walls are assumed to have no retrofit insulation, so energy improvements will require specialist consent and budget. Council tax is described as quite expensive and the property sits in an ageing, relatively deprived rural neighbourhood with average local services.
This property will suit buyers seeking privacy, historic character and extensive outdoor space and who accept the responsibilities of listed ownership. Those wanting a straightforward turnkey modern home should expect potential additional cost and planning time for upgrades and energy improvements.
6 bedroom detached house for sale in Canterbury, Kent, CT4 — £1,750,000 • 6 bed • 4 bath • 18199 ft²
6 bedroom house for sale in Biddenden, TN27 , TN27 — £3,650,000 • 6 bed • 5 bath • 4530 ft²
7 bedroom detached house for sale in Woodchurch, Kent, TN26 — £2,300,000 • 7 bed • 5 bath • 8318 ft²
4 bedroom detached house for sale in Barnsole Road, Staple, Canterbury, Kent, CT3 — £950,000 • 4 bed • 2 bath • 2089 ft²
6 bedroom detached house for sale in Bethersden, Ashford, Kent, TN26 — £1,600,000 • 6 bed • 3 bath • 3721 ft²
5 bedroom detached house for sale in Dover Road, Eastry, Sandwich, Kent, CT13 — £1,450,000 • 5 bed • 5 bath • 1916 ft²






































































































































