Light, refurbished home close to parks, schools and riverside amenities.
Bay-fronted double reception with original fireplaces
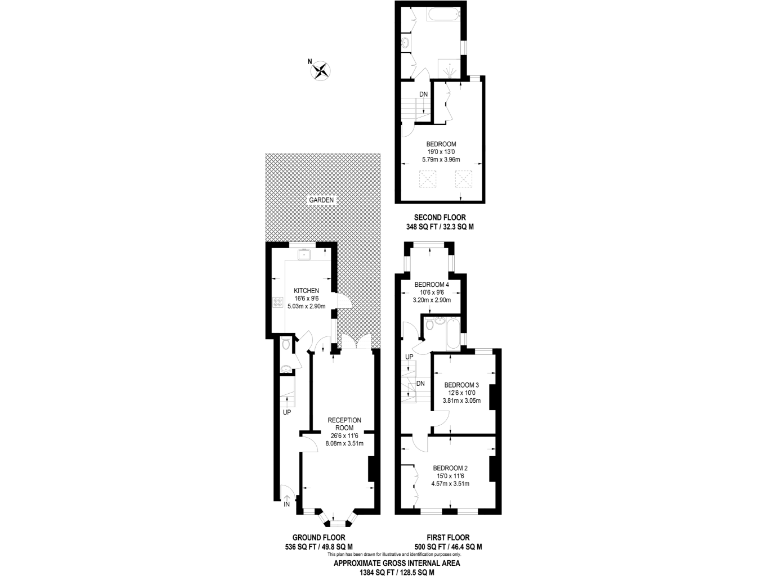
A beautifully refurbished Victorian mid-terrace offering four bedrooms across three bright floors, finished to a contemporary standard and ready to move into. Period features such as a bay-fronted double reception, high ceilings and fireplaces sit alongside a stunning fitted kitchen with integrated appliances and two contemporary bathrooms.
The house suits families seeking convenient access to Wandsworth and Putney amenities, excellent nearby schools and riverside green space. The loft bedroom with eaves storage and a generous second bedroom with fitted wardrobes add practical, flexible sleeping space for children or guests.
Outdoor space is a low-maintenance rear patio garden — useful for al fresco dining but small in plot size. The property is freehold, double-glazed and gas-heated via boiler and radiators, yet the original solid brick walls are assumed to lack cavity insulation, which may affect long-term energy efficiency and running costs.
Presented in immaculate condition following a full refurbishment, the house offers strong live-in comfort with scope for further improvement if buyers want to enhance energy performance. Crime levels are average for the area and flooding risk is very low.
4 bedroom terraced house for sale in Eltringham Street, Battersea, London, SW18 — £1,200,000 • 4 bed • 2 bath • 1220 ft²
4 bedroom house for sale in Merton Road, Wandsworth, London, SW18 — £1,000,000 • 4 bed • 3 bath • 1373 ft²
4 bedroom house for sale in Sudlow Road, Wandsworth, SW18 — £850,000 • 4 bed • 2 bath • 1425 ft²
4 bedroom terraced house for sale in Fawe Park Road, Putney, London, SW15 — £1,500,000 • 4 bed • 2 bath • 1579 ft²
4 bedroom house for sale in Mexfield Road, London, SW15 — £1,650,000 • 4 bed • 3 bath • 2379 ft²
4 bedroom flat for sale in Knowsley Road, Battersea, London, SW11 — £1,200,000 • 4 bed • 2 bath • 1213 ft²


























































































































































