ML6 8XN - 2 bedroom flat for sale in Arranview Street, Chapelhall, Ai…

View on Property Piper

2 bedroom flat for sale in Arranview Street, Chapelhall, Airdrie, ML6

Summary - Arranview Street, Chapelhall, Airdrie ML6 8XN

2 bed 1 bath Flat

Renovation project with up to £650pcm rent potential, close to Glasgow links.
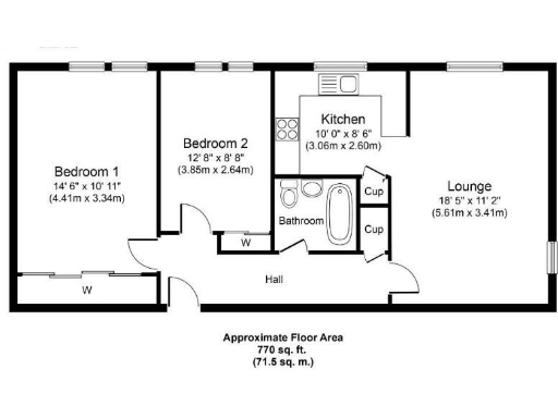
2 double bedrooms and lounge in 770 sq ft layout
A two-bedroom second-floor flat offering straightforward buy-to-let potential in Chapelhall, Airdrie. The property totals about 770 sq ft with a conventional layout: lounge, two double bedrooms, fitted kitchen and an electric shower room. Post-war communal building with standard ceiling heights and compact room sizes.

The flat requires renovation throughout—cosmetic and functional upgrades will be needed to make it tenant-ready. Good rental indications are present: agents estimate up to £650 pcm achievable, but final rental income will depend on the standard of refurbishment and tenancy/tenure clarity. Broadband speeds are fast and mobile signal is excellent, suiting modern tenants.

Location benefits include proximity to local shops, bus links, schools and leisure facilities, and road access toward Glasgow via the M8/A8 corridor. There is no recorded flood risk. Be aware the wider area is classified as very deprived, which affects long‑term demand and resale values; this is a predominantly hard-pressed rented terrace area.

Practical matters: the flat is sold in need of upgrading and the tenure situation is unknown, so buyers should investigate title and any existing tenancies. This is a clear renovation project geared at landlords or experienced investors prepared to carry out works and manage tenancy risk.

Property Details

Image Descriptions

Floorplan Description

Rooms

Textual Property Features

Target Audience

AI Tags

Detected Visual Features

Nearest Bars And Restaurants

,,,,}

Nearest General Shops

,,}

Nearest Grocery shops

,,}

Nearest Supermarkets

,,}

Nearest Religious buildings

,,}

Nearest Medical buildings

,,,}

Nearest Airports

,}

Nearest Leisure Facilities

,,,,}

Nearest Tourist attractions

,,}

Nearest Train stations

,,,,}

Nearest Bus stations and stops

,,,,}

Nearest Hotels

,,}

Tags

Local Market Stats

Similar Properties

Meta

High Res Images

Compatible Images

Low res Images

Thumbnails

Raw Images

High Res Floorplan Images

Compatible Floorplan Images

Low res Floorplan Images

FloorplanImages Thumbnail

Raw Floorplan Images