Spacious family home with large garden and extension potential near Hither Green.
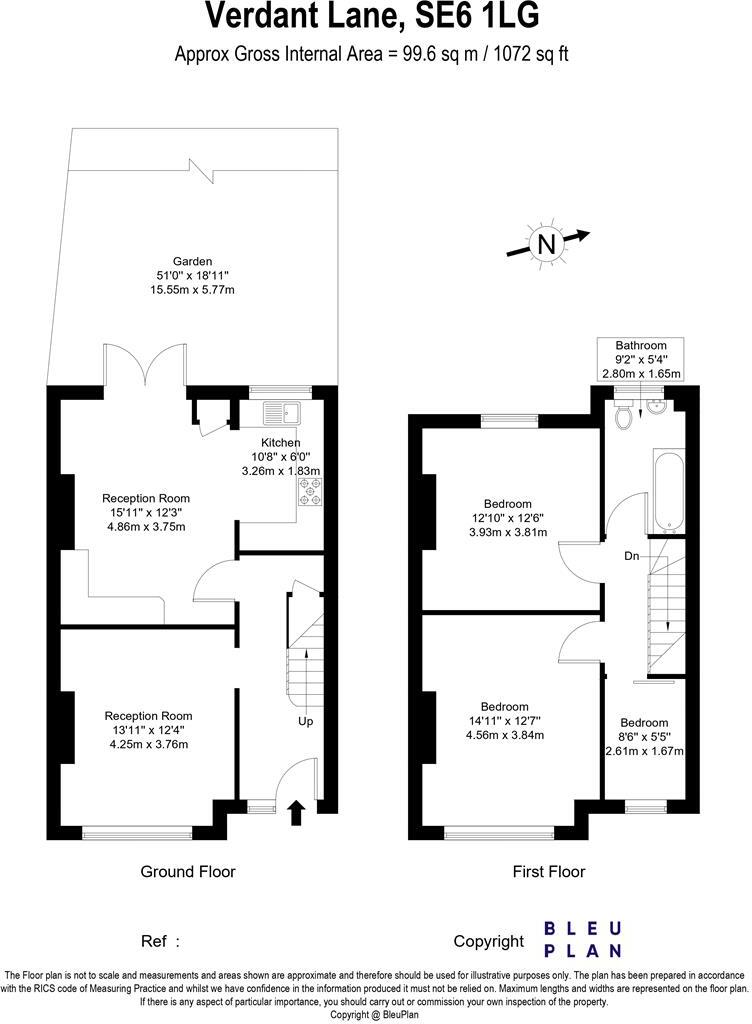
3 bedrooms, 1 family bathroom, two generous doubles
Large landscaped rear garden, unusual for an urban terrace
Private front driveway providing off-street parking
1072 sq ft internal space across two storeys
0.7 miles to Hither Green Station, good commuter links
Potential to extend subject to planning permission (STPP)
Solid brick walls with no assumed insulation; may need upgrades
Area classified as relatively deprived; consider local context
This Victorian mid-terrace offers 1,072 sq ft of adaptable family space on a residential street between Hither Green and Catford. Two reception rooms flow into an open-plan kitchen that opens onto a large landscaped rear garden—rare for an inner-urban terrace—and a private front driveway provides convenient off-street parking.
The house has three bedrooms (two generous doubles), a single family bathroom and good natural light. Constructed in the 1930s–1940s with solid brick walls, the property benefits from double glazing and mains gas heating, but the fabric may need upgrading (no wall insulation assumed) if improving energy performance is a priority.
There is clear potential to extend subject to planning (STPP), so the layout can be enlarged or reorganised to suit growing family needs or to enhance rental income. Hither Green station is about 0.7 miles away, and several well-regarded primary schools are within easy reach, making the location practical for commuting families.
Buyers should note the area scores as relatively deprived overall, and the house will likely require some refurbishment to modernise services and improve insulation. The single bathroom and period construction mean updates could be beneficial to unlock full value.
3 bedroom terraced house for sale in Hither Green, London, SE13 — £600,000 • 3 bed • 1 bath • 1215 ft²
3 bedroom end of terrace house for sale in Verdant Lane, Catford, London, SE6 — £550,000 • 3 bed • 1 bath • 1400 ft²
5 bedroom terraced house for sale in Verdant Lane, Catford, London, SE6 — £775,000 • 5 bed • 3 bath • 1749 ft²
3 bedroom terraced house for sale in Leahurst Road, Hither Green, SE13 — £750,000 • 3 bed • 1 bath • 1032 ft²
3 bedroom house for sale in Laleham Road, Catford, SE6 — £575,000 • 3 bed • 2 bath • 1251 ft²
4 bedroom terraced house for sale in Fernbrook Road, London, SE13 — £715,000 • 4 bed • 2 bath • 1109 ft²










































































