ME7 5QA - 2 bedroom end of terrace house for sale in Shakespeare Road…

View on Property Piper

2 bedroom end of terrace house for sale in Shakespeare Road, Gillingham - 2 FLATS, ME7

Summary - FLAT A, 106, SHAKESPEARE ROAD ME7 5QA

2 bed 2 bath End of Terrace

**Standout Features:**
- Spacious end-of-terrace property configured into two generous 1-bedroom flats
- Large rear garden, perfect for outdoor activities or potential extensions
- Excellent rental investment opportunity or ideal for conversion into a large family home (subject to planning permission)
- No chain, making for a quick purchase
- Proximity to Medway Hospital, Gillingham Station, and several schools

**Summary:**
This substantial period property offers exceptional investment potential with its unique configuration of two spacious 1-bedroom flats, each benefiting from their own distinct charm. The expansive rear garden provides a rare outdoor retreat for city living, ideal for relaxation or gardening. Combining comfort and convenience, this home is perfectly situated near important amenities—just a stone's throw from Medway Hospital and top-rated schools, making it appealing for families as well.

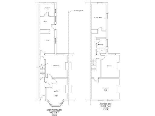
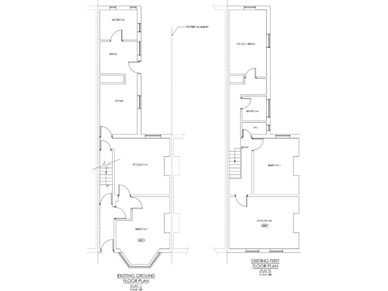
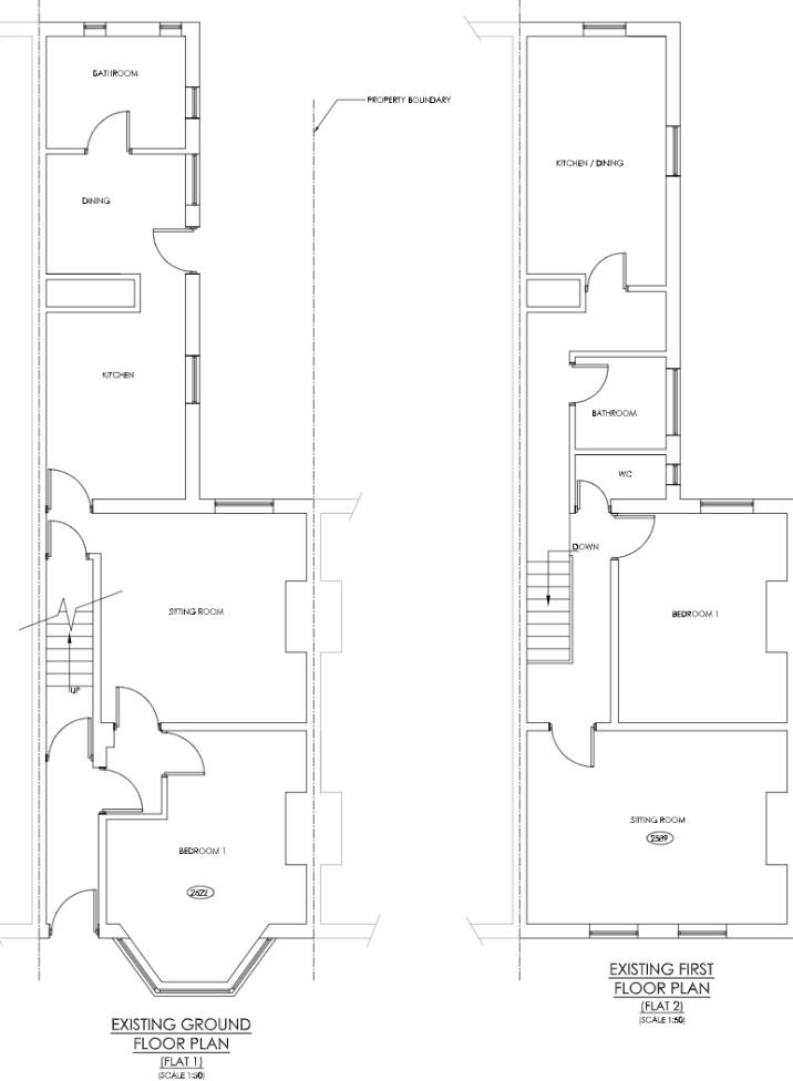
Currently, the ground floor features a practical layout with a bedroom, lounge, dining area, kitchen, and a bathroom, while the top floor maintains a similar structure with additional amenities, ensuring generous living spaces. As a bonus, this property comes chain-free, allowing for a swift transition. While it may require some renovation and modernization, the potential for future growth and personalization is vast, providing a canvas for both investors and families alike. Don’t miss out on this rare opportunity; schedule your viewing today!

Property Details

Brochure Descriptions

Image Descriptions

Floorplan Description

Rooms

Textual Property Features

Detected Visual Features

EPC Details

Nearby Schools

Nearest Bars And Restaurants

,,,,}

Nearest General Shops

,,}

Nearest Grocery shops

,,}

Nearest Supermarkets

,,}

Nearest Religious buildings

,,}

Nearest Medical buildings

,,,}

Nearest Airports

,}

Nearest Leisure Facilities

,,,,}

Nearest Tourist attractions

,,}

Nearest Train stations

,,,,}

Nearest Bus stations and stops

,,,,}

Nearest Hotels

,,}

Tags

Local Market Stats

AirBnB Data

Meta

High Res Images

Compatible Images

Low res Images

Thumbnails

Raw Images

High Res Floorplan Images

Compatible Floorplan Images

Low res Floorplan Images

FloorplanImages Thumbnail

Raw Floorplan Images