Affordable Edwardian terrace with large garage and garden — ideal for first-time buyers..
Chain-free three-bedroom mid-terrace with open-plan ground floor
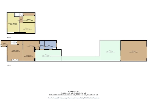
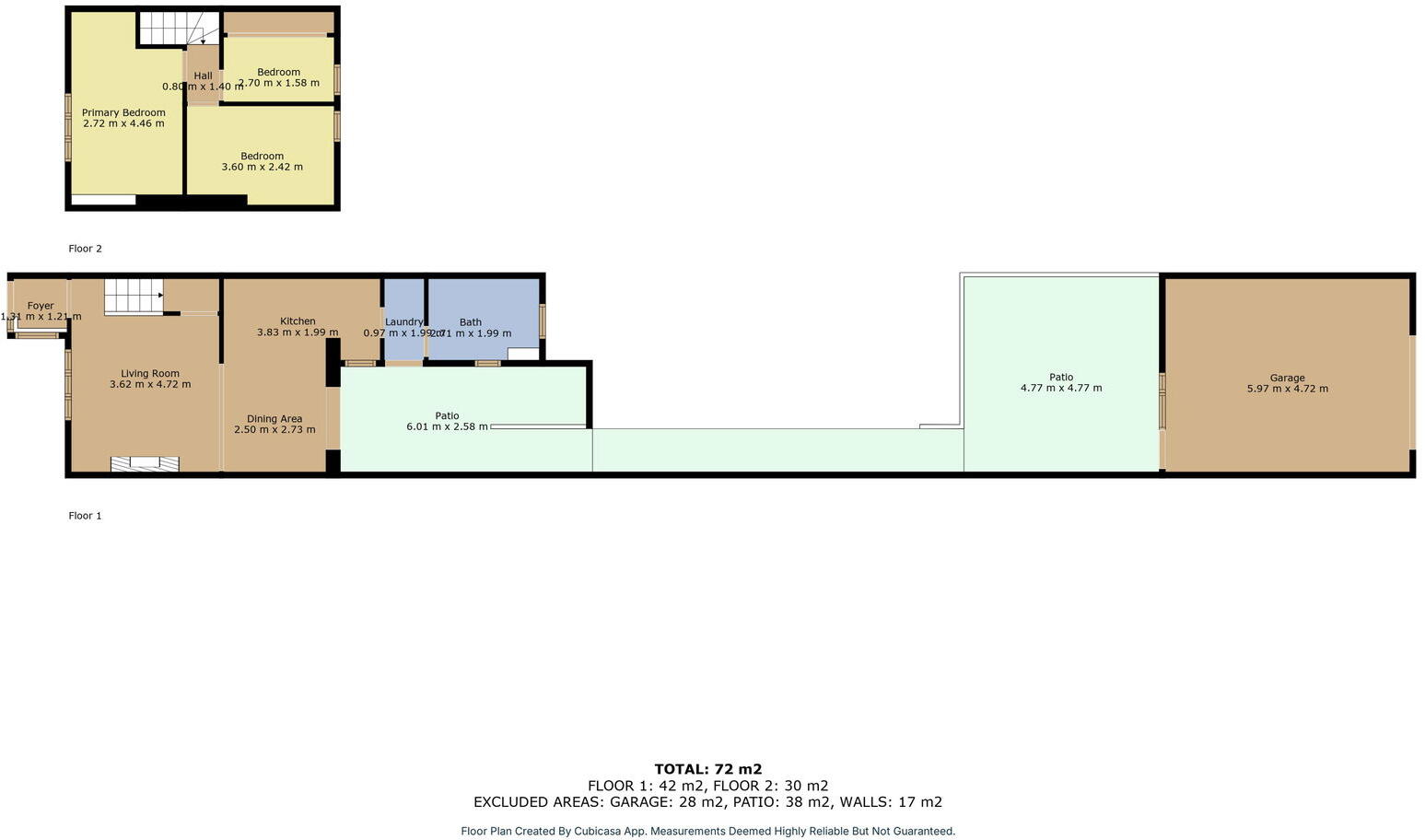
This chain-free three-bedroom mid-terrace offers an affordable entry into Caerphilly with a rare, substantial garage and private lane access. The ground floor’s open-plan flow creates a light-filled reception and dining area leading to the kitchen, utility and family bathroom — a practical layout for everyday family life or first-time buyers looking to personalise a home.
Upstairs are three bedrooms: two good-sized doubles and a smaller third currently used as a dressing room. The generous rear garden provides outdoor space that leads to a large detached garage (approx. 5.97m x 4.72m), a significant advantage where on-street parking is common.
The property is traditional Edwardian stock with double glazing installed before 2002, mains gas central heating and sandstone/limestone walls that are assumed uninsulated. It will suit buyers prepared to carry out updating and potential damp checks; there is scope to modernise and add value.
Location strengths include strong transport links to Cardiff, nearby schools, local parks and town-centre amenities. Be aware the immediate area is classed as very deprived with above-average crime statistics; plot size is small and rooms are generally compact. Council tax banding is affordable and tenure is freehold.
3 bedroom end of terrace house for sale in Wilkins Terrace, Caerphilly, CF83 2NH, CF83 — £160,000 • 3 bed • 1 bath • 743 ft²
3 bedroom terraced house for sale in Wilkins Terrace, Caerphilly, CF83 2NH, CF83 — £160,000 • 3 bed • 1 bath • 690 ft²
3 bedroom terraced house for sale in Princes Avenue, Caerphilly, CF83 1HS, CF83 — £315,000 • 3 bed • 1 bath • 1356 ft²
3 bedroom semi-detached house for sale in Heol Ynys Ddu, Caerphilly, CF83 — £280,000 • 3 bed • 1 bath • 990 ft²
3 bedroom terraced house for sale in Bartlett Street, Caerphilly CF83 1JT, CF83 — £220,000 • 3 bed • 1 bath • 744 ft²
3 bedroom terraced house for sale in Van Road, Caerphilly, CF83 — £180,000 • 3 bed • 1 bath • 626 ft²










































































































