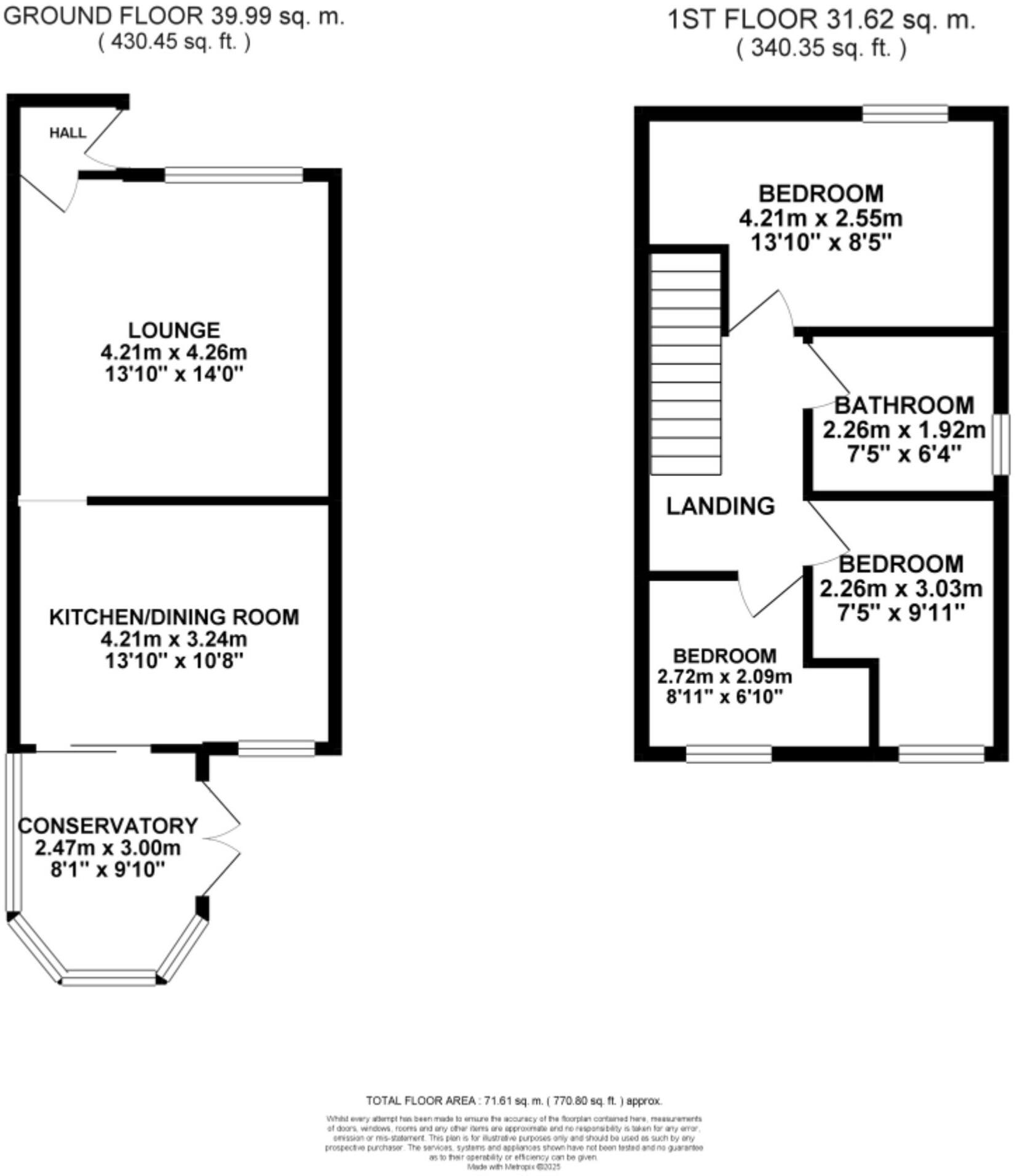
**Standout Features:**
- 3 bedrooms, 1 modern bathroom
- Generous corner plot with low-maintenance paved garden
- Spacious driveway with off-street parking for multiple vehicles
- Bright open-plan kitchen diner with integrated appliances
- Stylish living room featuring a contemporary media wall
- Airy conservatory ideal for relaxation and entertaining
- Feature glass staircase adding a touch of luxury
- Freehold and chain-free, perfect for easy moving
Nestled in a quiet cul-de-sac in the desirable Melling Mount area, this stylish 3-bedroom semi-detached home offers an exceptional blend of comfort and modernity, making it ideal for families. With a spacious driveway accommodating multiple cars and a beautifully maintained front garden, this property features a warm living room anchored by a chic media wall and an inviting kitchen-diner with integrated appliances, perfect for family gatherings. The conservatory provides a delightful retreat overlooking the low-maintenance garden, perfect for sunny days or cozy evenings.
Upstairs, you'll find three generous bedrooms, with one featuring fitted wardrobes for added convenience, and a meticulously modern bathroom boasting a large walk-in shower. The glass-panelled staircase enhances the home's light and airy feel, making it a true sanctuary. With no onward chain, this home presents a fantastic opportunity for first-time buyers or families looking to settle in a comfortable, family-friendly suburb. Don’t miss out on the chance to call this lovely property your new home!
2 bedroom semi-detached house for sale in Bathgate Way, Liverpool, Merseyside, L33 — £150,000 • 2 bed • 1 bath • 723 ft²
2 bedroom semi-detached house for sale in Beattock Close, Kirkby, L33 — £152,000 • 2 bed • 1 bath • 440 ft²
3 bedroom semi-detached house for sale in Bearwood Road, Kirkby, L33 — £230,000 • 3 bed • 2 bath • 930 ft²
3 bedroom semi-detached house for sale in Satinwood Crescent, Melling, L31 1JY, L31 — £219,950 • 3 bed • 2 bath • 933 ft²
3 bedroom detached house for sale in Spencers Lane, Melling, Merseyside, L31 — £300,000 • 3 bed • 1 bath • 1097 ft²
3 bedroom semi-detached house for sale in Yew Tree Green, Melling, L31 — £230,000 • 3 bed • 1 bath • 1033 ft²


























































































