CV22 7RA - 4 bed detached family home bilton in Bilton, CV22 7RA

View on Property Piper

4 bedroom detached house for sale in Alwyn Road, Bilton, Rugby, CV22

Summary - 220, Alwyn Road, Bilton CV22 7RA

4 bed 1 bath Detached

Quiet plot backing onto fields with large garden and garage parking.
- Four bedrooms with flexible family accommodation
- Large rear garden backing onto open fields
- Conservatory overlooking the garden, adds living space
- Driveway plus integral garage for off-road parking
- Offered with no onward chain, quicker completion possible
- Requires modernisation and cosmetic updating throughout
- Garden overgrown in places; needs landscaping and maintenance
- One family bathroom plus separate WC; may suit larger families
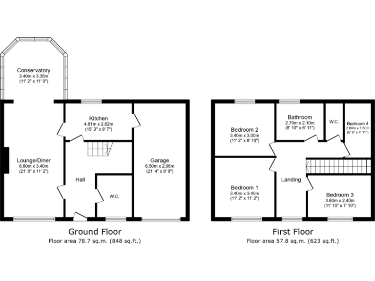
This four-bedroom detached house on Alwyn Road sits on a generous plot backing onto open fields, offering a private garden and countryside outlook ideal for family life. The ground floor layout includes an entrance hall, guest WC, through lounge/dining room, fitted kitchen and conservatory that brings light into the rear living space. Upstairs provides four well-proportioned bedrooms, a family bathroom and a separate WC, giving flexible accommodation for children, home office space or guests.

The property benefits from off-road parking via a driveway and an integral garage, double glazing and mains gas central heating. It is offered with no onward chain, allowing a quicker move for buyers. The location is family-friendly with several good local primary and secondary schools within easy reach and convenient access to local shops and bus routes.

The house dates from the late 1970s and presents clear potential for improvement and modernisation; cosmetic updating and some maintenance are needed throughout. The rear garden is large but currently overgrown in places and would reward landscaping. The driveway shows weathering and the home retains some older fixtures and finishes consistent with its age.

Practical points to note: council tax sits above average for the area and there is only one full bathroom plus a separate WC, which families should consider. Overall, this is a detached family home in a sought-after setting that will suit buyers looking to personalise and add value in a very convenient Bilton location.

Property Details

Image Descriptions

Floorplan Description

Rooms

Textual Property Features

Target Audience

AI Tags

Detected Visual Features

EPC Details

Nearby Schools

Nearest Bars And Restaurants

,,,,}

Nearest General Shops

,,}

Nearest Grocery shops

,,}

Nearest Supermarkets

,,}

Nearest Religious buildings

,,}

Nearest Medical buildings

,,,}

Nearest Airports

}

Nearest Leisure Facilities

,,,,}

Nearest Tourist attractions

,,}

Nearest Train stations

,,,,}

Nearest Bus stations and stops

,,,,}

Nearest Hotels

,,}

Tags

Local Market Stats

Similar Properties

Meta

High Res Images

Compatible Images

Low res Images

Thumbnails

Raw Images

High Res Floorplan Images

Compatible Floorplan Images

Low res Floorplan Images

FloorplanImages Thumbnail

Raw Floorplan Images