Spacious character home with flexible layout and sunny garden.
Period red sandstone terrace with high ceilings and bay windows
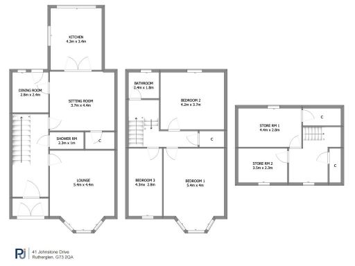
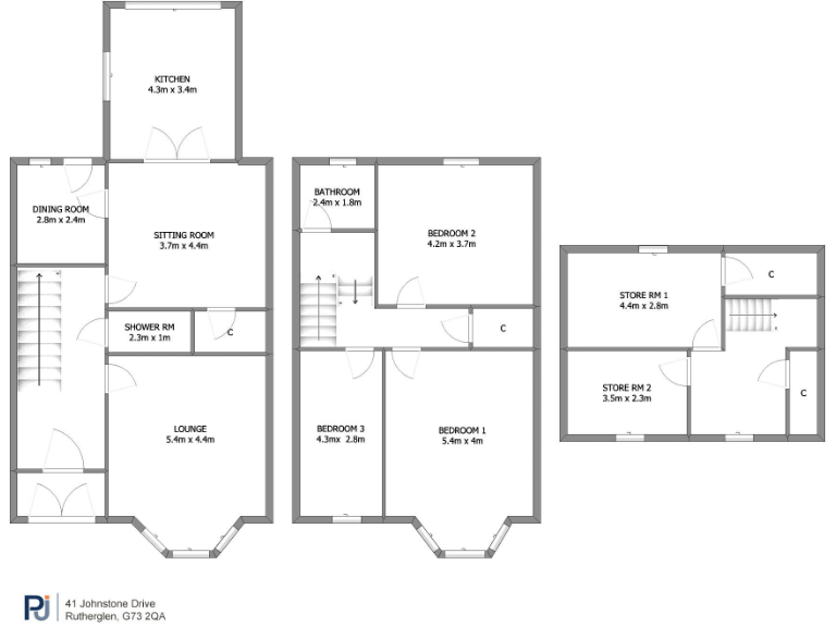
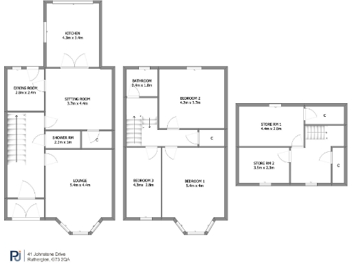
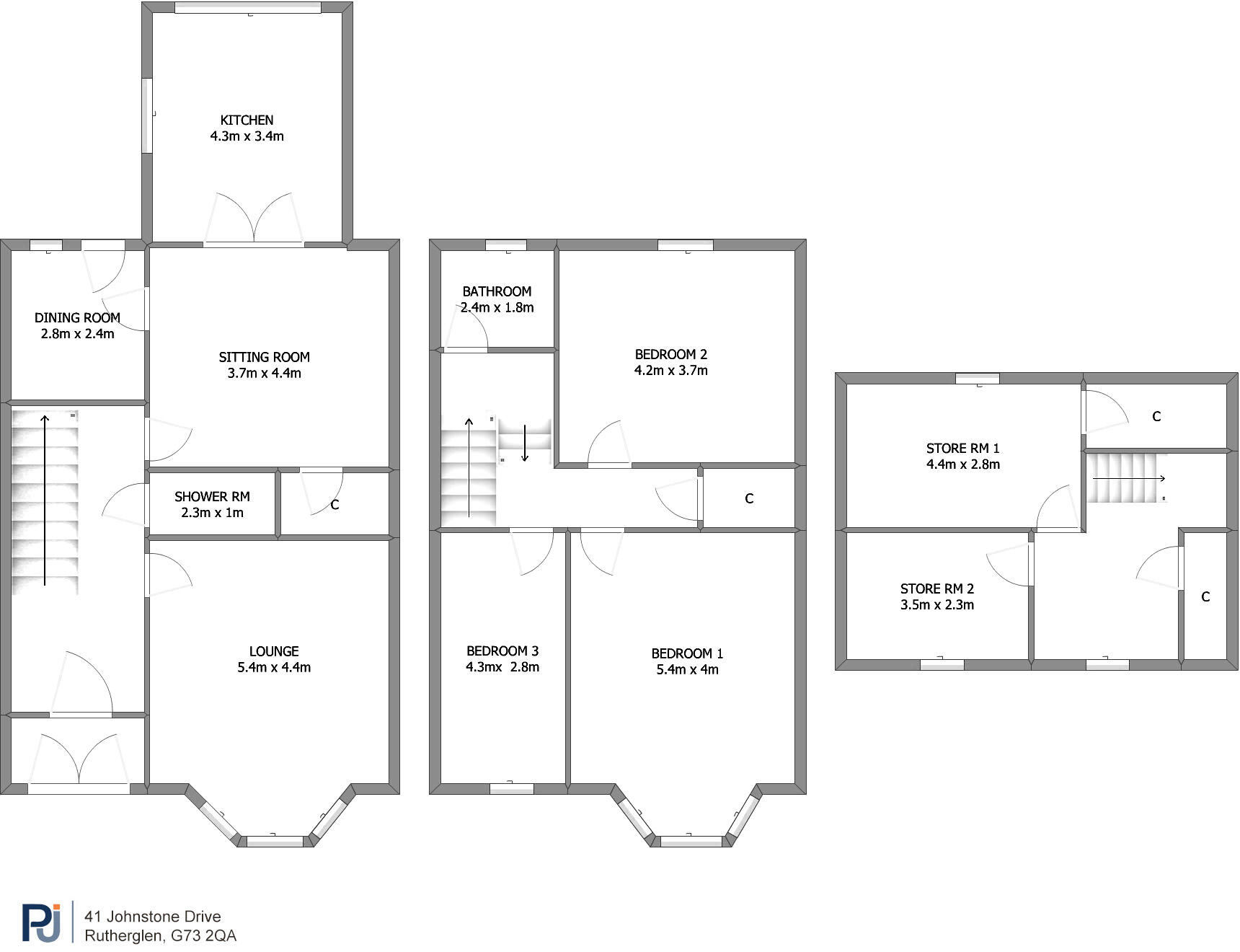
6 flexible principal rooms plus two attic rooms for storage or office
Three double bedrooms and two modern bathrooms
South-facing rear garden, level and well maintained
New Vokera combi boiler (Nov 2024) with remaining warranty
Some roof work likely required; external inspection recommended
Reported damp issues at rear — professional survey advised
Tenure not confirmed; area shows higher deprivation indices
A striking red sandstone Victorian terrace offering generous, flexible accommodation in the heart of Rutherglen. The house is presented in immaculate order throughout and retains many original features — high ceilings, bay windows and period plasterwork — alongside modern conveniences including double glazing, gas central heating and a new Vokera combi boiler (installed November 2024, remaining warranty). The layout provides six flexible apartments/rooms, three double bedrooms and two bathrooms over a large 1,481 sq ft footprint, plus two attic rooms ideal for storage or a home office.
The home works well for families seeking character with practical living space: a formal lounge with bay window, separate sitting/family room, a generous breakfasting kitchen and a study/dining room that opens straight onto the south-facing rear garden. The garden is level, well maintained and enjoys sun for much of the day. Local amenities, parks, schools and frequent bus and rail links to Glasgow are all within easy walking distance, making everyday life straightforward.
Important matters are disclosed plainly. External images indicate some roof work may be required and there are reported damp issues at the rear; these need inspection and possible repair. Tenure is not confirmed in the provided details, and the surrounding area is recorded with higher deprivation indices — factors to consider for resale or rental planning. Council tax is described as affordable.
Overall this property will suit buyers who value period character and flexible, roomy accommodation and who are comfortable managing some external repairs and damp remediation. The combination of location, generous internal space and south-facing garden presents clear potential for a comfortable family home or a thoughtfully converted multi-room layout.
3 bedroom terraced house for sale in 25 Watson Avenue, Rutherglen, Glasgow, G73 2NL, G73 — £279,000 • 3 bed • 2 bath • 1367 ft²
3 bedroom semi-detached house for sale in 42 Scioncroft Avenue, Rutherglen, Glasgow, G73 — £350,000 • 3 bed • 3 bath • 1069 ft²
3 bedroom terraced house for sale in 33 Watson Avenue, Rutherglen, Glasgow, G73 — £285,000 • 3 bed • 1 bath • 1305 ft²
3 bedroom end of terrace house for sale in Springfield Park Road, Rutherglen, Glasgow, South Lanarkshire, G73 — £315,000 • 3 bed • 1 bath • 940 ft²
3 bedroom end of terrace house for sale in Clincarthill Road, Rutherglen, Glasgow, South Lanarkshire, G73 — £280,000 • 3 bed • 1 bath • 966 ft²
3 bedroom semi-detached house for sale in 37 Parkhill Drive, Rutherglen, Glasgow, G73 — £395,000 • 3 bed • 1 bath • 2188 ft²






















































































































































































