Spacious family terrace with garden and parking, ready for personalisation.
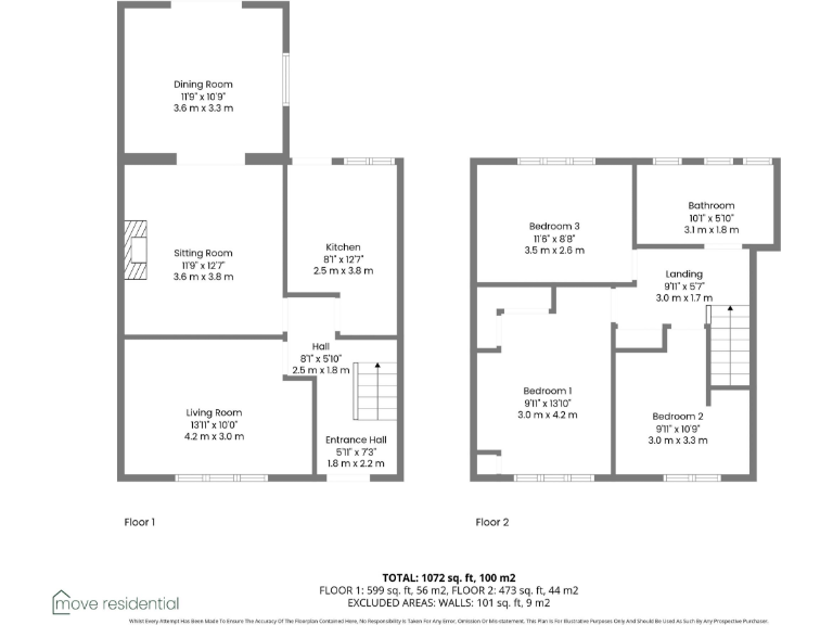
Freehold three-bedroom mid-terrace, approx. 1,072 sq ft
Two reception rooms plus dining room with French doors
Decent enclosed rear garden with patio and lawn
Gated off-street parking to the front
Contemporary-style family shower room, single bathroom only
Lived-in condition — cosmetic updating would add value
Located in a very deprived area; local rented terraces common
Average crime levels; excellent mobile and fast broadband
This mid-terrace three-bedroom home on Hartland Road offers practical family living across two well-defined storeys. At about 1,072 sq ft the layout provides two reception rooms, a dining room with French doors to the garden, and a fitted kitchen — useful for households wanting separate living and dining spaces rather than open-plan.
The property is offered freehold and includes off-street gated parking and a decent enclosed rear garden with lawn and patio — good for children and outdoor entertaining. Interiors are presented in sound, lived-in condition with a contemporary-style family shower room and three double bedrooms; modest cosmetic updating would increase appeal and value.
Important considerations: the house sits within an area classified as very deprived with predominantly rented terraces locally; crime levels are average. While broadband and mobile signal are strong and local primary and secondary schools include several rated Good by Ofsted, buyers should accept the neighbourhood context and potential rental-market characteristics.
Overall, this is a straightforward family home with scope for cosmetic improvement or light refurbishment to personalise. It will suit buyers seeking defined living rooms, outdoor space and parking, or investors targeting resale uplift through modernisation.
3 bedroom end of terrace house for sale in Hollingbourne Road, Liverpool, Merseyside, L11 — £160,000 • 3 bed • 1 bath • 730 ft²
3 bedroom terraced house for sale in Hartsbourne Avenue, Liverpool, Merseyside, L25 — £190,000 • 3 bed • 1 bath • 916 ft²
3 bedroom house for sale in Broad Lane, L11 8LY, , L11 — £165,000 • 3 bed • 1 bath • 948 ft²
3 bedroom terraced house for sale in Lisburn Lane, Liverpool, Merseyside, L13 — £120,000 • 3 bed • 1 bath • 1129 ft²
3 bedroom terraced house for sale in East Lancashire Road, Liverpool, L11 — £170,000 • 3 bed • 1 bath • 915 ft²
3 bedroom semi-detached house for sale in Wolfberry Drive, Norris Green, L11 — £220,000 • 3 bed • 3 bath • 984 ft²


















































