**Standout Features:**
- Link detached, three-bedroom home
- No onward chain—move in quickly!
- Flexible garage conversion for additional bedroom or study
- South-facing rear garden with patio and summer house
- Off-street parking in a central location
- Modern kitchen with integrated appliances
- Fast broadband and excellent mobile signal
**Potential Concerns:**
- Property is located in an area with very high crime rates
- Average-sized living space may limit flexibility in room arrangements
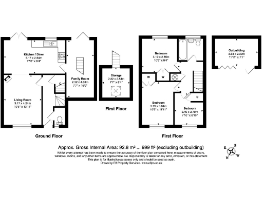
This charming three-bedroom link-detached home welcomes you with a convenient, chain-free opportunity nestled in the heart of Witney, ideal for families or professionals alike. Spanning approximately 999 sq. ft., the flexible layout includes a cozy sitting room with a wood-burning stove, a modern kitchen/dining area, and an innovative garage conversion that can serve as a fourth bedroom or home office. Enjoy sunny afternoons in the well-maintained south-facing garden, complete with a patio, storage sheds, and a rustic summer house—perfect for relaxation or gatherings.
With off-street parking and fast broadband connectivity, this property combines comfort and accessibility. Located in a highly qualified professional area, it boasts excellent access to East Witney’s local amenities, schools with good ratings, and scenic countryside, providing an attractive lifestyle balance. However, potential buyers should be mindful of the neighborhood's high crime rate while exploring this unique opportunity—properties with such versatility and charm don't stay on the market for long! Explore the future potential of this home and imagine the possibilities waiting for you.
3 bedroom semi-detached house for sale in Woodley Green, Witney, Oxfordshire, OX28 — £375,000 • 3 bed • 2 bath • 786 ft²
3 bedroom link detached house for sale in Vanner Road, Witney, OX28 — £450,000 • 3 bed • 1 bath • 1076 ft²
3 bedroom detached house for sale in Ralegh Crescent, Witney, OX28 — £450,000 • 3 bed • 2 bath • 1123 ft²
3 bedroom link detached house for sale in Farmers Close, Witney, Oxfordshire, OX28 — £345,000 • 3 bed • 1 bath • 1166 ft²
4 bedroom detached house for sale in Weavers Close, Witney, OX28 — £475,000 • 4 bed • 2 bath • 797 ft²
3 bedroom semi-detached house for sale in Witney, Oxfordshire, OX28 — £375,000 • 3 bed • 2 bath • 1186 ft²






































































