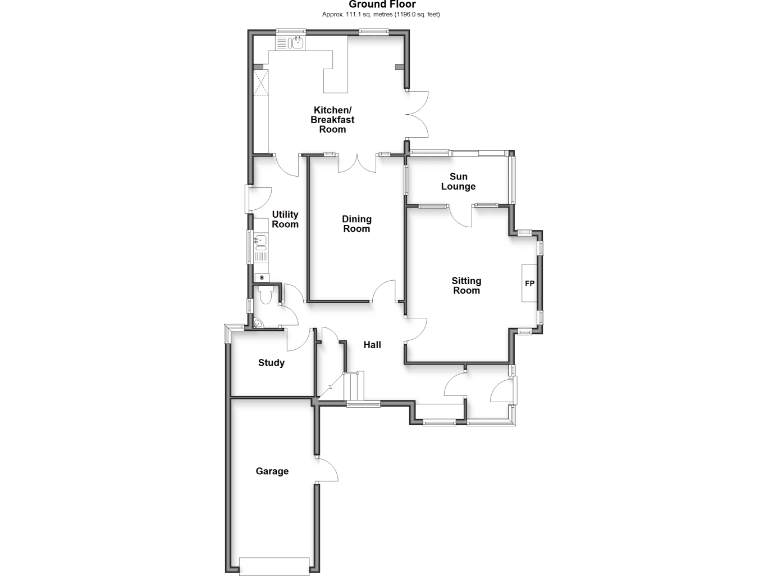
**Standout Features:**
- Elegant Edwardian detached house built in 1910
- Four spacious double bedrooms and two bathrooms
- Stunning period details: exposed beams, oak panelled walls, original fireplaces
- Generous garden with a raised terrace for outdoor entertaining
- Convenient garage and ample driveway parking
- Prime location near local schools, transport links, and the seaside
- Chain-free sale with potential for early possession
This charming Edwardian detached house is a perfect blend of period elegance and modern family living, boasting 2455 sq ft of versatile space. Discover the exquisite features from 1910, including original oak flooring, a stunning staircase, and stained glass windows that provide a welcoming atmosphere throughout. The heart of the home is the expansive kitchen/breakfast room, complete with modern appliances and direct access to the terrace, ideal for entertaining.
Families will appreciate the proximity to top-rated schools, including the prestigious Chatham and Clarendon Grammar School, as well as easy access to the vibrant town centre and the sandy beaches. The serene south-facing garden provides a private retreat, highlighted by a summerhouse featuring a large Jacuzzi—perfect for unwinding after a long day.
While the property is in excellent condition, it does have solid brick walls without insulation, which presents a future opportunity for renovations tailored to personal preferences. The current owners have enjoyed peaceful living here for the past eight years and speak highly of the friendly neighbourhood and local amenities. With no onward chain, this desirable home invites you to seize the moment—don’t miss out on a chance to create lasting memories in this enchanting residence!
4 bedroom detached house for sale in London Road, Ramsgate, Kent, CT11 — £750,000 • 4 bed • 1 bath • 1432 ft²
4 bedroom detached house for sale in London Road, Ramsgate, Kent, CT11 — £900,000 • 4 bed • 3 bath • 2315 ft²
4 bedroom detached house for sale in Dumpton Park Drive, Ramsgate, CT11 — £650,000 • 4 bed • 1 bath • 1268 ft²
5 bedroom detached house for sale in Stancomb Avenue, Ramsgate, CT11 — £1,250,000 • 5 bed • 2 bath • 4384 ft²
4 bedroom semi-detached house for sale in South Eastern Road, Ramsgate, Kent, CT11 — £500,000 • 4 bed • 2 bath • 2370 ft²
5 bedroom detached house for sale in London Road, Ramsgate, Kent, CT11 — £1,100,000 • 5 bed • 6 bath • 3089 ft²






















































































