Auction opportunity for renovation or investment in central Sandbach.
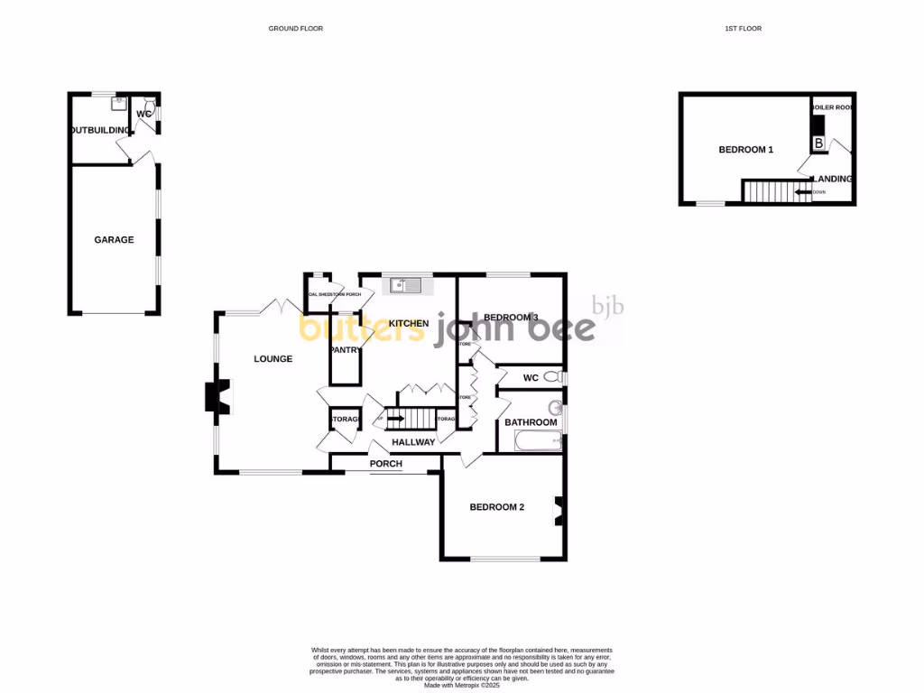
Detached three-bedroom bungalow with garage and small garden
A detached three-bedroom bungalow on Offley Road, set on a modest plot with a garage and original period details such as parquet flooring. The property is vacant with no onward chain and offers a clear canvas for renovation or redevelopment. Its location is a major draw: walking distance to Sandbach town centre, good local schools and convenient transport links.
This is a clear auction opportunity for buyers seeking value-add or a refurbishment project. The house is constructed before 1900 with solid brick walls (likely without cavity insulation) and requires renovation throughout. Heating is gas-fired with boiler and radiators; windows are double glazed though installation date is unknown.
Practical considerations: the property is small (approx. 722 sq ft), has a single bathroom, and sits on a small plot — limiting scope for extension without planning. Council tax is above average. Sale is by public auction (1st December 2025) with vacant possession; a buyer’s administration fee of £1,800 (including VAT) is payable on purchase. Viewers and bidders should review the legal pack and allow for renovation and compliance costs when budgeting.
2 bedroom detached bungalow for sale in Dukes Crescent, Sandbach, CW11 — £280,000 • 2 bed • 1 bath • 732 ft²
1 bedroom end of terrace house for sale in Bradwall Road, Sandbach, Cheshire, CW11 — £150,000 • 1 bed • 2 bath • 637 ft²
2 bedroom detached house for sale in Crewe Road, Sandbach, CW11 — £250,000 • 2 bed • 1 bath • 786 ft²
2 bedroom detached bungalow for sale in Middlewich Road, Sandbach, CW11 — £438,000 • 2 bed • 1 bath • 1513 ft²
2 bedroom bungalow for sale in Hind Heath Road, Sandbach, Cheshire, CW11 — £300,000 • 2 bed • 1 bath • 1177 ft²
Land for sale in Moston Road, Sandbach, CW11 — £325,000 • 1 bed • 1 bath • 1932 ft²






























































































