Contemporary central studio with long lease and concierge appeal.
Spacious studio with large windows and modern wooden floors
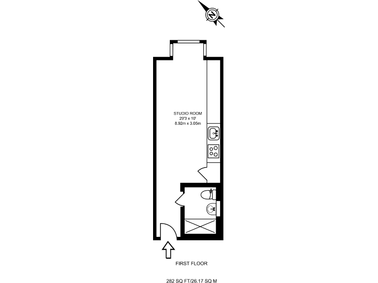
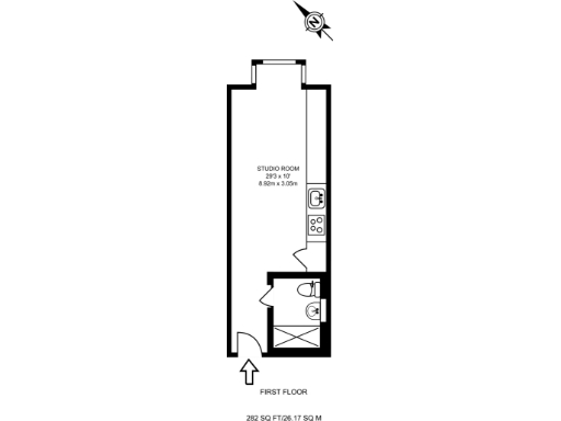
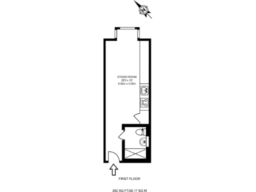
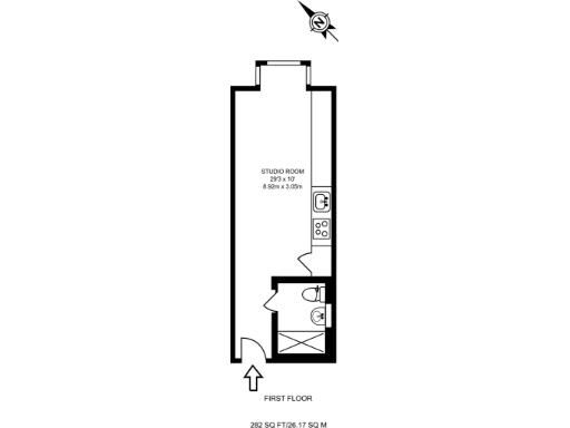
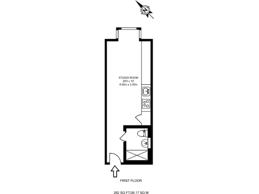
This bright studio apartment on the first floor sits within a modern waterside development close to Sloane Square. The open-plan studio benefits from attractive wooden floors, a fully fitted kitchen with dining space and a separate modern shower room — ready to move into or let immediately.
At around 603 sq ft the accommodation is roomy for a studio and enjoys large windows that flood the space with natural light. Residents benefit from concierge service and excellent local amenities, including riverside pubs, cafes, and fast transport links; mobile signal and broadband are strong.
Buyers should note the ongoing costs: an average annual service charge of £2,259 and a ground rent of £779. The property is leasehold with a very long lease remaining (987 years). The local area is described as inner-city cosmopolitan but also shows indicators of deprivation — important for buyers and investors to consider alongside the central location and strong nearby schools.
Overall this studio will suit first-time buyers seeking a stylish, low-maintenance central home or investors looking for a well-located rental in a modern riverside complex. Its move-in condition and long lease offer immediate use, but budget for service charges and ground rent when assessing running costs.
Studio flat for sale in Gatliff Road, Pimlico, London, SW1W — £350,000 • 1 bed • 1 bath • 603 ft²
Studio flat for sale in Grosvenor Waterside, Westminster, London, SW1W — £565,000 • 1 bed • 1 bath • 403 ft²
Studio flat for sale in Ebury Bridge Road, Pimlico, London, SW1W — £300,000 • 1 bed • 1 bath • 302 ft²
Studio flat for sale in Moore House, Grosvenor Waterside, 2 Gatliff Road, London, SW1W — £350,000 • 1 bed • 1 bath
Studio flat for sale in 2 Gatliff Road, Grosvenor Waterside, London, SW1W — £450,000 • 1 bed • 1 bath • 410 ft²
Studio flat for sale in Ebury Bridge Road, SW1W — £325,000 • 1 bed • 1 bath • 305 ft²


















































































































































































































































