Licensed five-bed HMO over shop — strong student rental demand, listed restrictions apply.
Licensed five-bedroom HMO with ground-floor commercial unit
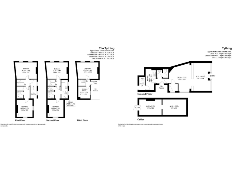
A rare central Worcester mixed-use opportunity: a licensed five-bedroom HMO above a ground-floor commercial unit, offered freehold at £350,000. The property totals approximately 2,309 sq ft across multiple floors, with cellar storage and rear off-street parking for up to four vehicles. Its location in a cosmopolitan, student-focused neighbourhood delivers strong, reliable rental demand and easy access to Foregate Street station and city centre amenities.
The building is Grade II listed and retains period character such as sash windows and cornices, which adds appeal but also restricts alterations — listed status will complicate refurbishments and require specialist consent. There is scope for development on the existing rear driveway subject to necessary consents, but any works will need careful planning with heritage constraints in mind.
Practical positives include an established HMO licence, a versatile commercial ground-floor with cellar, mains services, and low council tax band. Important drawbacks: the area records very high crime rates, broadband speeds are very slow, and the neighbourhood is classified as deprived — factors that affect tenant profiles and management. This property suits investors seeking central, income-producing assets with refurbishment or redevelopment potential rather than a hands-off buy.
Viewings should be preceded by due diligence on listed-building restrictions, licensing compliance, and any development feasibility for the rear driveway. For an investor prepared for hands-on management and sensitive upgrading, this mixed-use asset offers strong rental fundamentals and clear scope to add value.
5 bedroom end of terrace house for sale in The Tything, Worcester, WR1 — £350,000 • 5 bed • 2 bath • 1502 ft²
14 bedroom house of multiple occupation for sale in Lowesmoor, Worcester, WR1 2RS, WR1 — £549,000 • 14 bed • 5 bath • 3670 ft²
Commercial property for sale in The Tything, Worcester, WR1 — £185,000 • 2 bed • 1 bath • 1346 ft²
24 bedroom apartment for sale in Mealcheapen Street, Worcester, WR1 — £1,350,000 • 24 bed • 24 bath • 731 ft²
5 bedroom semi-detached house for sale in Trelawney Close, Worcester, Worcestershire, WR2 — £330,000 • 5 bed • 4 bath • 883 ft²
4 bedroom house of multiple occupation for sale in Comer Road, Worcester, WR2 — £250,000 • 4 bed • 2 bath


















































































