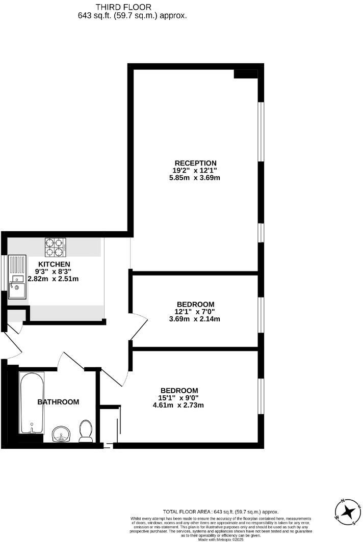
Two double bedrooms and 643 sq ft of living space
Third-floor apartment with lift and secure entry
Separate modern kitchen with integrated appliances
112 years remaining on the lease (leasehold)
No private garden or significant outdoor space
Double glazing installed before 2002 — may lack modern efficiency
Area flagged as deprived with higher-than-average crime rates
Close to Dalston stations, shops, cafés and Clissold Park
Set on the third floor of a modern development with lift access, this bright two-bedroom apartment offers 643 sq ft of comfortable living space in Stoke Newington. Large windows in the reception room flood the apartment with light and create a flexible living and dining area, while the separate contemporary kitchen has integrated appliances and practical storage.
The principal bedroom includes built-in storage; the second room is well sized for a nursery, guest room or home office. Residents benefit from secure entry and lift access, and the property sits within easy reach of Stoke Newington Church Street, Kingsland Road and green spaces such as Clissold Park. Transport links include Dalston Junction, Dalston Kingsland and Rectory Road stations with fast bus routes into central London.
Important practical points are stated clearly: the property is leasehold with 112 years remaining, and there is no private garden. The area rates as deprived with higher crime levels than average, which may influence some buyers’ priorities. Windows are double glazed but were installed before 2002 and may not match modern thermal standards.
Overall, this apartment suits first-time buyers and young professionals seeking a well-presented, well-connected base in North London with immediate move-in potential. Investors will note the compact, easy-to-manage layout and local rental demand, though they should consider the surrounding area's socio-economic profile when assessing long-term yields.
2 bedroom apartment for sale in Stoke Newington High Street, London, N16 — £425,000 • 2 bed • 1 bath • 635 ft²
2 bedroom flat for sale in Stoke Newington High Street, London N16 — £350,000 • 2 bed • 1 bath • 414 ft²
3 bedroom apartment for sale in Salcombe Road, London, N16 — £700,000 • 3 bed • 2 bath • 1143 ft²
2 bedroom apartment for sale in Stoke Newington High Street, London, N16 — £495,000 • 2 bed • 1 bath • 589 ft²
2 bedroom apartment for sale in Stoke Newington Church Street, London, N16 — £475,000 • 2 bed • 1 bath • 608 ft²
2 bedroom flat for sale in Lewis Gardens, N16 — £400,000 • 2 bed • 1 bath • 563 ft²






























































