Single-floor living with garden and driveway, ideal for easy maintenance.
Bright bay-windowed lounge with high ceiling character
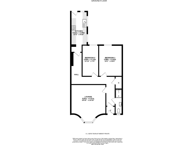
This well-presented two-bedroom mid-terrace bungalow delivers comfortable single-level living in a quiet Ayr neighbourhood. A bay-windowed lounge and modern fitted kitchen with direct access to a large enclosed rear garden create an airy, practical living layout well suited to downsizers.
Practical features include a private driveway for off-street parking, gas central heating, double glazing and fast broadband — useful for everyday convenience and low-maintenance living. The property is freehold with all accommodation on one easily managed level, making it straightforward for those seeking simplicity.
Buyers should note the property sits in a very deprived wider area classification; local socioeconomic indicators may affect long-term resale and service provision. The home is average sized (approximately 775 sq ft) with an EPC rating of D, so some energy improvements could be considered to reduce running costs.
Overall, this bungalow offers tidy, ready-to-enjoy accommodation with outdoor space and parking — a sensible, low-effort option for downsizers or retirees who prioritise single-floor living and garden access. A physical inspection is recommended to confirm condition and size prior to purchase.
2 bedroom bungalow for sale in Eglinton Place, Ayr, South Ayrshire, KA7 — £180,000 • 2 bed • 1 bath • 781 ft²
2 bedroom bungalow for sale in 33 Meadowpark, Ayr, KA7 2LW, KA7 — £165,000 • 2 bed • 1 bath • 753 ft²
2 bedroom bungalow for sale in 50J Racecourse Road, Ayr, KA7 2UZ, KA7 — £275,000 • 2 bed • 3 bath • 915 ft²
2 bedroom bungalow for sale in Forehill Road, Ayr, South Ayrshire, KA7 — £200,000 • 2 bed • 1 bath • 802 ft²
2 bedroom bungalow for sale in 24 Arrol Drive, Seafield, KA7 4AQ, KA7 — £275,000 • 2 bed • 1 bath • 872 ft²
2 bedroom cottage for sale in 21 Falkland Park Road, Ayr, KA8 8LL, KA8 — £135,000 • 2 bed • 2 bath • 1098 ft²


































































































