**Standout Features:**
- **Chain-Free:** Immediate availability for buyers.
- **Two Double Bedrooms:** Generous space for families or guests.
- **Two Reception Rooms:** Ideal for entertainment or relaxation.
- **Modern Fitted Kitchen:** Contemporary design with integrated appliances.
- **Large Rear Garden:** A private outdoor space perfect for kids or gardening.
- **Well Presented Throughout:** Move-in ready condition.
**Potential Downsides:**
- **Leasehold Tenure:** Consider implications for future ownership.
- **No Insulation:** Assumed cavity walls may require upgrades for energy efficiency.
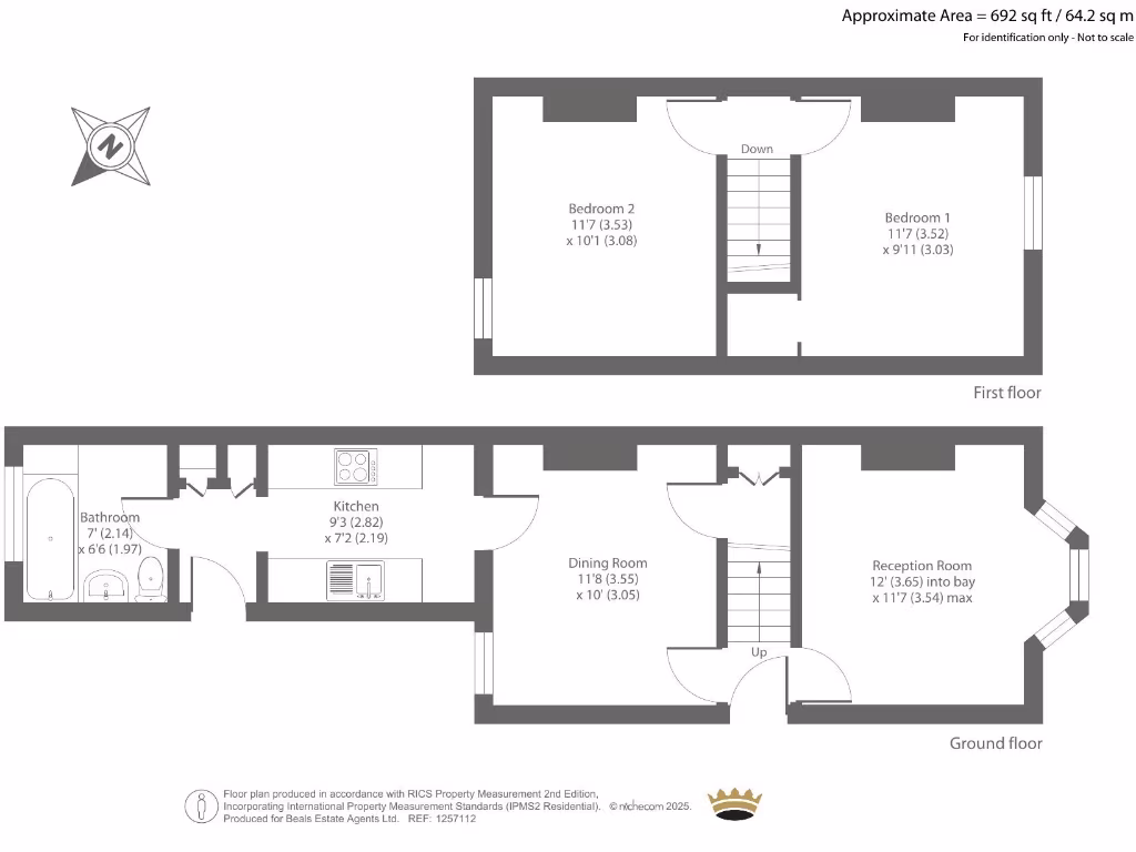
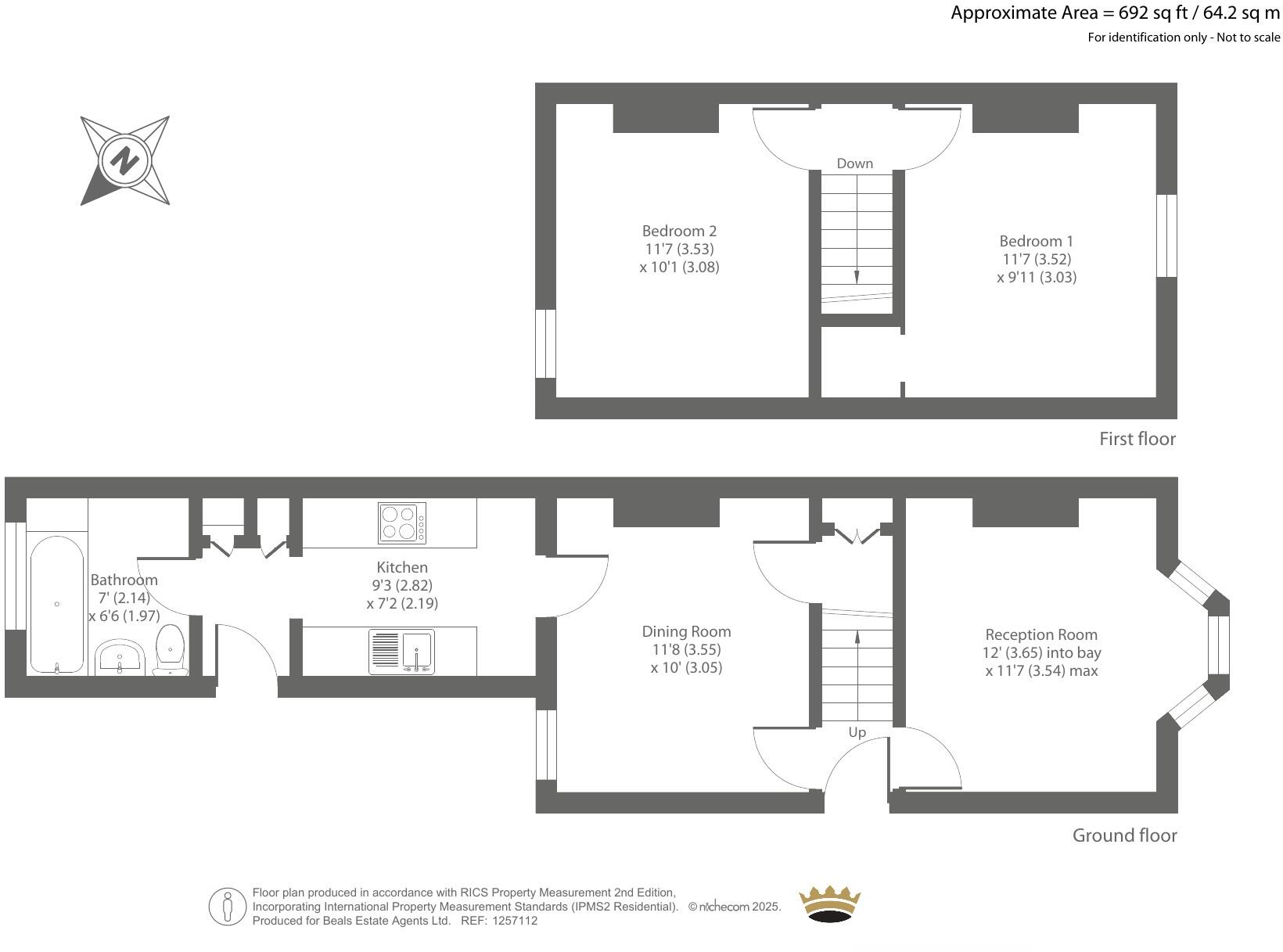
This charming Edwardian semi-detached home is a fantastic opportunity for families or first-time buyers seeking a spacious, well-maintained property. With no onward chain, you can move in without delay. The home features two generous double bedrooms and two welcoming reception rooms, providing ample space for living or entertaining. The modern kitchen is equipped with integrated appliances, leading into a private rear garden that opens up a world of possibilities for outdoor enjoyment and family activities.
Conveniently located near local amenities and reliable transport links, the property is close to parks, schools, and vibrant community spaces—making it a perfect fit for families. While the leasehold status and lack of insulation may be considerations, the potential this home holds is undeniable. Don’t miss the chance to make this residence your own and enjoy a blend of comfort and charm. Schedule your viewing today, as homes like this are in high demand!
2 bedroom semi-detached house for sale in Priory Road, St Denys, Southampton, Hampshire, SO17 — £270,000 • 2 bed • 1 bath • 958 ft²
3 bedroom semi-detached house for sale in Ruby Road, Southampton, Hampshire, SO19 — £290,000 • 3 bed • 1 bath • 922 ft²
3 bedroom semi-detached house for sale in Kingsfold Avenue, Southampton, Hampshire, SO18 — £270,000 • 3 bed • 1 bath • 958 ft²
2 bedroom semi-detached house for sale in Crosswell Close, Sholing, Hampshire, SO19 — £260,000 • 2 bed • 1 bath • 721 ft²
3 bedroom semi-detached house for sale in Barry Road, Southampton, Hampshire, SO19 — £280,000 • 3 bed • 2 bath • 1084 ft²
3 bedroom semi-detached house for sale in Botley Road, Southampton, Hampshire, SO19 — £260,000 • 3 bed • 2 bath • 872 ft²






















































