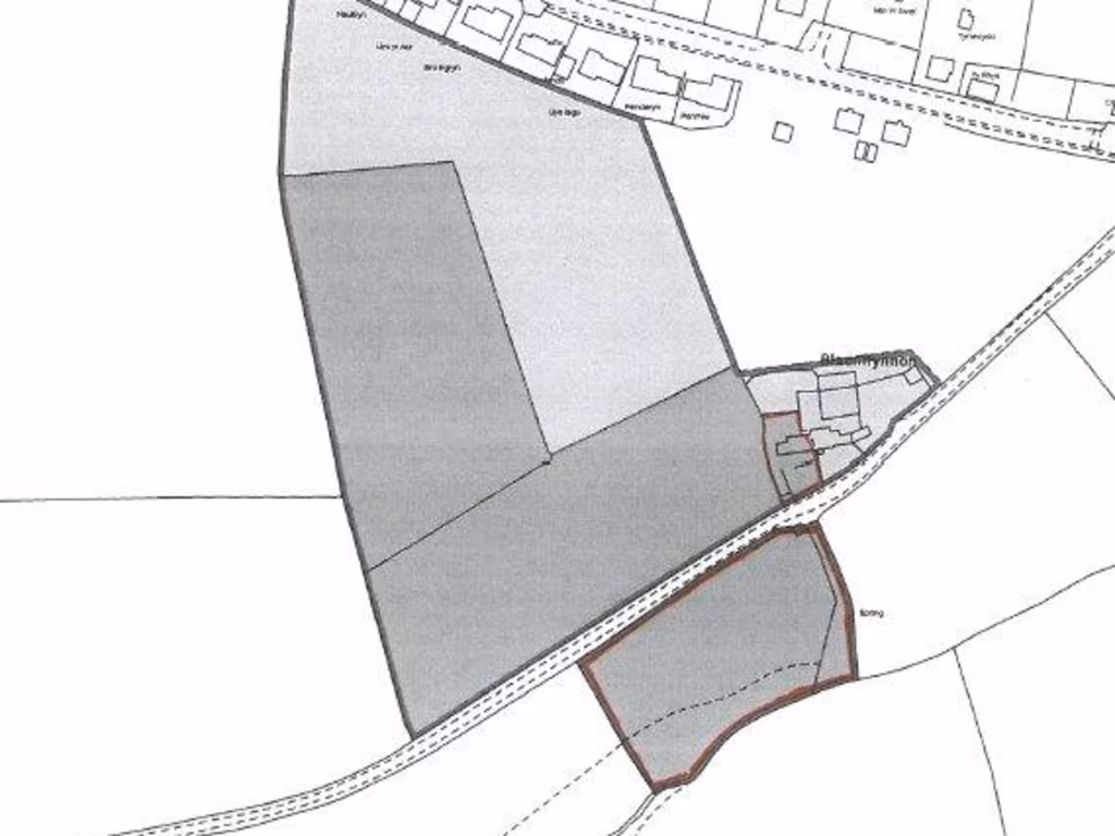
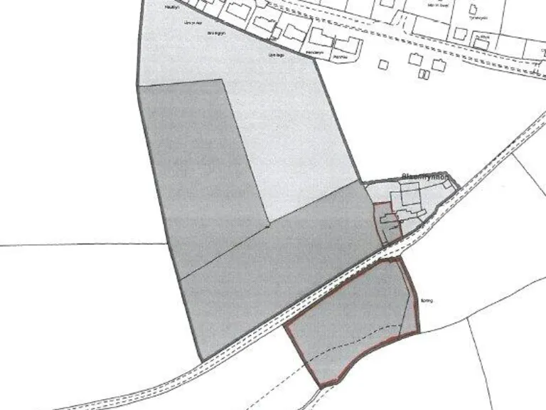
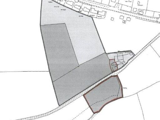
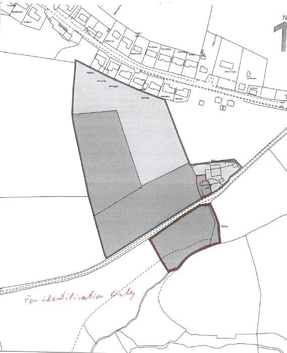
Large plot with two-acre paddock perfect for smallholding or outdoor living.
Three double bedrooms and 1 bathroom, about 1,357 sq ft
Seren Saith is a substantial three-bedroom semi-detached cottage set on a huge plot with a two-acre paddock — ideal for a couple or family wanting outdoor space and smallholding potential. The house offers generous living space (about 1,357 sq ft) in a well-maintained, traditional stone-built style with modern comforts from its 2010 construction and solar panels visible externally.
The grounds are a standout: a sizeable garden plus historically grazed pasture with a dedicated water supply, suited to hobby farming, horses or keeping livestock. The property is freehold, has affordable council tax and sits in a quiet hamlet with very low crime — privacy and space are primary selling points.
Buyers should note practical limitations: broadband speeds are very slow and mobile signal is only average, which may affect remote working or streaming. Heating is by oil-fired boiler to radiators, and there is a single bathroom for three bedrooms. The surrounding area is classed as very deprived and remoter communities, so local services are limited and travel to amenities may be required.
Overall this is a well-kept rural cottage that delivers substantial outside space and smallholding potential, balanced by basic rural utilities and limited digital connectivity. It will suit buyers prioritising land, privacy and a rural lifestyle over urban convenience.
3 bedroom detached house for sale in Tegryn, Crymych, Pembrokeshire, SA35 — £549,000 • 3 bed • 1 bath • 1357 ft²
5 bedroom semi-detached house for sale in Lancych, Boncath, Pembrokeshire, SA37 — £340,000 • 5 bed • 3 bath • 2541 ft²
Land for sale in Blaenycoed, Carmarthen, SA33 — £525,000 • 5 bed • 1 bath • 2738 ft²
2 bedroom detached house for sale in Llanfyrnach, Carmarthenshire, SA35 — £260,000 • 2 bed • 1 bath
2 bedroom detached house for sale in Felindre, Crymych, Pembrokeshire, SA41 — £475,000 • 2 bed • 1 bath
3 bedroom semi-detached house for sale in Felindre, Crymych, Pembrokeshire, SA41 — £200,000 • 3 bed • 1 bath • 937 ft²






















































