Historic coach house apartment with large garden, gated parking and high-spec living..
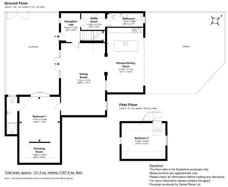
Over 1,300 sq ft of multi-level living space
High-spec kitchen/diner with Siemens appliances and island
Two private entrances: gated parking and garden access
Principal bedroom with en-suite and walk-in wardrobe
Previously approved first-floor extension (now lapsed) — STPP
Grade II listed — restrictions and listed maintenance obligations
Leasehold with ~113–114 years remaining; auction sale starting £360,000
Service charge £2,700pa and ground rent £369pa; area has high crime
Set within a Grade II listed coach house on Montague Road, this unusually large two-bedroom apartment offers over 1,300 sq ft of characterful living arranged across multiple levels. The property combines period features—original arched windows and eaves—with a high-spec open-plan kitchen/diner fitted with Siemens appliances and a central island, plus bi-fold doors to the garden. Two private entrances provide gated off-street parking and separate garden access.
The principal bedroom includes an en-suite and walk-in wardrobe; a second double bedroom looks onto the communal garden from a picture window. Practical additions include a utility room and a dedicated study area in the hallway. There is potential to add a third bedroom under a previously approved (now lapsed) first-floor extension (Planning Ref: 2018/10217/PA), subject to listed-building permissions.
Important considerations: the property is Grade II listed, which will restrict alterations and can complicate consent and maintenance. The sale will be by auction with a starting bid of £360,000 and is leasehold with approximately 113–114 years remaining. Annual service charge and ground rent are notable: around £2,700 and £369 respectively. The immediate area is an inner-city, high-crime, deprived ward, although transport links and local amenities are strong.
This home suits buyers seeking a generous, character-filled apartment near Birmingham city centre who are comfortable with listed-building constraints and the auction purchase process. It is chain-free and ready for occupation, but buyers should budget for ongoing service charges and potential listed-status maintenance or consent costs.
2 bedroom duplex for sale in Montague Road, Birmingham, West Midlands, B16 — £400,000 • 2 bed • 2 bath • 1300 ft²
2 bedroom apartment for sale in 1 Vernon Road, Edgbaston, Birmingham, B16 — £150,000 • 2 bed • 1 bath
1 bedroom apartment for sale in Portland Road, Birmingham, B16 — £110,000 • 1 bed • 1 bath • 899 ft²
2 bedroom end of terrace house for sale in Bristol Road, Birmingham, B5 — £350,000 • 2 bed • 1 bath • 1435 ft²
2 bedroom apartment for sale in 150 Viceroy Close, Edgbaston, Birmingham, B5 7UX, B5 — £140,000 • 2 bed • 1 bath • 1028 ft²
2 bedroom apartment for sale in Montague House, Montague Road, Edgbaston, B16 — £220,000 • 2 bed • 2 bath • 734 ft²














































































































































