Project property for families seeking location and long-term value near village amenities.
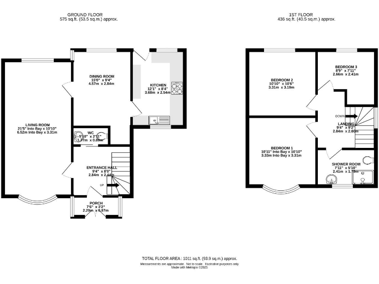
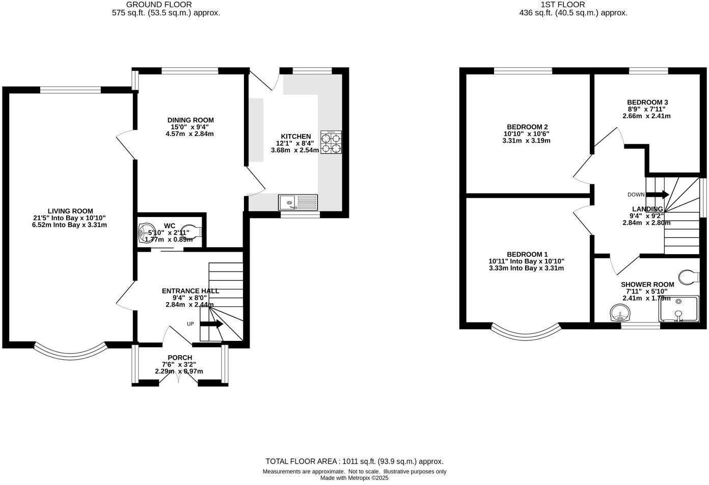
Three good-sized bedrooms with bay-fronted principal room
Two large reception rooms, long bay-fronted living room
Fitted kitchen; downstairs WC and entrance porch
Southerly-facing rear garden with patio and fenced boundaries
Off-street parking and gated side access/carport
Chain free and freehold, approximately 1,011 sq ft
Requires internal modernisation and updating throughout
Cavity walls assumed uninsulated; single shower room only
A bay-fronted 1930s semi-detached house in a quiet cul-de-sac close to transport links and Didsbury Village. The house offers three good-sized bedrooms, two reception rooms and a fitted kitchen across about 1,011 sq ft, with off-street parking and a southerly-facing rear garden.
This property is chain free and sold freehold, making it suitable for buyers who want to move quickly. It requires internal modernisation throughout, offering clear potential to add value and personalise finishes; some work likely needed to bring services and decor to contemporary standards.
Notable positives include double glazing, mains gas central heating and a practical layout with a long bay-fronted living room and separate dining room. There are also nearby good schools, fast broadband, excellent mobile signal and low flood risk.
Buyers should note the downside: the house needs renovation, cavity walls appear uninsulated (assumed), and there is only one shower room. The plot is modest in size and external condition is average — factor refurbishment costs into the purchase. Viewing is recommended to assess scope and potential.
3 bedroom semi-detached house for sale in Anerley Road, Didsbury Village, M20 — £550,000 • 3 bed • 1 bath • 1076 ft²
3 bedroom semi-detached house for sale in Ferndene Road, Didsbury, M20 — £475,000 • 3 bed • 1 bath • 1187 ft²
3 bedroom semi-detached house for sale in Delaine Road, Withington, M20 — £400,000 • 3 bed • 1 bath • 961 ft²
3 bedroom terraced house for sale in Tunstead Avenue, West Didsbury, M20 — £430,000 • 3 bed • 1 bath • 863 ft²
3 bedroom semi-detached house for sale in Parrs Wood Road, Didsbury, M20 — £485,000 • 3 bed • 1 bath • 1154 ft²
3 bedroom semi-detached house for sale in Tanfield Road, Didsbury, M20 — £375,000 • 3 bed • 1 bath • 806 ft²


























































































