Large family home with gardens, garage and excellent town links.
Extended three-bedroom semi-detached family home
Driveway parking for 4+ cars plus detached single garage
Generous front and rear gardens with patio, external shower and BBQ pit
Open through lounge with wood burner fitted 2022
Worcester Bosch boiler installed 1–2 years ago
Cavity walls present; assumed no wall insulation (may need upgrading)
Double glazing fitted — install date unknown
Freehold, no flood risk, affordable council tax
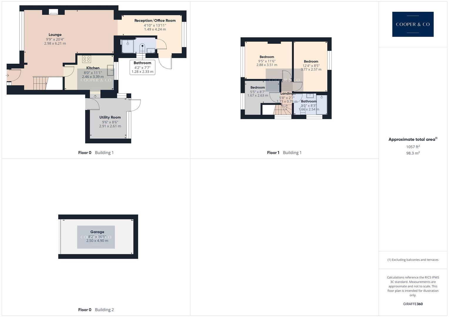
This extended three-bedroom semi-detached house sits tucked away in a quiet cul-de-sac, a short walk from Evesham town centre. The house offers generous front and rear gardens, a detached single garage, and a wide driveway with space for four-plus cars — rare convenience for a town location.
Inside, the layout suits family life: an open through lounge with a recently fitted wood burner (2022), an office/reception room, kitchen with adjoining utility, and two bathrooms including an upgraded family bathroom with underfloor heating. A nearly-new Worcester Bosch boiler (1–2 years) and double glazing provide practical modern comforts.
The property dates from the 1930s–40s and retains character proportions while offering opportunity. Cavity walls are present but assumed to lack insulation, so buyers should budget for potential energy-efficiency improvements. Double glazing is fitted, though installation date is unknown.
Overall this is a large, well-presented family home in an affluent, low-crime area with fast broadband and excellent mobile signal. The house will particularly appeal to families seeking space, parking and quick access to good local schools and town amenities, with scope to improve insulation and lower running costs further.
3 bedroom house for sale in Birch Avenue, Evesham, WR11 — £300,000 • 3 bed • 1 bath • 726 ft²
3 bedroom house for sale in St. Margarets Road, Evesham, WR11 — £275,000 • 3 bed • 1 bath • 1045 ft²
3 bedroom detached house for sale in Boswell Mews, Evesham, Worcestershire, WR11 — £315,000 • 3 bed • 2 bath • 892 ft²
3 bedroom detached house for sale in Badsey Lane, Evesham, WR11 — £290,000 • 3 bed • 1 bath • 905 ft²
3 bedroom detached house for sale in Celandine Way, Evesham, Worcestershire, WR11 — £325,000 • 3 bed • 1 bath • 953 ft²
3 bedroom detached house for sale in Snaffle Way, Evesham, WR11 — £335,000 • 3 bed • 2 bath • 1279 ft²


































































































































































































