Two-bed bungalow close to West Beach with garden and loft potential—sold via modern auction, fees apply..
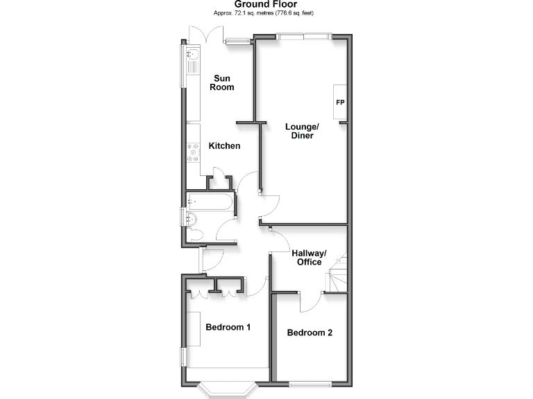
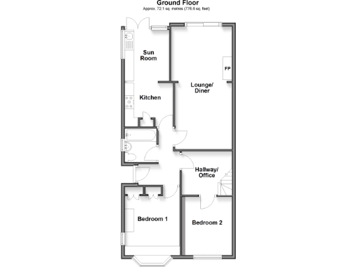
Two bedrooms and spacious lounge/diner with garden access
A tidy two-bedroom semi-detached bungalow set one road back from West Beach, offering easy access to the seafront and local amenities. The property has a large open-plan lounge/diner with doors onto a flat rear garden, a sun room and a mature garden with summerhouse — a pleasant outdoor retreat. Council tax is low and the neighbourhood records very low crime and fast broadband, making it practical for retirement or flexible home-working.
The loft has already been converted into a useful loft room but it does not currently meet building regulations. Further development (including loft works) could add significant value, subject to planning and building-regulation approval. The bungalow has electric storage heaters and double glazing, but systems should be checked by buyers and factored into any refurbishment budget.
Please note this sale uses the Modern Method of Auction. A non-refundable reservation fee and buyer admin charges apply; the property is subject to an undisclosed reserve price. Buyers must complete additional due diligence and obtain any planning consents required for alterations.
Overall this is a practical, characterful mid-century bungalow on a decent plot with clear scope for improvement and value-add. It will suit downsizers seeking single-storey living close to the beach or buyers looking for a renovation project with potential, provided they allow for auction fees and formalising the loft conversion.
2 bedroom semi-detached bungalow for sale in West End Way, Lancing, BN15 8RL, BN15 — £250,000 • 2 bed • 1 bath • 916 ft²
2 bedroom semi-detached bungalow for sale in West Way, Lancing, BN15 — £290,000 • 2 bed • 1 bath • 705 ft²
2 bedroom bungalow for sale in West Way, Lancing, West Sussex, BN15 — £300,000 • 2 bed • 1 bath • 757 ft²
3 bedroom bungalow for sale in West Way, Lancing, West Sussex, BN15 — £375,000 • 3 bed • 2 bath • 788 ft²
2 bedroom bungalow for sale in Ring Road, Lancing, West Sussex, BN15 — £390,000 • 2 bed • 1 bath • 845 ft²
2 bedroom semi-detached bungalow for sale in Upper Brighton Road, Sompting, Lancing, West Sussex, BN15 — £200,000 • 2 bed • 1 bath • 439 ft²






























































