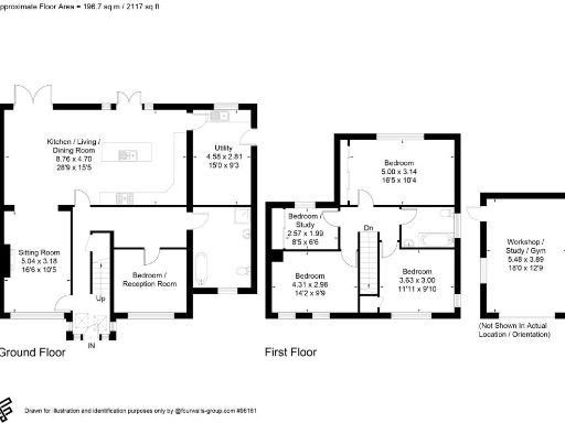
Extended 4/5 bedroom semi in Sherborne St John with large garden and flexible space.
Five flexible bedrooms, including ground-floor bedroom/reception room
Lifestyle kitchen/living/dining with island and French doors to garden
Sitting room with log-burning stove, underfloor heat in key ground rooms
Generous utility plus workshop/study/gym offers workspace or storage
Large, private, fully enclosed rear garden with patio and lawn
Block-paved driveway providing off-street parking for several cars
Mid-century build (1950s–1960s); may need cosmetic updating
Two bathrooms only for five bedrooms; consider potential to add facilities
Set in a quiet cul-de-sac in the centre of Sherborne St John, this extended semi-detached cottage offers flexible family living across about 2,117 sq ft. The home centres on a wide ‘lifestyle’ kitchen/living/dining room with underfloor heating and dual French doors to a large, private garden — ideal for entertaining and family life. A separate sitting room with a log burner and an adaptable ground-floor reception/bedroom add versatile living options.
There are four further bedrooms upstairs and two bathrooms in the house. Practical features include a generous utility, a useful workshop/study/gym, double glazing (installed post-2002), mains gas central heating and a block-paved driveway with off-street parking. The location suits village living with a highly regarded primary school, local shop, pub and good commuter links to Basingstoke (fast trains to London).
Buyers should note the property is a mid-century build (c.1950s–1960s) and, while presented in good order throughout and EPC band C, it retains some period elements and may benefit from cosmetic updating to match modern tastes. The layout and sizeable plot present opportunity for reconfiguration or extension (subject to planning). Council tax is moderate.
This house will suit families seeking space and a village lifestyle, or buyers wanting flexible accommodation and outside space within easy reach of Basingstoke commuter routes.
2 bedroom semi-detached house for sale in Aldermaston Road, Sherborne St. John, Basingstoke, RG24 9LA, RG24 — £335,000 • 2 bed • 1 bath • 739 ft²
5 bedroom detached house for sale in Cranes Road, Sherborne St. John, Basingstoke, Hampshire, RG24 — £1,350,000 • 5 bed • 3 bath • 3085 ft²
4 bedroom detached house for sale in Ash Tree House, Sherborne St John, RG24 — £900,000 • 4 bed • 3 bath • 2431 ft²
3 bedroom semi-detached house for sale in West End, Sherborne St. John, Basingstoke, Hampshire, RG24 — £495,000 • 3 bed • 1 bath • 1642 ft²
4 bedroom detached house for sale in Vyne Meadow, Sherborne St. John, Basingstoke, RG24 — £750,000 • 4 bed • 2 bath • 1400 ft²
3 bedroom semi-detached house for sale in Vyne Road, Sherborne St. John, Basingstoke, Hampshire, RG24 — £600,000 • 3 bed • 2 bath • 1064 ft²










































































