BN20 7SU - 2 bed meads period apartment in Denton Road, BN20 7SU

View on Property Piper

2 bedroom apartment for sale in Denton Road, Eastbourne, BN20

Summary - 4 FLAT 3 DENTON ROAD EASTBOURNE BN20 7SU

2 bed 1 bath Apartment

Characterful first‑floor home moments from Meads Village and the seafront.
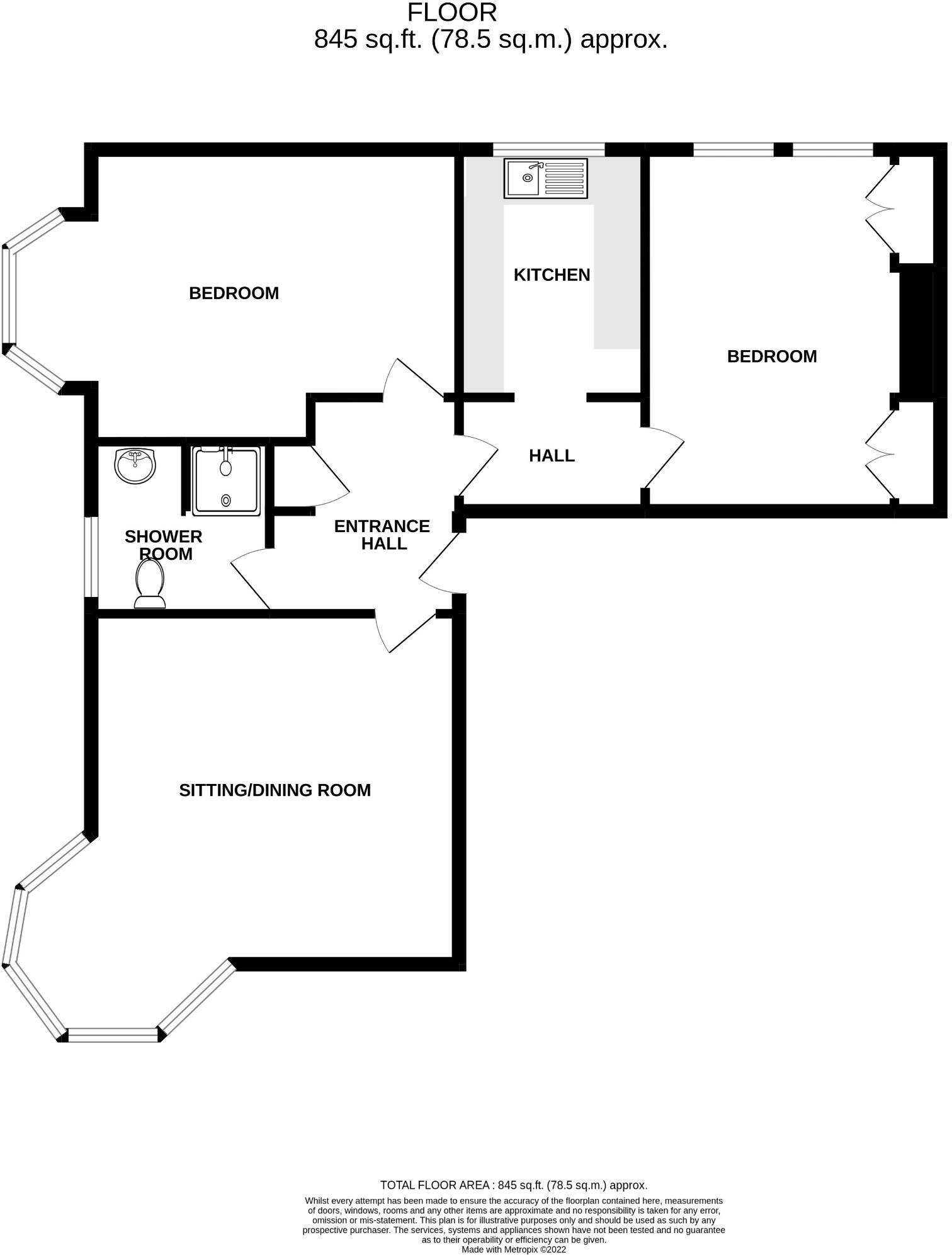
Spacious 24'2" reception with turreted bay and ornate high ceilings
Two large double bedrooms with original period detailing
Modern fitted kitchen with quartz worktops and integrated spaces
Well-maintained communal gardens and attractive period setting
Private allocated parking space adjacent to entrance
Leasehold: approx. 159 years remaining; service charge ~£2,170 pa
One shower room only; no separate bath
EPC rating D; average broadband speeds
Set within an elegant converted period residence in Meads, this two-bedroom first-floor apartment combines generous rooms and original character with contemporary fittings. The 24'2" reception room features a deep turreted bay and high ornate ceilings that flood the space with south‑westerly light. The kitchen has been refitted with quartz worktops and integrated appliances, and the shower room is modern and practical.

Practical features include gas central heating, a private allocated parking space adjacent to the communal entrance, and well-kept communal gardens. The long lease (approximately 159 years remaining) and clear maintenance arrangements provide tenure stability for buyers who prefer a managed, low‑upkeep home. Broadband speeds are average and mobile signal is excellent.

Key considerations: the property is leasehold with an annual maintenance charge of about £2,170; there is one shower room only; the EPC is graded D. The building is primarily suited to mature downsizers or those seeking a low‑maintenance, characterful home close to Meads Village, the seafront promenade and local amenities.

Early viewing is recommended to appreciate the scale, period detail and setting of this apartment, which offers comfortable, low‑maintenance living with strong local amenities and attractive communal grounds.

Property Details

Image Descriptions

Floorplan Description

Rooms

Textual Property Features

Target Audience

AI Tags

Detected Visual Features

Nearby Schools

Nearest Bars And Restaurants

,,,,}

Nearest General Shops

,,}

Nearest Grocery shops

,,}

Nearest Supermarkets

,,}

Nearest Religious buildings

,,}

Nearest Medical buildings

,,,}

Nearest Leisure Facilities

,,,,}

Nearest Tourist attractions

,,}

Nearest Train stations

,,,,}

Nearest Bus stations and stops

,,,,}

Nearest Hotels

,,}

Tags

Local Market Stats

AirBnB Data

Similar Properties

Meta

High Res Images

Compatible Images

Low res Images

Thumbnails

Raw Images

High Res Floorplan Images

Compatible Floorplan Images

Low res Floorplan Images

FloorplanImages Thumbnail

Raw Floorplan Images