BR3 4TY - 1 bedroom flat for sale in Hayne Road, Beckenham, BR3

View on Property Piper

1 bedroom flat for sale in Hayne Road, Beckenham, BR3

Summary - Flat 24, Elsa Court, 9 Hayne Road BR3 4TY

1 bed 1 bath Flat

**Standout Features:**
- Ground floor 1-bedroom flat, share of freehold
- Bright reception room with view to communal garden
- Separate fitted kitchen and ample storage
- Chain-free with garage en bloc and residents parking
- Close to Beckenham High Street and excellent transport links
- Average bedroom and living space ideal for singles or small families
- Well-rated local schools nearby

**Summary:**
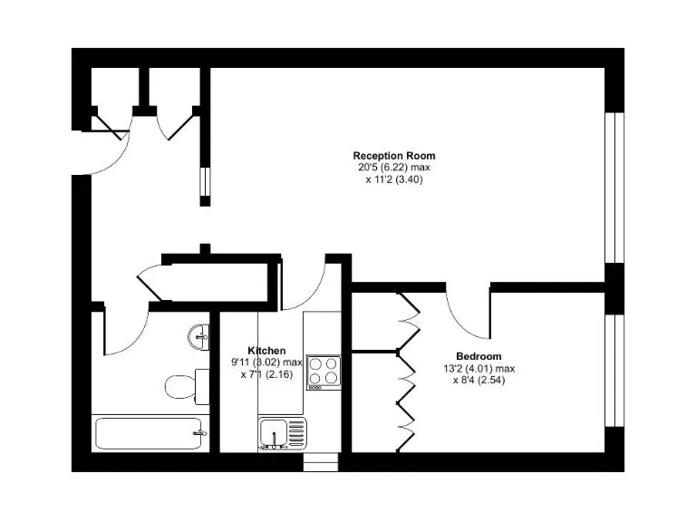
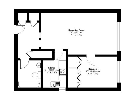
Discover this charming ground floor 1-bedroom flat in Beckenham, perfect for first-time buyers or those looking for a cozy investment. With 533 square feet of space, this property showcases a generously-sized reception room bathed in natural light, a separate fitted kitchen, and a comfortable bedroom equipped with fitted wardrobes. The flat is part of a well-maintained mid-20th century building and boasts garden views, adding a touch of tranquility to city living.

Positioned within a vibrant community, you’re steps away from a variety of shops, cafes, and restaurants on Beckenham High Street. Commuters will appreciate the excellent transport links, including Beckenham Junction station, and frequent trams to Wimbledon and Croydon, ensuring easy access to central London. Enjoy additional benefits such as a garage, residents parking, and a chain-free sale, allowing for a smooth transition into your new home. While some cosmetic updates may be needed, this property awaits your personal touch to truly shine. Act quickly—this appealing opportunity won’t be available for long!

Property Details

Brochure Descriptions

Image Descriptions

Textual Property Features

Detected Visual Features

EPC Details

Nearby Schools

Nearest Bars And Restaurants

,,,,}

Nearest General Shops

,,}

Nearest Grocery shops

,,}

Nearest Supermarkets

,,}

Nearest Religious buildings

,,}

Nearest Medical buildings

,,,}

Nearest Airports

,,}

Nearest Leisure Facilities

,,,,}

Nearest Tourist attractions

,,}

Nearest Train stations

,,,,}

Nearest Bus stations and stops

,,,,}

Nearest Hotels

,,}

Tags

Local Market Stats

AirBnB Data

Similar Properties

Meta

High Res Images

Compatible Images

Low res Images

Thumbnails

Raw Images