Spacious family home minutes from Blackheath Village and excellent schools.
Extended open-plan kitchen/diner with skylights and underfloor heating
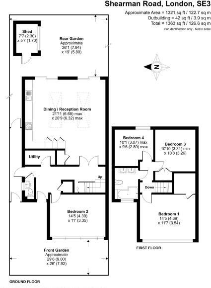
Versatile ground-floor reception usable as fourth bedroom or home office
Off-street parking and freehold tenure
Three double bedrooms upstairs; recently refurbished family bathroom
Only one bathroom for four bedrooms—potential morning congestion
Small plot and low-maintenance garden with limited outdoor space
Original cavity wall construction assumed uninsulated—consider improvements
Council tax Band F (expensive) and warm-air gas heating to note
This extended Gough Cooper detached house offers bright, flexible living ideal for families seeking space close to Blackheath Village. The heart of the home is a spectacular open-plan kitchen/reception with skylights, underfloor heating and direct access to a low‑maintenance garden. A separate front reception can serve as a formal living room or a ground‑floor bedroom/office.
Upstairs are three generous double bedrooms and a recently refurbished family bathroom; overall the property is presented in excellent condition and steps into modern, clean-lined living. Practical benefits include off‑street parking and freehold tenure, with excellent local schools and transport links within easy walking distance.
Buyers should note a few material points: the house has only one bathroom for four bedrooms, the plot is small, and the original cavity wall construction is assumed to have no added insulation. Heating is via warm‑air mains gas, and council tax sits at an expensive Band F level—these are realistic running-cost considerations.
Overall this is a well‑kept, versatile family home in a very desirable SE3 location. The combination of the extended kitchen/diner, parking and proximity to Blackheath Village makes it particularly attractive to families and commuters looking for a move‑in ready property with scope to reconfigure or upgrade services over time.
4 bedroom detached house for sale in Shearman Road, London, SE3 — £965,000 • 4 bed • 1 bath • 1321 ft²
4 bedroom end of terrace house for sale in Heathlee Road, London, SE3 — £975,000 • 4 bed • 2 bath • 1388 ft²
4 bedroom detached house for sale in Heathlee Road, Blackheath, London, SE3 — £975,000 • 4 bed • 3 bath • 1309 ft²
4 bedroom end of terrace house for sale in Coppelia Road, London SE3 — £875,000 • 4 bed • 2 bath • 1249 ft²
4 bedroom detached house for sale in Crosier Close, Blackheath, London, SE3 — £925,000 • 4 bed • 3 bath • 1443 ft²
4 bedroom house for sale in Langton Way, Blackheath, SE3 — £1,875,000 • 4 bed • 1 bath • 1700 ft²














































































