Single-floor comfort with conservatory and private garden in a quiet cul-de-sac.
Detached three-bedroom bungalow, single-storey layout
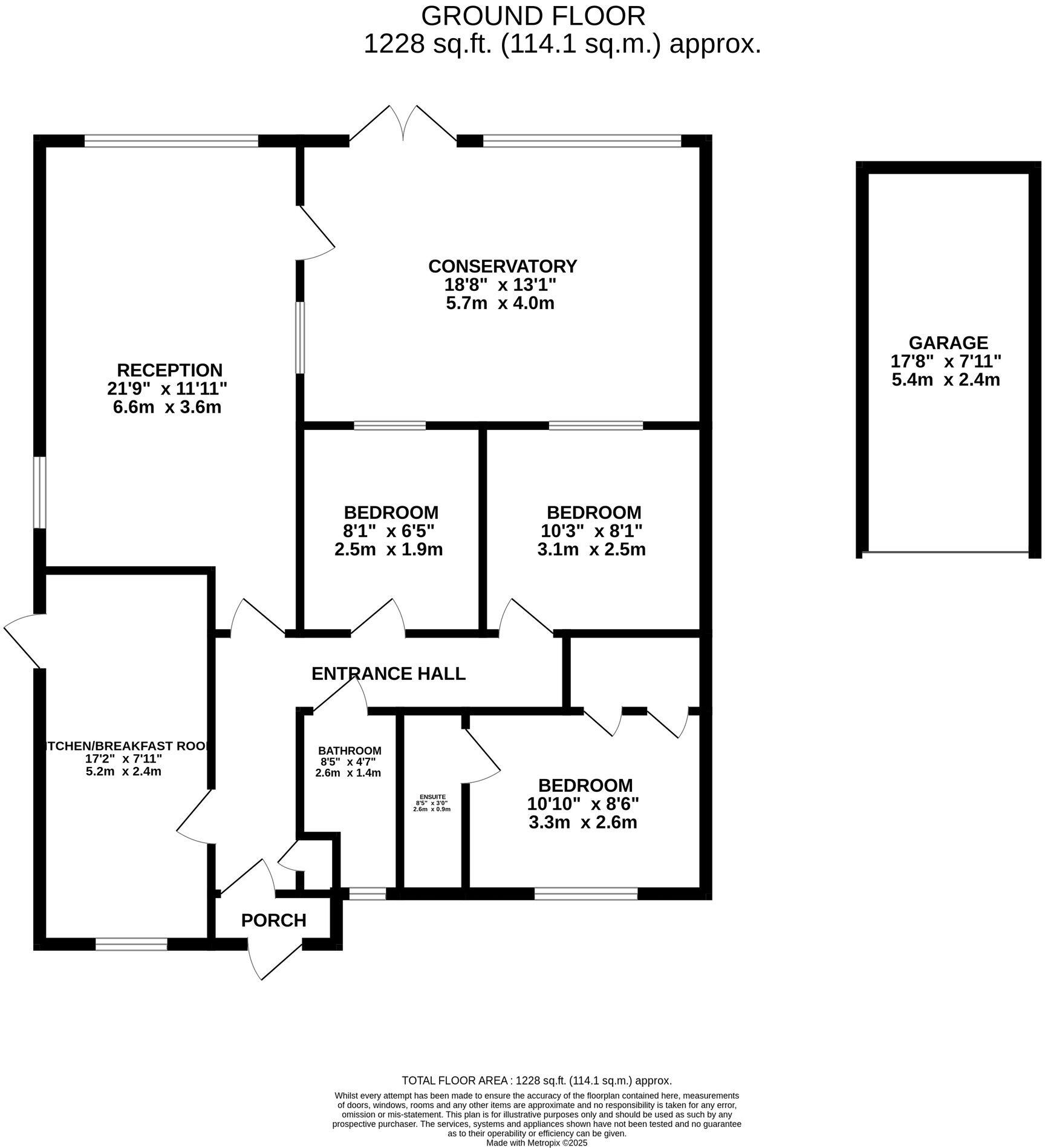
Quiet cul-de-sac living meets single-floor convenience in this three-bedroom detached bungalow in Littledown. Offered with no forward chain, the layout centres on a long, light living room that opens into a vaulted conservatory and a private, well-screened rear garden — ideal for relaxed indoor-outdoor days without stairs to manage.
The principal bedroom includes built-in wardrobes and an en-suite shower, while two further bedrooms offer fitted storage and garden views through the conservatory. Practical spaces include a kitchen/breakfast room with room for a family table, a sizeable loft with access from the hall, and a single garage plus driveway parking for two vehicles.
The property is well placed for local amenities and schools, with Pokesdown station about 1.3 miles away for rail links. Constructed in the 1980s, the home is well maintained but carries an EPC rating of D and sits in council tax band E — factors to consider for running costs. The conservatory and general fittings are in good order now but offer scope for modernisation to increase comfort and value.
Overall this bungalow will suit buyers seeking an easy, low‑maintenance home in an affluent suburb — particularly downsizers or small families who value single-storey living, privacy, and convenient parking, with potential to update cosmetic elements over time.
3 bedroom detached bungalow for sale in Woodgreen Drive, BH11 — £375,000 • 3 bed • 1 bath • 684 ft²
3 bedroom detached bungalow for sale in Shapland Avenue, Bournemouth, BH11 — £375,000 • 3 bed • 2 bath • 906 ft²
3 bedroom house for sale in Henry Joy Close, Bournemouth, BH9 — £435,000 • 3 bed • 2 bath • 900 ft²
3 bedroom detached bungalow for sale in Castle Lane West, Bournemouth, BH9 — £400,000 • 3 bed • 1 bath • 927 ft²
3 bedroom bungalow for sale in Denewood Copse, West Moors, Ferndown, Dorset, BH22 — £525,000 • 3 bed • 2 bath • 1130 ft²
2 bedroom semi-detached bungalow for sale in Copper Beech Gardens, Ensbury Park, BH10 — £280,000 • 2 bed • 1 bath • 717 ft²














































































































































