Spacious four-bedroom semi with en‑suite, modern kitchen and private garden — ideal for families..
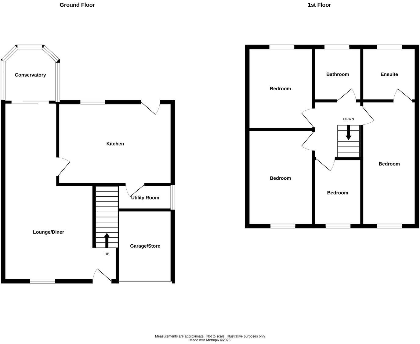
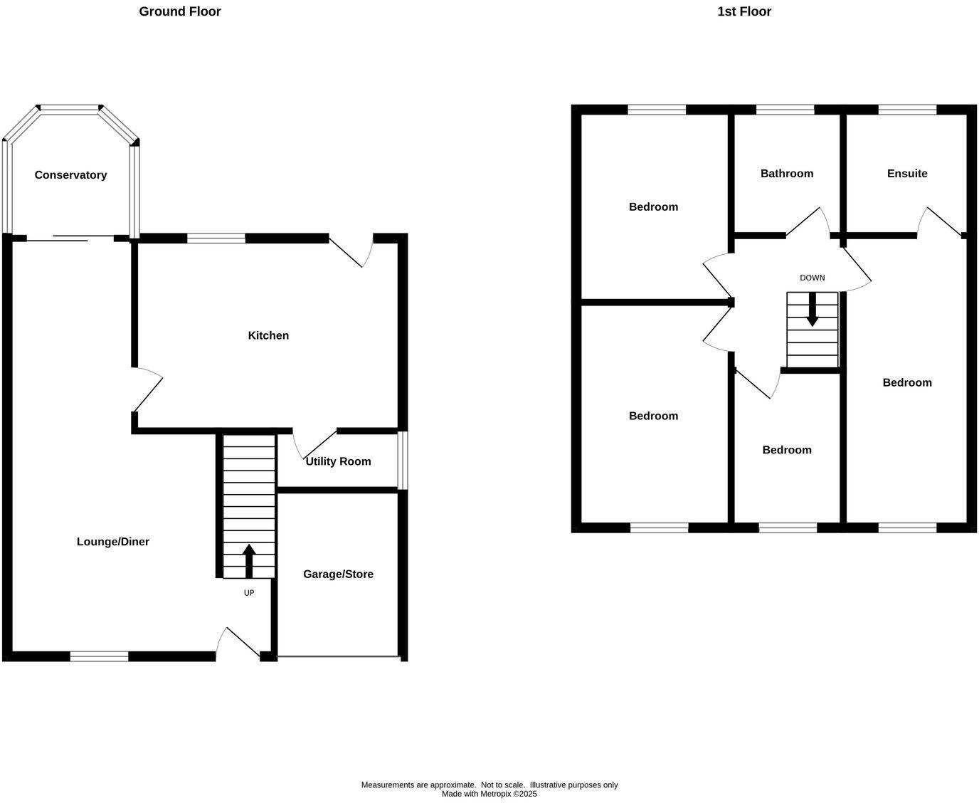
Extended four-bedroom semi with principal en-suite and vaulted ceiling
Modern kitchen-diner, pantry and separate utility room
Light conservatory overlooking mature, private rear garden
Driveway plus integral garage (small: 2.34m x 2.26m)
EPC C, gas central heating, double glazing throughout
Post-war build (c.1950–1966); compact plot, easy maintenance
Very low local crime, excellent mobile/broadband coverage
Close to several primary and secondary schools; one local primary requires improvement
This extended four-bedroom semi-detached home on the desirable Northway Estate is laid out for comfortable family living. The property offers a generous lounge that flows into a dining/snug, a modern kitchen-diner with pantry, separate utility room and a light conservatory overlooking a mature, private rear garden — practical spaces for everyday life and entertaining.
The first floor provides four bedrooms including a principal bedroom with vaulted ceiling and en-suite, plus a modern family bathroom. Gas central heating, double glazing and an EPC rating of C give a balance of comfort and reasonable energy performance. Broad mobile and broadband coverage, very low local crime and close proximity to several well-regarded schools make the location family-friendly.
Outside there is a driveway and an integral garage for storage or a small car, and the plot is compact and easy to maintain. The house was built in the post-war period (c.1950–1966) and, while well presented and largely move-in ready, the property reflects its era — buyers wanting a larger garage or a bigger rear plot should note the small garage footprint and modest plot size.
Overall this freehold home suits growing families seeking space, school access and low-maintenance outdoor space in a quiet, affluent suburb. Viewing is recommended to appreciate the layout, vaulted principal bedroom and private garden.
4 bedroom detached house for sale in Corve View, Northway, Sedgley, DY3 — £339,950 • 4 bed • 1 bath • 986 ft²
3 bedroom semi-detached house for sale in Eaves Court Drive, Northway, Sedgley, DY3 — £270,000 • 3 bed • 1 bath • 710 ft²
3 bedroom semi-detached house for sale in Eversley Grove, Northway, Sedgley, DY3 — £324,950 • 3 bed • 1 bath • 1260 ft²
3 bedroom semi-detached house for sale in Northway, Sedgley, DY3 — £289,950 • 3 bed • 1 bath • 904 ft²
5 bedroom detached house for sale in Longmeadow Drive, Northway, Sedgley, DY3 — £450,000 • 5 bed • 2 bath • 1543 ft²
4 bedroom detached house for sale in Gower Road, Northway, Sedgley, DY3 — £349,950 • 4 bed • 2 bath • 1080 ft²














































































































