**Standout Features:**
- Modern commercial office building in Eco Park
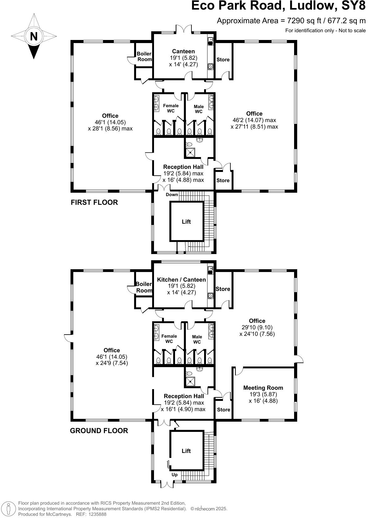
- Expansive size: 673 sq. m. (approx. 7,235 sq. ft.)
- BREEAM Excellent Standard, emphasizing eco-friendly design
- Landscape gardens enhance the work environment with natural beauty
- Well-equipped workspace: lobby, conference room, and four office suites
- Excellent broadband speed and mobile signal
**Potential Downsides:**
- Primarily classified for commercial use, limiting residential possibilities
- Business rates applicable, impacting ongoing costs
Ideal for investors or businesses seeking a sustainable workspace, this modern office building in Ludlow’s Eco Park is a prime opportunity. Spanning an impressive 673 square meters, it boasts a lobby area, conference room, and four office suites, designed to promote productivity and comfort while adhering to an eco-conscious framework. Built in 2011 to BREEAM Excellent standards with energy-efficient features, the property offers ample natural light and harmonious outdoor spaces, perfect for a tranquil work environment.
With excellent broadband and mobile connectivity, accessibility is further enhanced by available parking. Nearby amenities include valuable services such as shops, restaurants, and schools with good OFSTED ratings, making this a truly advantageous location. Given its unique features and ideal standing in a growing area, this property is not just a workspace; it's a strategic investment with promising potential. Act quickly to secure a foothold in this burgeoning eco-centric community!
Land for sale in Plot 3A, Ludlow Eco Park, Ludlow, SY8 1ES, SY8 — £170,000 • 1 bed • 1 bath • 29621 ft²
3 bedroom detached house for sale in Ludlow Green,
Offthe A49,
Ludlow,
SY8 1LS, SY8 — £325,000 • 3 bed • 1 bath • 734 ft²
3 bedroom detached house for sale in Foldgate View, Ludlow, Shropshire, SY8 — £325,000 • 3 bed • 2 bath • 1185 ft²
5 bedroom end of terrace house for sale in Old Street, Ludlow, SY8 — £585,000 • 5 bed • 7 bath • 1873 ft²
2 bedroom bungalow for sale in Sheet Road, Ludlow, Shropshire, SY8 — £300,000 • 2 bed • 1 bath • 1162 ft²
4 bedroom detached house for sale in St Julians Avenue, Gravel Hill, Ludlow, SY8 — £350,000 • 4 bed • 2 bath • 2286 ft²


























































