Stylish two‑bed Victorian terrace, renovated, close to Sevenoaks station and top schools..
Newly fully renovated interior and exterior in 2023
Two well‑proportioned double bedrooms and modern bathroom
Private, low‑maintenance rear garden with artificial lawn
Walkable to Sevenoaks station — c.22 minutes to London Bridge
Excellent selection of outstanding schools nearby
Small plot and no garage or off‑street parking
Energy Rating D; solid brick walls, likely no cavity insulation
Local area crime reported as high — consider security measures
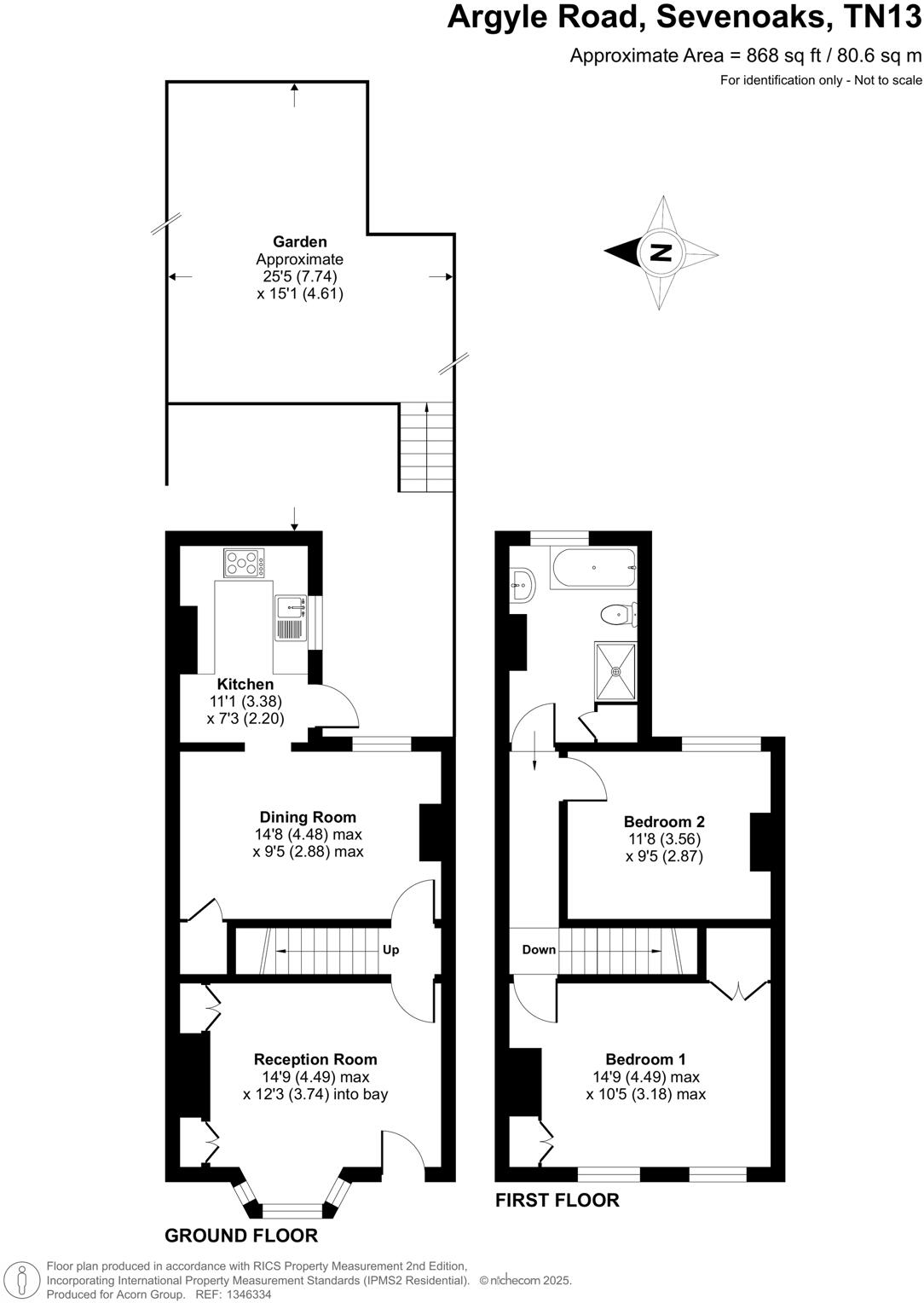
This Victorian mid‑terrace has been fully renovated (interior and exterior) in 2023, offering two double bedrooms and smart, move‑in ready accommodation across two floors. Period details such as a bay window, feature fireplace and high ceilings remain, combined with a contemporary fitted kitchen and recently updated bathroom with walk‑in shower.
The rear garden is private, tranquil and low‑maintenance with Indian stone patio and artificial lawn — ideal for relaxed outdoor use without heavy upkeep. The house is compact at 868 sq ft on a small plot, but layout and finishes maximise usable space for a young family or commuter couple.
Location is a key strength: excellent choice of highly regarded primary and secondary schools nearby, independent shops and amenities within walking distance, and Sevenoaks station with frequent London services (around 22 minutes to London Bridge). The property is freehold and sits in a very affluent area, making it attractive for long‑term owners.
Notable practical points are stated plainly: the property has an Energy Efficiency Rating of D, solid brick walls likely without cavity insulation, and no garage or off‑street parking. Local crime is reported as high, so buyers may wish to consider security measures and local crime data before proceeding.
2 bedroom terraced house for sale in Bradbourne Road, Sevenoaks, TN13 — £365,000 • 2 bed • 1 bath • 592 ft²
4 bedroom semi-detached house for sale in The Drive, Sevenoaks, Kent, TN13 — £1,100,000 • 4 bed • 2 bath • 1668 ft²
2 bedroom end of terrace house for sale in Hitchen Hatch Lane, Sevenoaks, TN13 — £399,000 • 2 bed • 1 bath • 580 ft²
3 bedroom house for sale in Cedar Terrace Road, Sevenoaks, TN13 — £760,000 • 3 bed • 1 bath • 1256 ft²
2 bedroom terraced house for sale in Milton Road, Dunton Green, Sevenoaks, TN13 — £350,000 • 2 bed • 1 bath • 684 ft²
4 bedroom detached house for sale in Gordon Road, Sevenoaks, Kent, TN13 — £2,000,000 • 4 bed • 2 bath • 2524 ft²






















































































