Well-presented commuter-friendly home with garden and garage.
No onward chain — ready for a quicker purchase
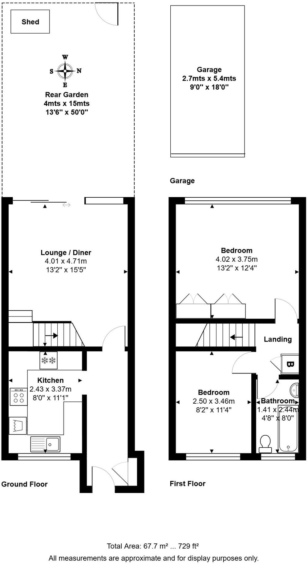
This well-presented two-bedroom terraced house in TW19 offers practical family living with excellent commuter links. The property includes a modern fitted kitchen and bathroom, a spacious lounge/diner with patio doors to a private rear garden, and off-street parking plus a garage. At around 729 sq ft with five principal rooms, the layout suits couples or small families seeking straightforward, move-in-ready accommodation.
Location is a key strength: quick access to local motorways and Heathrow Airport, frequent buses nearby, fast broadband and excellent mobile signal. Local schools include a Good-rated primary and several independent options, while secondary provision is mixed. The property is freehold and sold with no onward chain, simplifying purchase.
Buyers should note a few practical drawbacks. The plot is small and the garden is modest in size. The area records above-average crime and higher deprivation indices, which may concern some purchasers. There is a single bathroom and the home is an average overall size, so families needing more space may find it limited.
Overall this home is a sensible choice for first-time buyers or commuters who prioritise location, reliable services and low immediate renovation need, while accepting a compact plot and local area challenges.
2 bedroom end of terrace house for sale in Bremer Road, Staines-upon-Thames, TW18 — £399,950 • 2 bed • 1 bath • 670 ft²
2 bedroom terraced house for sale in Ravensbourne Avenue, Stanwell, Middlesex, TW19 — £405,000 • 2 bed • 1 bath • 520 ft²
3 bedroom end of terrace house for sale in Hadfield Road, Stanwell, Staines-upon-Thames, Surrey, TW19 — £435,000 • 3 bed • 2 bath • 1067 ft²
1 bedroom terraced house for sale in Riverside Place, Stanwell, Staines-upon-Thames, TW19 — £280,000 • 1 bed • 1 bath • 444 ft²
2 bedroom terraced house for sale in Peninsular Close, Feltham, Middlesex, TW14 — £399,950 • 2 bed • 1 bath • 730 ft²
4 bedroom terraced house for sale in Dolphin Court, Bremer Road, Staines-upon-Thames, TW18 — £450,000 • 4 bed • 2 bath • 1226 ft²






















































