Compact, school-close first-floor flat with long lease and communal parking.
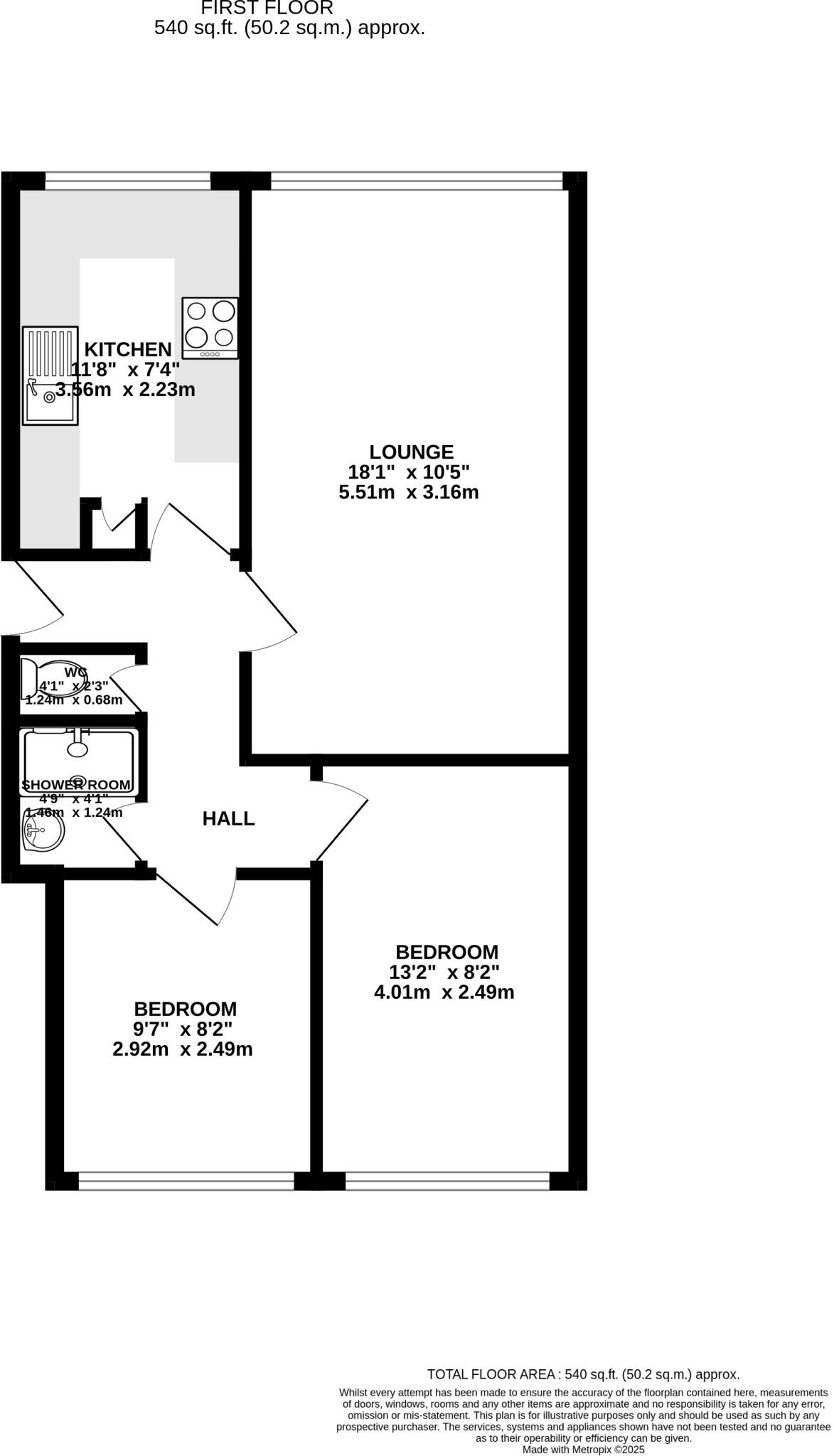
First-floor two-bedroom flat, approx. 540 sq ft
Set within a well-kept residential court in Ponteland, this first-floor two-bedroom flat offers comfortable, practical living for families, professionals or downsizers. The lounge benefits from a large window and fireplace; the kitchen is fitted with integrated appliances and useful pantry storage. Two bedrooms and a separate shower room plus a WC give flexible accommodation for small families or sharers.
Outside, residents enjoy communal gardens and off-street parking in a low-crime, affluent neighbourhood close to highly regarded primary and secondary schools. The property comes with an exceptionally long lease (956 years) and an EPC rating of C, making it a straightforward purchase for owner-occupiers or buy-to-let investors seeking steady local demand.
Considerations: heating is by electric storage heaters and the building relies on electricity, which may not suit all buyers and could affect running costs. Broadband speeds are reported slow. There is a monthly service charge of £120 (approx. £1,440 pa). The overall internal size is modest (c. 540 sq ft), so buyers seeking larger family homes should note the compact footprint.
This flat is best suited to first-time buyers, small families or investors looking for a well-located, low-maintenance home with good schools and strong community amenities nearby. The straightforward accommodation and long lease provide a solid base for immediate occupation or modest updating to personalise the space.
2 bedroom apartment for sale in Cecil Court, Ponteland, Newcastle Upon Tyne, NE20 — £190,000 • 2 bed • 1 bath • 840 ft²
2 bedroom flat for sale in Mayfair Gardens, Ponteland, Newcastle upon Tyne, Northumberland, NE20 — £180,000 • 2 bed • 1 bath • 1127 ft²
2 bedroom flat for sale in Peel House, Main Street, Ponteland, NE20 — £256,000 • 2 bed • 2 bath • 797 ft²
2 bedroom flat for sale in Mayfair Gardens, Ponteland, Newcastle Upon Tyne, NE20 — £199,950 • 2 bed • 1 bath • 786 ft²
3 bedroom apartment for sale in Peel House, Main Street, Newcastle Upon Tyne, NE20 — £475,000 • 3 bed • 2 bath • 1464 ft²
2 bedroom apartment for sale in Cecil Court, Ponteland, NE20 — £199,950 • 2 bed • 1 bath • 697 ft²






































