Private energy-efficient detached home on huge plot with woodland access.
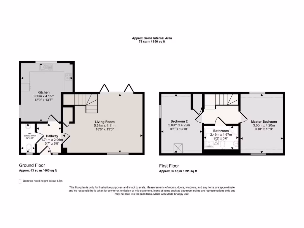
Two double bedrooms across 856 sq ft detached layout
A rare last-plot opportunity in The How’s Western Garden, this two-double-bedroom detached home sits within 17 acres of private parkland and orchard, with direct gated access to riverside woodland and the Thicket Path. The house is designed around a fabric-first, timber-frame construction with double-layer insulation, solar PV and an air source heat pump to cut energy use and running costs. A garage and a very large plot give space for parking, storage and private outdoor living.
The layout is straightforward and family-friendly: roomy living area, practical kitchen, ground-floor WC and two double bedrooms upstairs. The development emphasises low-energy living and water-saving fittings; it aims for an A-rated EPC and offers visible sustainability benefits for lower ongoing bills and a smaller carbon footprint.
Buyers should note a few important practical points: the listing records main heating and fuel as oil boiler and radiators, so confirm exact heating specification and commissioning of renewable systems. Broadband speeds are reported as slow in the area, and local crime statistics are above average — factors to weigh for those working from home or prioritising security. Guide price £400,000–£425,000.
4 bedroom detached house for sale in The How, Houghton Road, St Ives, PE27 — £950,000 • 4 bed • 4 bath • 2766 ft²
4 bedroom detached house for sale in How Gardens - The How, St Ives, PE27 — £950,000 • 4 bed • 4 bath • 2766 ft²
4 bedroom detached house for sale in How Gardens, The How, St Ives, PE27 — £950,000 • 4 bed • 4 bath • 3057 ft²
3 bedroom detached house for sale in How Gardens - The How, St Ives, PE27 — £475,000 • 3 bed • 1 bath • 1036 ft²
3 bedroom detached house for sale in The How - Houghton Road, St Ives, PE27 — £475,000 • 3 bed • 1 bath • 1036 ft²
4 bedroom detached house for sale in The How, Houghton Road, St Ives, PE27 — £950,000 • 4 bed • 4 bath • 2766 ft²


































































































































































